精選6款二層半自建別墅,二三十萬實現鄉村別墅夢
兩層半小別墅整體簡約時尚,占地面積小,造價經濟實惠,只需城市房價一半的首付款就可以建。不僅減輕了我們的生活壓力,也給了我們更多的時間去享受生活的美好!今天小編為大家精選6款二層半自建別墅,非常的實用,占地面積也不大,基本適合所有的農村宅基地建房要求,二三十萬就可實現鄉村別墅夢,需要建房的可以參考一下。在農村自建這樣一個二層半的小別墅,一層給父母住,二層自己居住,剩下第三層作為休閑娛樂場所,真是美哉樂哉啊!
新農村二層半自建別墅
編號: DC0227
結構形式: 磚混結構
開間: 9米 進深: 10.6米
占地面積: 97.87平方米
建筑面積: 238.3平方米
主體造價: 15-20萬

.jpg)
首層戶型:

圖紙預覽:


一 層:客廳、臥室、廚房、餐廳、衛生間
二 層:臥室(附陽臺)、臥室(附衣帽間)、臥室、衛生間
三 層:娛樂室、露臺
農村二層半帶露臺雙拼別墅
編號: DC0163
結構形式: 磚混結構
開間: 18米 進深: 11.5米
占地面積: 214.14平方米
建筑面積: 531.58平方米
主體造價: 40-48萬

首層戶型:

圖紙預覽:



一 層:客廳、臥室、廚房、餐廳、儲藏室、衛生間
二 層:客廳(附陽臺)、2臥室、衛生間
三 層:2臥室、衛生間、露臺
漂亮二層半帶露臺別墅
編號: DC0272
結構形式: 框架結構
開間: 10.8米 進深: 13.2米
占地面積: 133.57平方米
建筑面積: 264.32平方米
主體造價: 22-28萬



首層戶型:

圖紙預覽:


一 層:客廳(中空)、臥室、棋牌室、廚房、餐廳、衛生間、車庫
二 層:休息區、臥室(附陽臺)、臥室(附書房)、2臥室、衛生間
三 層:露臺
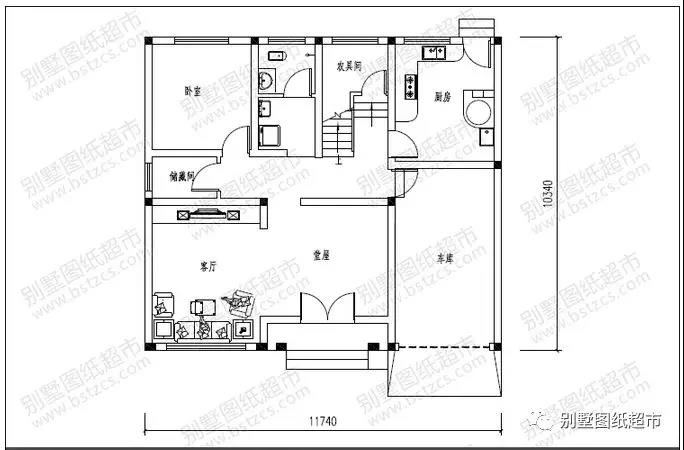
帶露臺及車庫二層半別墅
編號: DC0172
結構形式: 磚混結構
開間: 11.74米 進深: 10.34米
占地面積: 117.85平方米
建筑面積: 307.92平方米
主體造價: 22-27萬


首層別墅:

圖紙預覽:


一 層:堂屋、客廳、臥室、廚房(兼餐廳)、儲藏間、農具間、衛生間、車庫
二 層:客廳、臥室(附陽臺)、2臥室(附共用衛生間)、臥室、儲藏間、衛生間
三 層:臥室(附陽臺)、2臥室、儲藏間、衛生間、露臺
新農村二層半帶車庫別墅
編號: DC0228
結構形式: 磚混結構
開間: 11.7米 進深: 12.9米
占地面積: 132.5平方米
建筑面積: 337.69平方米
主體造價: 22-26萬
.jpg)

首層戶型:

圖紙預覽:


一 層:客廳、臥室(附衛生間)、廚房、餐廳、衛生間、車庫
二 層:小客廳、臥室(附書房,衛生間,陽臺)、臥室(附陽臺)、2臥室、衛生間
三 層:臥室(附書房)、臥室、儲藏室、衛生間、露臺
農村二層半雙拼別墅
編號: DC0206
結構形式: 磚混結構
開間: 18米 進深: 10.8米
占地面積: 191.4平方米
建筑面積: 462.8平方米
主體造價: 30-36萬

首層戶型:

圖紙預覽:



一 層:客廳、臥室、廚房、餐廳、儲藏室、衛生間
二 層:臥室(附陽臺)、臥室(附衣帽間)、臥室、衛生間
三 層:娛樂室、露臺
.jpg)
本文由別墅圖紙超市編輯發布,如需了解更多,可登錄網站主頁http://m.wxtmjd.cn/,或者撥打我們的免費電話400-8080-889在線咨詢。
>>>>推薦閱讀:這款農村別墅25萬就可以建,8款建房效果,一款比一款令人心動!
>>>>推薦閱讀:十套經典美觀農村別墅(效果圖+建房案例),良心推薦!
>>>>推薦閱讀:5款論戶型和外觀都是農村別墅精品的二層精致小別墅











