豪華三層帶露臺歐式別墅設計,幾世經典不為過!
這款豪華三層帶露臺歐式別墅設計,真的可以說是幾世經典都不為過!一棟能被稱作經典的房子,它首先就要具備不過時的特點,然后還要能保證幾代人在里面居住都能感到舒適和自由,這樣一代接一代的才會樂此安居。今天這款別墅,恰恰就具備了這所有的特點。歐式別墅本身的特點就是不易過時,加上這款案例實拍立面色彩采用的是鮮艷色,就如那田園中的和煦陽光,帶給人愉悅的心情,再結合以歐式元素構件,更顯得別墅考究精致。另外這棟別墅還有一個最大亮點,那就是除設計有挑空客廳外,還有落地窗的設計,讓房子顯的大氣美觀,而且通透性還好,多人口的家庭最是合適了。
施工案例效果實拍

原設計效果圖圖紙





圖紙屬性
編號: DC0218 層數: 三層 結構形式: 框架結構 主體造價: 35-42萬
開間: 11.8米 進深: 12.5米 占地面積: 134.94平方米 建筑面積: 360.63平方米
圖紙內容
建 筑 圖:建筑設計說明、工程做法、一層平面圖、二層平面圖、三層平面圖、屋頂平面圖、正立面圖、背立面圖、左立面圖、右立面圖、1-1剖面圖、樓梯平面圖、樓梯剖面圖、門頭大樣圖、節點大樣圖、門窗大樣圖、門窗表
結 構 圖:結構設計總說明、基礎平面布置圖、基礎詳圖、基礎地梁布置圖、一層結構布置圖、二層結構布置圖、頂層結構布置圖、一層梁結構布置圖、二層梁結構布置圖、頂層梁結構布置圖、一層柱結構布置圖、二層柱結構布置圖、頂層柱結構布置圖、樓梯結構圖
給排水圖:給排水設計說明及圖例、一層給排水平面圖、二層給排水平面圖、三層給排水平面圖、屋頂給排水平面圖、衛生間給排水詳圖、給排水系統圖
電氣設計說明、電氣設備材料表、配電系統圖、等電位聯結做法、一層照明平面圖、二層照明平面圖、三層照明平面圖、一層插座平面圖、二層插座平面圖、三層插座平面圖、一層弱電平面圖、二層弱電平面圖、三層弱電平面圖、屋頂防雷平面圖、接地平面圖
設計功能
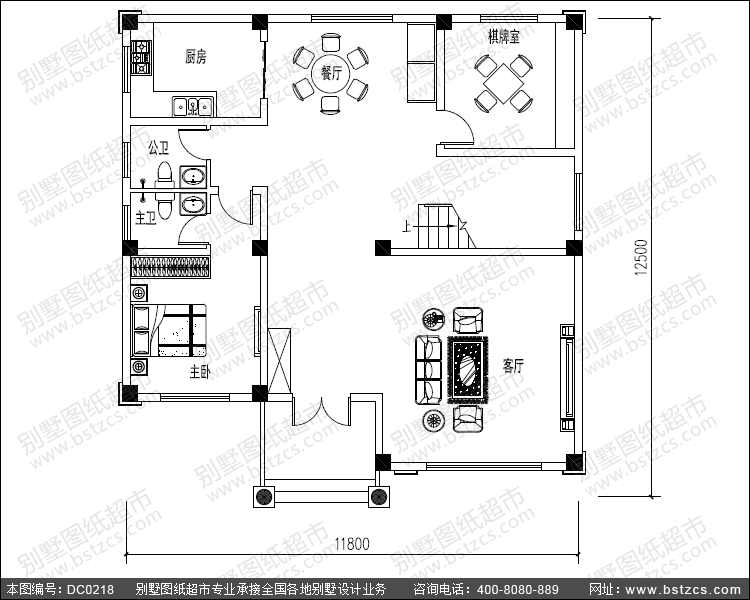
一 層:客廳(中空)、臥室(附衛生間)、棋牌室、廚房、餐廳、衛生間
二 層:會客廳(附露臺)、多功能廳、臥室(附衛生間)、2臥室、衛生間
三 層:多功能廳、棋牌室、臥室(附衛生間)、2臥室、衛生間、露臺
首層房屋戶型設計圖

設計圖預覽


此款圖紙有施工圖55張,效果圖9張。地址:http://m.wxtmjd.cn/goods-218.html
.jpg)
本文由別墅圖紙超市編輯發布,如需了解更多,可登錄網站主頁http://m.wxtmjd.cn/,或者撥打我們的免費電話400-8080-889在線咨詢。
>>>>推薦閱讀:想建房的朋友們注意啦!11款三層歐式自建別墅設計圖供你選擇
>>>>推薦閱讀:在農村建一個這樣的三層歐式別墅,美觀大方不過時
>>>>推薦閱讀:自建三層簡歐風格別墅,造價不過30萬卻能讓別墅經典又耐看











