10套農村自建別墅豪宅典范,傳世大宅代表作
相信每個人心目中都有個別墅夢,落葉望歸根,衣錦復還鄉,回老家建房,其實很簡單,給父母一個晚年好居,為自己后代建一個能傳世的房子。每一個榮耀家族,總有一處傳世大宅。住宅才是家族最基本的物質形態與活動空間,無論是教育子女、繼承財富,還是展示禮儀、延續家業,都要通過家族的住宅來實現。那么,傳世大宅該是什么樣子的?下面這十款農村自建別墅豪宅符合你心中傳世大宅的樣子嗎?
漂亮豪華三層帶露臺歐式別墅



編號: DC0218
層數: 三層
開間: 11.8米 進深: 12.5米
占地面積: 134.94平方米
建筑面積: 360.63平方米
主體造價: 35-42萬
首層戶型:

圖紙預覽:


一 層:客廳(中空)、臥室(附衛生間)、棋牌室、廚房、餐廳、衛生間
二 層:會客廳(附露臺)、多功能廳、臥室(附衛生間)、2臥室、衛生間
三 層:多功能廳、棋牌室、臥室(附衛生間)、2臥室、衛生間、露臺
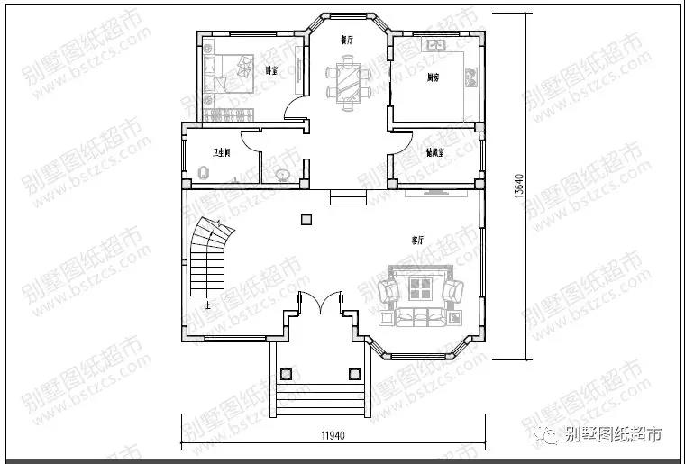
豪華三層復式別墅

編號: DC0217
層數: 三層
開間: 11.94米 進深: 13.64米
占地面積: 150.77平方米
建筑面積: 398.05平方米
主體造價: 35-40萬
首層戶型:

圖紙預覽:


一 層:客廳、休閑廳(中空)、臥室、廚房、餐廳、儲藏室、衛生間
二 層:主臥(附衣帽間,衛生間)、2臥室、衛生間
三 層:活動室、2臥室、書房、衛生間、露臺
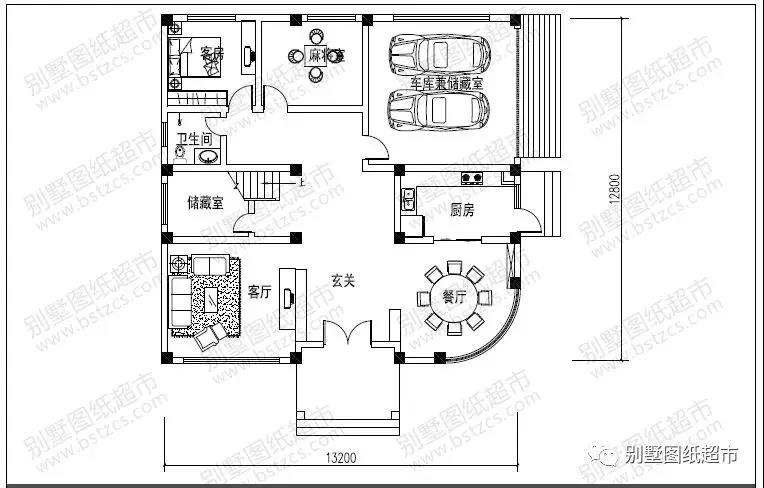
三層框架結構豪華別墅

編號: DC0111
層數: 三層
開間: 13.2米 進深: 12.8米
占地面積: 170.38平方米
建筑面積: 412.72平方米
主體造價: 38-42萬
首層戶型:

圖紙預覽:


一 層:客廳、麻將室、客房、廚房、餐廳、衛生間、儲藏室、車庫
二 層:起居室(附陽臺)、2臥室(衛生間)、臥室、娛樂室(附陽臺)、衛生間
三 層:家庭室、儲藏室、臥室(附衛生間)、露臺
三層豪華型別墅

編號: DC0090
層數: 三層
開間: 11.7米 進深: 11.2米
占地面積: 130.04平方米
建筑面積: 336.44平方米
主體造價: 35-40萬
首層戶型:

圖紙預覽:


一 層:客廳(中空)、臥室、棋牌室、廚房、餐廳、儲藏室、衛生間
二 層:小客廳、臥室(附衛生間)、2臥室、衛生間
三 層:活動室、臥室(附衛生間)、臥室、衛生間、露臺
豪華三層復式雙拼別墅

編號: DC0284
層數: 三層
開間: 23.2米 進深: 12.1米
占地面積: 274.14平方米
建筑面積: 732.07平方米
主體造價: 50萬以上
首層戶型:

圖紙預覽:


一 層:客廳(中空)、老人房(附衛生間)、臥室、廚房、餐廳、衛生間
二 層:起居室、主臥(附衛生間,陽臺)、2臥室、書房、衛生間
三 層:健身房、主臥(附衛生間,陽臺)、臥室、衛生間、露臺
霸氣錯層歐式三層半別墅

編號: DC0080
層數: 四層
開間: 11.7米 進深: 12.9米
占地面積: 120.1平方米
建筑面積: 316.66平方米
主體造價: 40-50萬
首層戶型:

圖紙預覽:


一 層:玄關、客廳、臥室、廚房、餐廳、2衛生間、車庫(附儲藏間)
二 層:臥室(附衛生間,陽臺)、臥室、衛生間
三 層:臥室(附更衣間,衛生間,陽臺)、臥室(附書房)、臥室、娛樂室(附露臺)、衛生間
四 層:多功能廳(附陽臺)、露臺
三層歐式豪華別墅

編號: DC0068
層數: 三層
開間: 15米 進深: 13.2米
占地面積: 165.47平方米
建筑面積: 548.51平方米
主體造價: 50萬以上
首層戶型:

圖紙預覽:


一 層:客廳(中空)、臥室(附衛生間)、臥室、廚房、餐廳、衛生間
二 層:起居室、2臥室(附衛生間)、衛生間、露臺
三 層:主臥(附更衣室,衛生間)、2臥室(附衛生間)、露臺
豪華霸氣三層私人別墅



編號: DC0035
層數: 三層
開間: 14.34米 進深: 14.045米
占地面積: 154.33平方米
建筑面積: 332.28平方米
主體造價: 36-42萬
首層戶型:

圖紙預覽:


一 層:客廳(中空)、臥室(附衛生間)、臥室、棋牌室、廚房、餐廳、衛生間
二 層:起居室、臥室(附衣帽間,衛生間)、2臥室、衛生間
三 層:家庭影院(附露臺)、臥室、洗衣房、露臺
大氣三層中式風格別墅

編號: DC0367
層數: 三層
開間: 12米 進深: 13.92米
占地面積: 160.85平方米
建筑面積: 467.26平方米
主體造價: 40-45萬
一 層:門廳、客廳、臥室(附衛生間)、臥室、廚房、餐廳、衛生間
二 層:起居室、娛樂室(附陽臺)、臥室(附衛生間)、3臥室、衛生間
三 層:起居室、臥室、書房、陽光房、健身房(附露臺)、衛生間、雜物間、露臺
首層戶型:

二層戶型:

三層戶型:

農村三層新中式別墅

編號: DC0335
層數: 三層
開間: 13.2米 進深: 14.7米
占地面積: 229.61平方米
建筑面積: 530.37平方米
主體造價: 48-53萬
一 層:門廳、客廳、臥室(附衛生間)、2臥室、廚房、餐廳、衛生間
二 層:起居室(附露臺)、茶廳(附陽臺)、臥室(附衛生間)、臥室(附衣帽間)、3臥室、衛生間
三 層:健身廳、臥室(附衛生間,露臺)、3臥室、衛生間、露臺
首層戶型:

二層戶型:

三層戶型:

.jpg)
本文由別墅圖紙超市編輯發布,如需了解更多,可登錄網站主頁http://m.wxtmjd.cn/,或者撥打我們的免費電話400-8080-889在線咨詢。
>>>>推薦閱讀:十套經典美觀農村別墅(效果圖+建房案例),良心推薦!
>>>>推薦閱讀:10款帶露臺車庫的農村別墅,實用經濟戶型好!
>>>>推薦閱讀:13款新中式自建別墅設計圖,中國人拒絕不了的美!











