湖南農村30萬自建350平別墅實例,看完分分鐘想自己建一套!
農村發展迅速,好多朋友都住上了心儀的小別墅。城里人看了都羨慕。以前農村人蓋房不講究,只要能住就行了。現在的農村遍地都是小別墅,什么樣的風格都有,比商品房簡直好看太多。看看下面這樣的農村自建房,城市幾百萬、1000萬買個別墅最多也就這樣的程度,還沒有農村的好環境。農村有地,建一套這樣的三層小樓,能住100年。主體也就30~40萬不等的造價,城里只夠首付。
.jpg)
今天所講這套別墅位于湖南農村,2015年做的土建,2016年上半年做的裝修,那時候紅磚和材料都算便宜,人工也便宜。350平方,土建花30萬,外裝加門窗和院子護欄等外部工程一起花了快20萬。放到今年的話,肯定不止這個價,所以說建房還是要趁早!
.jpg)
這是一套非常大氣的歐式三層別墅,一層有車庫,因為車庫要進深大,所以跟門斗齊平,二層剛剛好多了一個大陽臺。半平半坡的三層,農村最實用的戶型,而浮雕、小裝飾柱的設計讓整棟房子美艷不可方物,預制構件裝飾屋檐,這樣建房在當地農村還是頭一棟!傳統的瓷磚外墻,米黃色與紅色10:1搭配,非常精致

側面同樣非常精美,富于空間變化,還有時尚的飄窗,美觀、實用,還解決了空調外機的擺放問題。拱形的落地窗美到沒邊,如果非要找不足,落地窗旁邊的落水管是唯一的敗筆,做在側面就完美了,不會破壞正面美觀度。

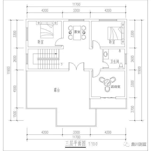
這么漂亮的別墅,室內布局怎樣呢?再一起來看看室內布局吧。
一層有車庫、大客廳,還有一間臥室作為父母房。因為臨路而建,父母房放在后方更安靜、私密,有利于休息。

二層有茶室和小起居區,三個臥室,主臥室可以進出陽臺,豐富日常生活。

三層設計了活動室,還有兩個備用房間,做客房還是儲物室完全可以根據不同家庭的需求來決定。

看到別人家都住上這樣的小別墅了,是不是很羨慕了。所以說建房還是要趁早,不僅可以節省成本,而且還可以早日住上小別墅哦~
.jpg)
本文由別墅圖紙超市編輯發布,如需了解更多,可登錄網站主頁http://m.wxtmjd.cn/,或者撥打我們的免費電話400-8080-889在線咨詢。
>>>>推薦閱讀:復式三層帶露臺別墅設計實拍,農村自建房的大氣代表!
>>>>推薦閱讀:這款新農村三層別墅設計圖紙實拍,看了你也會喜歡
>>>>推薦閱讀:農村三層帶旋轉樓梯別墅設計施工實拍,大氣精致不低俗











