6款造價20萬的自建房,比買的房住著踏實,專屬老百姓的好房子
房子是生活中的必需品,也是人的一生中必要的追求,現在的許多地方房子已經列入了結婚必要的前提,有了房子才要談結婚的事,有人問為啥現在許多人城市中有房子了還想要回到鄉村再建一座,建了也不住不是浪費么,時間一長才發現,這些人才是有遠見的人,現在不僅建筑材料價格上漲,在自建房方面以后也會越來越嚴格,之前已經建好房子的人現在好了,回家養老休閑。畢竟相對城里有產權期限的房子來說。在自建宅基地建的房子才是咱們老百姓自己的房子!準備在農村自建房的朋友,可以看看以下這幾款,造價只要20萬。
編號: DC0009
層數: 二層
結構形式: 磚混結構
主體造價: 18-22萬
開間: 10.2米
進深: 9.7米
占地面積: 96.6平方米
建筑面積: 193.2平方米

首層布局:

圖紙預覽:


一 層: 玄關、客廳、臥室、棋牌室、廚房、餐廳、衛生間
二 層: 小客廳、臥室(附陽臺)、3臥室、衛生間
編號: DC0012
層數: 二層
結構形式: 磚混結構
主體造價: 18-22萬仨
開間: 12.6米
進深: 10.1米
占地面積: 111.35平方米
建筑面積: 253.1平方米

首層布局:

圖紙預覽:



一 層: 堂屋、客廳、臥室、廚房、餐廳、衛生間
二 層: 客廳(附陽臺)、棋牌室、臥室(附陽臺)、2臥室、衛生間
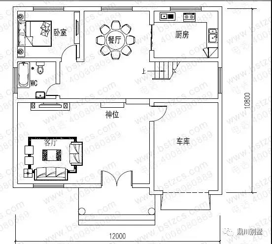
編號: DC0022
層數: 二層
結構形式: 磚混結構
主體造價: 19-24萬
開間: 12米
進深: 10.8米
占地面積: 130.23平方米
建筑面積: 260.46平方米

首層布局:

圖紙預覽:


一 層: 客廳、臥室、廚房、餐廳、衛生間、車庫
二 層: 客廳(附陽臺)、主臥(附衛生間)、3臥室、棋牌室、衛生間
編號: DC0042
層數: 二層
結構形式: 磚混結構
主體造價: 18-24萬
開間: 13.4米
進深: 10.5米
占地面積: 146.49平方米
建筑面積: 294.51平方米

首層布局:

圖紙預覽:


一 層: 客廳、2臥室、廚房、餐廳、衛生間
二 層: 客廳(附陽臺)、棋牌室、4臥室、衛生間
編號: DC0050
層數: 二層
結構形式: 磚混結構
主體造價: 19-22萬
開間: 10.2米
進深: 9.6米
占地面積: 92.29平方米
建筑面積: 201.08平方米

首層布局:

圖紙預覽:


一 層: 客廳、臥室(附衛生間)、廚房、餐廳、衛生間
二 層: 客廳、臥室(附衛生間)、臥室、衛生間、陽臺
編號: DC0100
層數: 二層
結構形式: 磚混結構
主體造價: 18-25萬
開間: 12米
進深: 11.1米
占地面積: 125.03平方米
建筑面積: 271.92平方米

首層布局:

圖紙預覽:


一 層: 客廳、臥室、廚房、餐廳、衛生間、車庫
二 層: 起居室、主臥(附書房,儲藏室,陽臺)、2臥室、衛生間、露臺
.jpg)
本文由別墅圖紙超市編輯發布,如需了解更多,可登錄網站主頁http://m.wxtmjd.cn/,或者撥打我們的免費電話400-8080-889在線咨詢。
>>>>推薦閱讀:6款非常適合農村自建房的三層復式別墅設計
>>>>推薦閱讀:6套11×12米的農村別墅大熱戶型,挑一套年后就建!
>>>>推薦閱讀:農村建房最鐘愛的別墅戶型:第1款最經濟,第6款賣最火











