精選10款帶煙囪設計自建別墅,鄉村風味最經典!
在農村生活過的人,對煙囪肯定不陌生,以前的農村自建房一般都會有個灶房,通過燒柴火來做飯,產生的煙就要通過煙囪來排出去,現在很多農村別墅雖然沒有灶房了,但為了加強別墅的美觀性,我們通常在別墅的外觀造型和外墻裝飾上下功夫,做個漂亮的屋頂、外墻用多種材料和顏色來裝飾,再做個煙囪,鄉村風味就出來了。
漂亮二層獨棟小別墅


戶型基本信息
編號: DC0311
結構形式: 框架結構
開間: 14.1米 進深: 12.9米
占地面積: 151.39平方米
建筑面積: 357.24平方米
主體造價: 30-36萬
首層戶型:

圖紙預覽:


一 層:走廊、堂屋、客廳、臥室、廚房、餐廳、儲藏室、衛生間
二 層:客廳(附陽臺)、娛樂室、臥室(附衛生間)、臥室、書房、衛生間
新農村二層帶露臺小別墅

戶型基本信息
編號: DC0352
結構形式: 磚混結構
開間: 12.1米 進深: 13.9米
占地面積: 151.09平方米
建筑面積: 300.11平方米
主體造價: 25-30萬
首層戶型:

二層戶型:

一 層:堂屋、客廳、臥室(附衛生間)、臥室、廚房、餐廳、衛生間
二 層:起居室、臥室(附衛生間)、臥室(附陽臺)、臥室、衛生間、露臺
二層框架結構抗震小別墅


戶型基本信息
編號: DC0295
結構形式: 框架結構
開間: 13.7米 進深: 10.2米
占地面積: 131.03平方米
建筑面積: 291.61平方米
主體造價: 25-30萬
首層戶型:

圖紙預覽:


一 層:玄關、客廳、臥室、棋牌室、廚房、餐廳、衛生間
二 層:客廳、休息區(附陽臺)、臥室(附書房)、2臥室、衛生間
漂亮二層帶閣樓別墅

戶型基本信息
編號: DC0304
結構形式: 框架結構
開間: 16.3米 進深: 15.3米
占地面積: 229.61平方米
建筑面積: 565.33平方米
主體造價: 50萬以上
首層戶型:

圖紙預覽:


一 層:門廳、客廳(中空)、3臥室、棋牌室、廚房、餐廳、室內景觀、儲存間、衛生間、車庫
二 層:起居室、客廳、臥室(附書房,衣帽間,衛生間)、臥室(附露臺)、2臥室、衛生間
二層帶露臺復式別墅

戶型基本信息
編號: DC0293
結構形式: 磚混結構
開間: 15.9米 進深: 10.8米
占地面積: 151.83平方米
建筑面積: 292.61平方米
主體造價: 26-30萬
首層戶型:

圖紙預覽:


一 層:門廳、客廳(中空)、2臥室、廚房、餐廳、衛生間、車庫
二 層:客廳、臥室(附露臺)、臥室(附書房)、臥室、衛生間、露臺
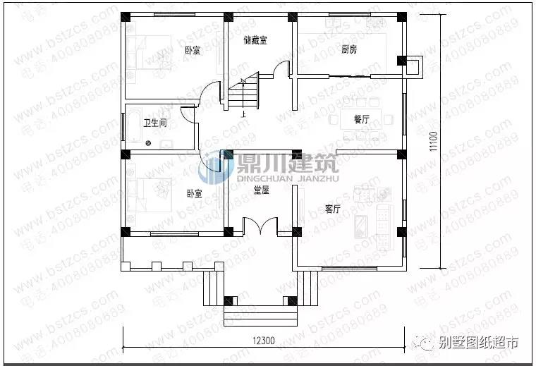
二層帶露臺農村別墅

戶型基本信息
編號: DC0287
結構形式: 框架結構
開間: 12.3米 進深: 11.1米
占地面積: 130平方米
建筑面積: 295.19平方米
主體造價: 25-30萬
首層戶型:

圖紙預覽:


一 層:走廊、堂屋、客廳、2臥室、廚房、餐廳、衛生間、儲藏室
二 層:客廳(附露臺)、臥室(附書房,露臺)、臥室(附露臺)、臥室、衛生間
框架結構二層帶車庫別墅

戶型基本信息
編號: DC0265
結構形式: 框架結構
開間: 14.7米 進深: 10.8米
占地面積: 148.78平方米
建筑面積: 354.63平方米
主體造價: 30-35萬
首層戶型:

圖紙預覽:


一 層:客廳、臥室、棋牌室、廚房、餐廳、衛生間、儲藏室、車庫
二 層:休息區、客廳(附陽臺)、臥室(附書房,衛生間)、臥室(附衣帽間)、2臥室、衛生間
二層豪華私人別墅

戶型基本信息
編號: DC0192
結構形式: 框架結構
開間: 16.94米 進深: 12.04米
占地面積: 168.28平方米
建筑面積: 331.33平方米
主體造價: 30-36萬
首層戶型:

圖紙預覽:


一 層:門廳、客廳、2臥室、廚房、餐廳、衛生間、車庫
二 層:起居室、臥室(附書房,衣帽間,衛生間,露臺)、臥室、衛生間、陽臺、露臺
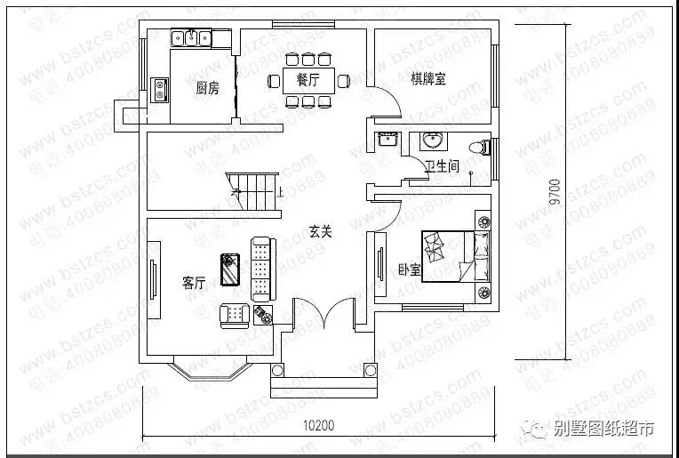
二層帶陽臺小別墅

戶型基本信息
編號: DC0235
結構形式: 磚混結構
開間: 10.2米 進深: 9.7米
占地面積: 96.6平方米
建筑面積: 193.2平方米
主體造價: 18-22萬
首層戶型:

圖紙預覽:


一 層:玄關、客廳、臥室、棋牌室、廚房、餐廳、衛生間
二 層:小客廳、臥室(附陽臺)、3臥室、衛生間
二層帶車庫框架結構別墅


戶型基本信息
編號: DC0254
結構形式: 框架結構
開間: 13.4米 進深: 9.2米
占地面積: 109.24平方米
建筑面積: 213.56平方米
主體造價: 26-32萬
首層戶型:

圖紙預覽:


一 層:客廳、臥室、廚房(兼餐廳)、衛生間、車庫
二 層:客廳(附陽臺)、臥室(附陽臺)、2臥室、衛生間
.jpg)
本文由別墅圖紙超市編輯發布,如需了解更多,可登錄網站主頁http://m.wxtmjd.cn/,或者撥打我們的免費電話400-8080-889在線咨詢。
>>>>推薦閱讀:6套精美小別墅,有錢人農村建別墅的首選!
>>>>推薦閱讀:開春建房不可錯過的8套自建別墅戶型,百看不厭還實用!
>>>>推薦閱讀:22款定制風格的農村別墅,隨便建一套都驚艷!











