10款占地100平左右農村別墅,小宅地基建大氣別墅就這么簡單!
春暖花開,正是建房的好時節。想要建房的朋友可以趁著天氣變暖,準備建房了。農村建房實用為主,不用建的太大,地基小也以可建出漂亮實用的別墅。今天給大家推薦的這10款圖紙占地面積適宜,外觀舒適大氣,各方面功能區分合理,空間利用率高,能滿足農村生活的各種基本需求。
農村三層小戶型自建別墅

戶型基本信息
編號: DC0372
結構形式: 磚混結構
開間: 11.3米 進深: 7.8米
占地面積: 94.85平方米
建筑面積: 271.98平方米
主體造價: 24-28萬
首層戶型:

二層戶型:

三層戶型:

一 層:門廳、客廳、臥室、廚房、餐廳、衛生間
二 層:起居室、娛樂室(附陽臺)、3臥室、衛生間
三 層:起居室、茶室、2臥室、衛生間、露臺
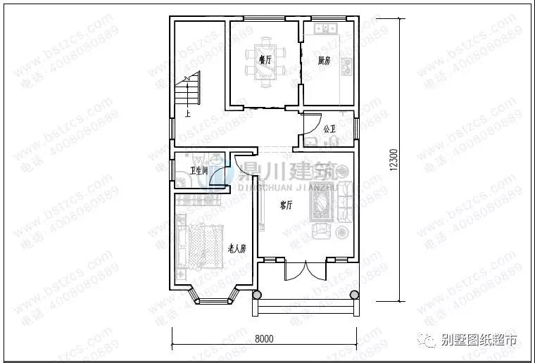
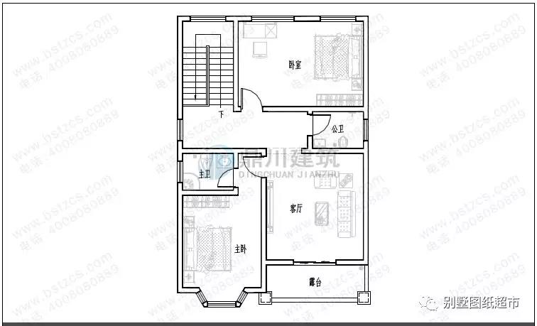
二層帶露臺小戶型別墅

戶型基本信息
編號: DC0366
結構形式: 磚混結構
開間: 8米 進深: 12.3米
占地面積: 100.91平方米
建筑面積: 211.08平方米
主體造價: 18-22萬
首層戶型:

二層戶型:

一 層:客廳、臥室(附衛生間)、廚房、餐廳、衛生間
二 層:客廳(附露臺)、臥室(附衛生間)、臥室、衛生間
新農村實用二層小別墅

戶型基本信息
編號: DC0273
結構形式: 磚混結構
開間: 10.5米 進深: 8米
占地面積: 88.5平方米
建筑面積: 204.82平方米
主體造價: 16-20萬
首層戶型:

圖紙預覽:

一 層:客廳、臥室、廚房、餐廳、儲藏室、衛生間
二 層:3臥室、書房(附陽臺)、衛生間
三層歐式小別墅

戶型基本信息
編號: DC0276
結構形式: 框架結構
開間: 12米 進深: 9.3米
占地面積: 97.58平方米
建筑面積: 275.41平方米
主體造價: 25-30萬
首層戶型:

圖紙預覽:

一 層:堂屋、客廳、臥室、廚房、餐廳、儲藏室、衛生間
二 層:起居室、娛樂室、臥室(附陽臺)、臥室、衛生間、露臺
三 層:3臥室、衛生間、露臺
農村二層坡屋頂小別墅

戶型基本信息
編號: DC0283
結構形式: 磚混結構
開間: 11米 進深: 9.6米
占地面積: 112.72平方米
建筑面積: 257.77平方米
主體造價: 20-25萬
首層戶型:

圖紙預覽:

一 層:堂屋、客廳、2臥室、廚房、餐廳、衛生間
二 層:客廳(附陽臺)、臥室(附書房)、3臥室、衛生間
新農村二層小別墅

戶型基本信息
編號: DC0310
結構形式: 磚混結構
開間: 12米 進深: 10.8米
占地面積: 116.32平方米
建筑面積: 314.95平方米
主體造價: 28-32萬
首層戶型:

圖紙預覽:

一 層:客廳、2臥室、廚房、餐廳、衛生間
二 層:客廳、臥室(附衛生間)、2臥室、棋牌室、衛生間、陽臺
新農村二層小別墅

戶型基本信息
編號: DC0345
結構形式: 磚混結構
開間: 12.9米 進深: 9.5米
占地面積: 94.32平方米
建筑面積: 204.17平方米
主體造價: 20-25萬
首層戶型:

二層戶型:

一 層:客廳、臥室(附衛生間)、廚房、餐廳、衛生間、儲存間、車庫
二 層:主臥(附衣帽間,衛生間,露臺)、臥室(附衣帽間,衛生間)
二層復式樓小別墅

戶型基本信息
編號: DC0259
結構形式: 磚混結構
開間: 10.8米 進深: 10.7米
占地面積: 116.4平方米
建筑面積: 273.78平方米
主體造價: 22-26萬
首層戶型:

圖紙預覽:

一 層:客廳(中空)、臥室(附衛生間)、娛樂間、廚房、餐廳、衛生間
二 層:起居室(附陽臺)、臥室(附衛生間)、3臥室、衛生間
簡單實用的二層小別墅

戶型基本信息
編號: DC0282
結構形式: 磚混結構
開間: 12米 進深: 8米
占地面積: 100.86平方米
建筑面積: 227.77平方米
主體造價: 16-20萬
首層戶型:

圖紙預覽:

一 層:堂屋、客廳、臥室、廚房、餐廳、衛生間
二 層:客廳(附陽臺)、臥室(附陽臺)、臥室、兒童房、書房、衛生間
二層帶車庫小別墅

戶型基本信息
編號: DC0271
結構形式: 磚混結構
開間: 12.6米 進深: 9.9米
占地面積: 110.94平方米
建筑面積: 257.49平方米
主體造價: 16-20萬
首層戶型:

圖紙預覽:

一 層:客廳、臥室、廚房(兼餐廳)、衛生間、車庫
二 層:起居室(附陽臺)、2臥室、娛樂間(附陽臺)、衛生間
.jpg)
本文由別墅圖紙超市編輯發布,如需了解更多,可登錄網站主頁http://m.wxtmjd.cn/,或者撥打我們的免費電話400-8080-889在線咨詢。
>>>>推薦閱讀:5款新農村別墅設計,滿足你對平頂房的美好期待!
>>>>推薦閱讀:6套11×12米的農村別墅大熱戶型,挑一套年后就建!
>>>>推薦閱讀:10款復式客廳自建別墅,大氣好戶型,開春建房不用愁!











