精選6款高品質農村別墅,養老住家最佳之選!
在城里和農村之間,很多上了年紀的老人家肯定會選擇農村生活,畢竟一輩子都是在農村生活的,到老了要遠離故土去向城里肯定不習慣。于是很多的朋友考慮到父母能安享晚年生活,也會選擇在農村來一套自建房。不過現在的農村別墅雖已隨處可見,但是看來看去樣式都差不多,缺了一些獨特美感,讓不少的人吐槽咱們農村人的品味。今天小編特意推薦6款戶型,造價實惠又實用,養老住家最合適!希望可以給大家個參考,建一套引領全村建房潮流。
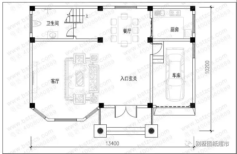
三層自建別墅


戶型基本信息
編號:DC0040
結構形式:框架結構
開間:13.4米 進深:10.2米
占地面積:119平方米
建筑面積:297.6平方米
主體造價:25-30萬
首層戶型:

圖紙預覽:



一層:入口玄關、客廳、廚房、餐廳、衛生間、車庫
二層:起居室、臥室(附陽臺)、臥室、書房、衛生間
三層:起居室、主臥(附陽臺)、臥室(附陽臺)、書房、衛生間、露臺
二層帶露臺別墅

戶型基本信息
編號:DC0154
結構形式:磚混結構
開間:12米 進深:11.7米
占地面積:115.33平方米
建筑面積:332.7平方米
主體造價:26-30萬
首層戶型:

圖紙預覽:


一層:門廳、客廳、臥室(附衛生間)、廚房、餐廳、衛生間
二層:起居室、臥室(附衛生間)、臥室(附陽臺)、書房(附陽臺)、衛生間、露臺
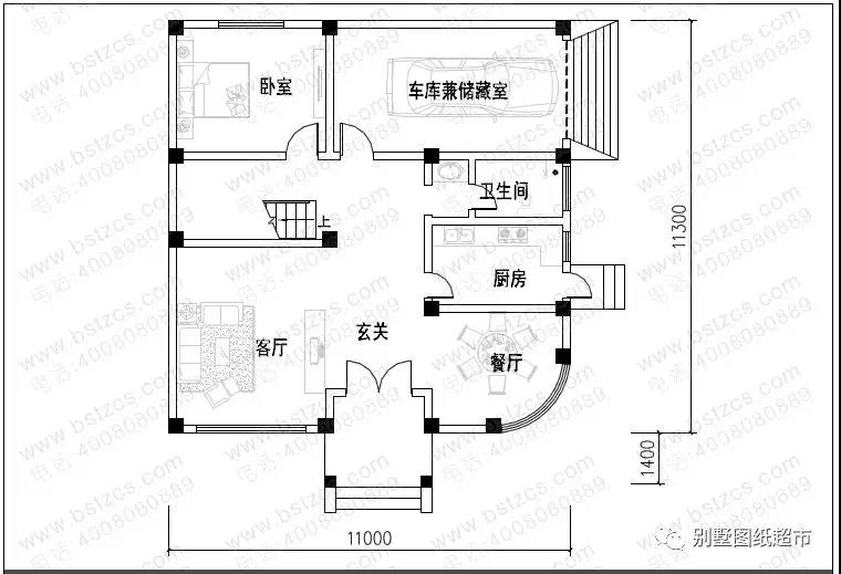
漂亮實用三層簡歐小別墅

建成案例:

戶型基本信息
編號:DC0243
結構形式:框架結構
開間:11米 進深:11.3米
占地面積:120.85平方米
建筑面積:307.63平方米
主體造價:25-32萬
首層戶型:

圖紙預覽:


一層:客廳、臥室、廚房、餐廳、衛生間、車庫或儲藏室
二層:客廳、臥室(附衛生間)、2臥室、書房(附陽臺)、衛生間、陽臺
三層:2臥室(附衛生間)、露臺
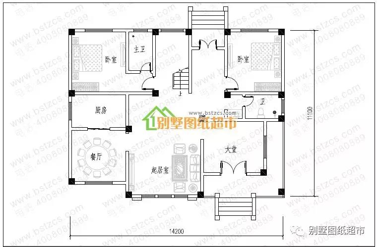
二層帶閣樓的別墅


戶型基本信息
編號:DC0260
結構形式:框架結構
開間:14.2米 進深:11.1米
占地面積:144.24平方米
建筑面積:344.08平方米
主體造價:34-40萬
首層戶型:

圖紙預覽:



一層:大堂、客廳、臥室(附衛生間)、臥室、廚房、餐廳、衛生間
二層:起居室、臥室(附露臺)、臥室(附陽臺)、臥室、衛生間、陽臺
閣樓:儲藏間、衛生間、露臺
農村三層自建房


戶型基本信息
編號:DC0177
結構形式:框架結構
開間:12.2米 進深:13.5米
占地面積:146.12平方米
建筑面積:405.58平方米
主體造價:34-40萬
首層戶型:

圖紙預覽:


一層:客廳、臥室(附衛生間)、臥室、棋牌室、廚房、餐廳(附景觀陽臺)、衛生間;
二層:起居室(附陽臺)、茶廳(附陽臺)、臥室(附陽臺)、臥室(附衛生間)、2臥室、書房、衛生間;
三層:健身房(附露臺)、臥室(附衛生間,露臺)、2臥室、書房、衛生間
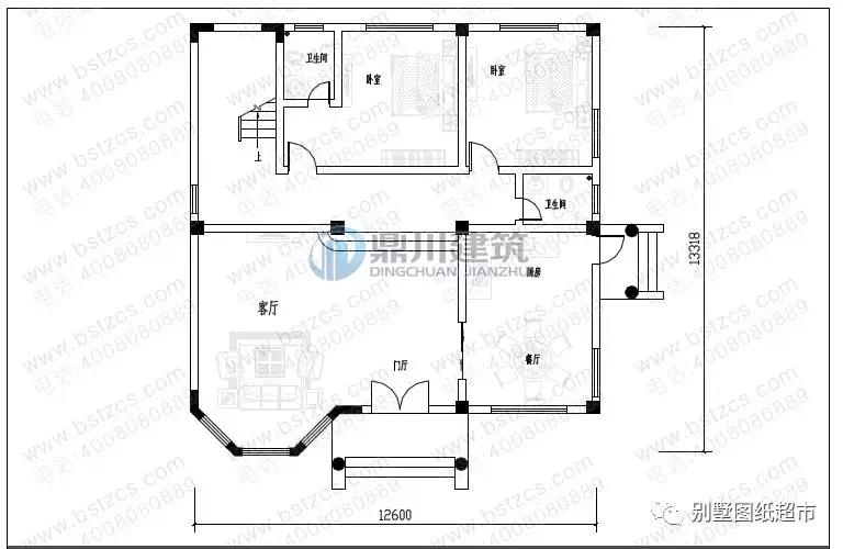
二層歐式小別墅

建成案例:

戶型基本信息
編號:DC0299
結構形式:框架結構
開間:12.6米 進深:13.318米
占地面積:161.48平方米
建筑面積:381.05平方米
主體造價:30-36萬
首層戶型:

圖紙預覽:


一層:門廳、客廳、臥室(附衛生間)、臥室、廚房、餐廳、衛生間
二層:起居室、臥室(附書房,露臺,衣帽間,衛生間)、2臥室、衛生間
.jpg)
本文由別墅圖紙超市編輯發布,如需了解更多,可登錄網站主頁http://m.wxtmjd.cn/,或者撥打我們的免費電話400-8080-889在線咨詢。
>>>>推薦閱讀:6款非常適合農村自建房的三層復式別墅設計
>>>>推薦閱讀:6套適合農村的別墅,第1套最省錢,第4、6最漂亮!
>>>>推薦閱讀:6套帶旋轉樓梯農村自建別墅,大氣有品位,看過的都說好











