【案例】三層農村別墅超經典,中式裝修卻更惹眼,高貴而典雅!
以前的農村一看上去,房子差不多都是四四方方,沒有任何造型,現如今農村建房一個比一個好看。一看就知道是經過設計師設計過的房子。農村建房建個好看的造型然后再精心裝修一下,想想都覺得美,下面這套房子外觀時尚經典,讓人羨慕,看了室內裝修,更覺驚艷,和小編一起來欣賞一下吧!
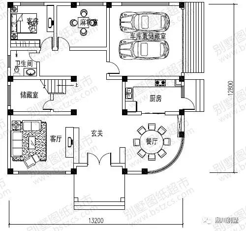
房屋信息
層數: 三層
結構形式: 框架結構
主體造價: 38-42萬
開間: 13.2米
進深: 12.8米
占地面積: 170.38平方米
建筑面積: 412.72平方米


一 層:客廳、麻將室、客房、廚房、餐廳、衛生間、儲藏室、車庫
二 層:起居室(附陽臺)、2臥室(衛生間)、臥室、娛樂室(附陽臺)、衛生間
三 層:家庭室、儲藏室、臥室(附衛生間)、露臺
建房案例



從入戶大門就可以看得出主人家的品味不俗,鐵藝大門彰顯氣質。此款房子外觀典雅精致,文化石凸顯了房子的立體感,耐臟又耐看,雅致而別具風味。二三層淺色的墻磚層次分明,不落俗套。再加上大方的窗戶和別致的造型。單單看房子的外面就讓人羨慕不已!
看了此款房子的外觀就讓人忍不住想去看看室內裝修是怎樣的,別急,這就和小編一起來欣賞欣賞!



室內采用中式的裝修風格,典雅不失大氣,暗紅色的木質家具彰顯了傳統的韻味,處處充滿著古典的書香氣。再加上典雅的裝飾,高貴而盡顯氣質。淡藍色的臺燈更添了一絲絲明媚的氣息。


用紅色和橘色的花來裝飾客廳,讓客廳瞬間就生動活潑起來了,完全消除了壓抑感。深藍色的燈具更添了絲絲高貴典雅。從室內就可以看出房子的采光很好,視野也很開闊。真是讓人羨慕呀!
怎么樣,看了這套小別墅,有沒有分分鐘想回農村建房的感覺?
.jpg)
本文由別墅圖紙超市編輯發布,如需了解更多,可登錄網站主頁http://m.wxtmjd.cn/,或者撥打我們的免費電話400-8080-889在線咨詢。
>>>>推薦閱讀:新中式風格裝修,精致典雅,古墨飄香!
>>>>推薦閱讀:案例分享:三層復式框架結構農村別墅,2款案例驚艷村里人!
>>>>推薦閱讀:超實在的三層農村別墅,復式客廳帶堂屋,農村建房的首選戶型











