10款進深12米農村別墅,不可錯過的戶型,蓋一棟值了!
都說有房才有家,房子不但是心的歸宿,也是身體的安身之所。人活一輩子,有一大半輩子都是為了房子在打拼,只想有棟有一個家。對于農村人來說城里的房子再好,再方便,再值錢,也不是家,只是一個住所,住在里面心是飄的。而農村的房子再舊再破,那是家,那是故鄉,哪怕住在土炕上,吃飯是香的,睡覺是安穩的。所以現在農村別墅越來越多。那么如何讓自己的農村別墅看起來更加高端大氣好看實用呢?今天為大家整理了一組進深12米左右的新農村自建別墅,希望符合你對農村別墅的建造需求。
二層簡歐小別墅

編號: DC0290
結構形式: 磚混結構
開間: 13.2米 進深: 12米
占地面積: 147.23平方米
建筑面積: 360.51平方米
主體造價: 28-32萬
首層戶型:

圖紙預覽:

一 層:門廳、客廳、臥室、廚房(附洗衣房)、餐廳、衛生間、車庫
二 層:起居室、主臥(附書房,衣帽間,衛生間)、臥室(附陽臺)、2臥室、衛生間
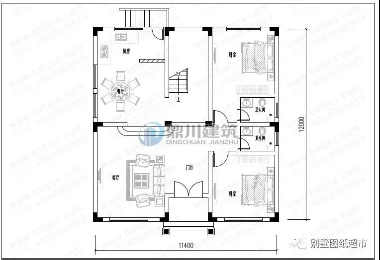
農村二層帶陽臺小別墅

編號: DC0315
結構形式: 框架結構
開間: 11.4米 進深: 12米
占地面積: 138.78平方米
建筑面積: 309.63平方米
主體造價: 28-32萬
首層戶型:

圖紙預覽:

一 層:門廳、客廳、臥室(附衛生間)、臥室、廚房、餐廳、衛生間
二 層:起居室、臥室(附書房,衛生間,陽臺)、臥室(附陽臺)、臥室、衛生間
農村三層帶露臺別墅

編號: DC0321
結構形式: 框架結構
開間: 12.6米 進深: 12米
占地面積: 130.02平方米
建筑面積: 390.98平方米
主體造價: 35-40萬
首層戶型:

圖紙預覽:

一 層:過道、門廳、客廳、臥室(附衛生間)、廚房、餐廳、儲存間、衛生間
二 層:起居室、臥室(附衣帽間,衛生間,陽臺)、臥室(附書房,衣帽間,內陽臺)、臥室、衛生間
三 層:健身廳、臥室(附內陽臺)、臥室(附露臺)、臥室、儲存間、衛生間、露臺
漂亮實用三層農村別墅

編號: DC0325
結構形式: 框架結構
開間: 14.4米 進深: 12.5米
占地面積: 160.22平方米
建筑面積: 475.72平方米
主體造價: 45-50萬
首層戶型:

圖紙預覽:

一 層:堂屋、客廳、臥室(附衣帽間,衛生間)、臥室、廚房、餐廳、儲藏間、衛生間
二 層:起居室(附露臺)、臥室(附書房,衛生間)、臥室(附衣帽間)、臥室(附2陽臺)、臥室、衛生間
三 層:健身廳(附露臺)、臥室(附書房,衛生間)、臥室(附露臺)、臥室、衛生間、露臺
大氣豪華三層歐式別墅

編號: DC0329
結構形式: 框架結構
開間: 11.1米 進深: 12.3米
占地面積: 137.78平方米
建筑面積: 414.19平方米
主體造價: 40-45萬
首層戶型:

二層戶型:

三層戶型:

一 層:門廳、客廳(中空)、臥室(附衛生間)、臥室、廚房、餐廳、衛生間
二 層:起居室、臥室(附書房,衛生間,陽臺)、臥室、棋牌室、衛生間
三 層:健身廳、臥室(附衛生間,露臺)、臥室、書房、衛生間、露臺
新農村二層自建房別墅

編號: DC0354
結構形式: 磚混結構
開間: 13.8米 進深: 12.3米
占地面積: 176.06平方米
建筑面積: 362.03平方米
主體造價: 32-36萬
首層戶型:

二層戶型:

一 層:走廊、門廳、客廳、臥室(附衛生間)、臥室(附衣帽間)、廚房、餐廳、衛生間
二 層:起居室(附陽臺)、臥室(附衣帽間,書房,衛生間)、臥室(附2露臺)、臥室、衛生間
復式三層帶露臺簡歐小別墅

編號: DC0361
結構形式: 磚混結構
開間: 11米 進深: 12米
占地面積: 138.34平方米
建筑面積: 351.69平方米
主體造價: 30-35萬
首層戶型:

二層戶型:

三層戶型:

一 層:門廳、客廳(中空)、臥室(附衛生間)、臥室、廚房、餐廳、衛生間
二 層:客廳(附露臺)、臥室(附衛生間,陽臺)、臥室(附書房)、臥室、衛生間
三 層:健身房、臥室(附衛生間)、臥室、衛生間、露臺
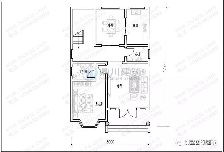
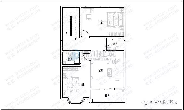
二層帶露臺小戶型別墅

編號: DC0366
結構形式: 磚混結構
開間: 8米 進深: 12.3米
占地面積: 100.91平方米
建筑面積: 211.08平方米
主體造價: 18-22萬
首層戶型:

二層戶型:

一 層:客廳、臥室(附衛生間)、廚房、餐廳、衛生間
二 層:客廳(附露臺)、臥室(附衛生間)、臥室、衛生間
獨特二層帶車庫別墅

編號: DC0198
結構形式: 框架結構
開間: 16米 進深: 12米
占地面積: 156.5平方米
建筑面積: 239.4平方米
主體造價: 25-30萬
首層戶型:

圖紙預覽:

一 層:客廳、2臥室、廚房、餐廳、衛生間、車庫
二 層:2臥室、衛生間
二層帶車庫農村自建別墅

編號: DC0192
結構形式: 框架結構
開間: 16.94米 進深: 12.04米
占地面積: 168.28平方米
建筑面積: 331.33平方米
主體造價: 30-36萬
首層戶型:

圖紙預覽:

一 層:門廳、客廳、2臥室、廚房、餐廳、衛生間、車庫
二 層:起居室、臥室(附書房,衣帽間,衛生間,露臺)、臥室、衛生間、陽臺、露臺
農村建房,絕大多數人一輩子就建這么一次,外觀、布局都要是自己喜歡的才能對得起自己這些年來辛辛苦苦掙的錢。今天這10款進深12米的別墅是新設計的,尺寸適中,布局適用,外觀也很大氣,完全符合農村建房要求。
.jpg)
本文由別墅圖紙超市編輯發布,如需了解更多,可登錄網站主頁http://m.wxtmjd.cn/,或者撥打我們的免費電話400-8080-889在線咨詢。
>>>>推薦閱讀:6款占地不足100平的二層農村別墅設計圖,小宅基地的看過來
>>>>推薦閱讀:精選8款造價25萬左右農村自建別墅,花最少的錢建最好的房子!
>>>>推薦閱讀:20套精美絕倫的中式農村別墅,要建就建棟這樣有特色的好房子!











