小地基如何建大氣別墅?農村建二層別墅必備這8款圖紙!
現在農村建房,大多注重的是居住的舒適性,尤其是老人,住的舒適方便比什么都重要,對于家庭人口不是很多的家庭,建個小二層也是挺不錯的,既顯得溫馨又方便日常衛生的打掃。而且現在農村建房已經告別過去只注重布局,不注重外觀的時代。現在的農村,日子可謂越來越紅火,房子不僅要住的舒適,而且外形還得美觀時尚,建在村子里才有面子!今天給大家分享的這8套農村二層自建別墅,堪稱農村自建房典范,看完讓你徹底愛上農村!
二層簡歐小別墅設計


編號: DC0253
結構形式: 磚混結構
開間: 13.6米 進深: 12.3米
占地面積: 133.83平方米
建筑面積: 262.12平方米
主體造價: 24-30萬
首層戶型:

圖紙預覽:

一 層:堂屋、客廳(附走廊)、2臥室、廚房、餐廳、衛生間
二 層:客廳、2臥室(附陽臺)、3臥室、衛生間
二層帶閣樓自建別墅


編號: DC0263
結構形式: 磚混結構
開間: 15.5米 進深: 12.5米
占地面積: 164.59平方米
建筑面積: 446.56平方米
主體造價: 30-36萬
首層戶型:

圖紙預覽:

一 層:客廳、2臥室、廚房、餐廳、儲藏室、衛生間
二 層:客廳、臥室(附書房,陽臺)、臥室、衛生間、露臺、休閑露臺
閣 樓:儲藏間
新農村二層帶陽臺小別墅

編號: DC0269
結構形式: 磚混結構
開間: 12.9米 進深: 12米
占地面積: 141.12平方米
建筑面積: 277.93平方米
主體造價: 20-25萬
首層戶型:

圖紙預覽:

一 層:客廳、2臥室、廚房、餐廳、衛生間
二 層:客廳、臥室(附陽臺)、臥室(附書房,衣帽間)、2臥室、衛生間
農村二層帶車庫自建房

編號: DC0275
結構形式: 磚混結構
開間: 13.8米 進深: 12米
占地面積: 121.09平方米
建筑面積: 261.01平方米
主體造價: 16-20萬
首層戶型:

圖紙預覽:

一 層:堂屋、臥室、廚房、餐廳、衛生間、車庫
二 層:客廳(附露臺)、休息區(附陽臺)、娛樂室、臥室(附衣帽間)、臥室、衛生間
新農村二層帶陽臺小別墅

編號: DC0242
結構形式: 磚混結構
開間: 11.1米 進深: 12米
占地面積: 123.05平方米
建筑面積: 246.1平方米
主體造價: 18-24萬
首層戶型:

圖紙預覽:

一 層:客廳、臥室、棋牌室(或臥室)、廚房、餐廳、雜物間、衛生間
二 層:小客廳、臥室(附衛生間)、2臥室、書房(或臥室)、衛生間、陽臺
新農村二層自建住宅


編號: DC0051
結構形式: 磚混結構
開間: 10米 進深: 10米
占地面積: 101.92平方米
建筑面積: 198.08平方米
主體造價: 15-20萬
首層戶型:

圖紙預覽:

一 層:客廳、臥室、廚房、餐廳、衛生間、車庫
二 層:客廳、臥室(附陽臺)、臥室(附衣帽間)、臥室、衛生間
二層自建別墅

編號: DC0060
結構形式: 磚混結構
開間: 11米 進深: 10.08米
占地面積: 90.2平方米
建筑面積: 196.92平方米
主體造價: 18-22萬
首層戶型:

圖紙預覽:

一 層:客廳、臥室、廚房、餐廳、衛生間
二 層:客廳(附陽臺)、活動廳、3臥室、衛生間
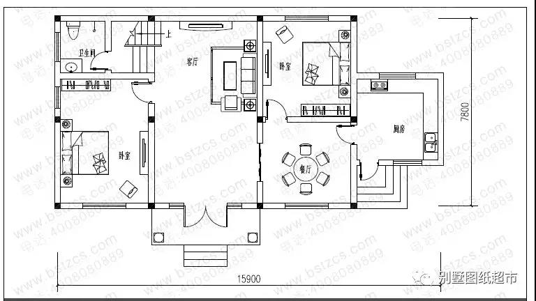
二層農村自建房屋設計


編號: DC0136
結構形式: 磚混結構
開間: 15.9米 進深: 7.8米
占地面積: 114.65平方米
建筑面積: 201.43平方米
主體造價: 16-20萬
首層戶型:

圖紙預覽:

一 層:客廳、2臥室、廚房、餐廳、衛生間
二 層:客廳、臥室(附書房,衛生間)、臥室、衛生間、露臺
.jpg)
本文由別墅圖紙超市編輯發布,如需了解更多,可登錄網站主頁http://m.wxtmjd.cn/,或者撥打我們的免費電話400-8080-889在線咨詢。
>>>>推薦閱讀:四川包工頭曬建房過程,包工包料36萬,二層框架結構!
>>>>推薦閱讀:二層帶雙露臺小別墅,造型超美,十里八鄉都夸贊!
>>>>推薦閱讀:斜頂改平頂,這款二層復式帶露臺別墅設計依然還是這么美











