占地面積小還帶內院的自建別墅,造價實惠,比住城里強百倍!
在農村建房的肯定都希望能有個院子,既能保護隱私,隔絕路上的灰塵噪音,可以在院子里養養花草,修身養性,想想都美好,可是很多農村朋友在家鄉批的地不大,也不知道怎么設計,下面這幾款農村別墅占地面積不大,還帶院子,來了解一下!
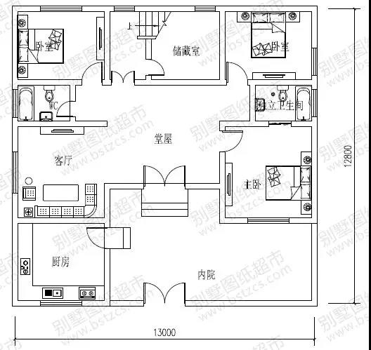
編號: DC0213
層數: 二層
結構形式: 磚混結構
主體造價: 18-22萬
開間: 13米
進深: 12.8米
占地面積: 172.65平方米
建筑面積: 250.95平方米



一 層: 內院、堂屋、客廳、臥室(附衛生間)、2臥室、廚房、儲藏室、衛生間
二 層: 客廳、主臥(附衛生間,露臺)、3臥室、衛生間
入戶即是內院,廚房和生活區分開,有效的隔絕了油煙,這樣的布局很適合北方朋友建。堂屋也是一個很重要的功能布局,此套自建房造價在20萬上下,性價比也比較高。


編號: DC0155
層數: 二層
結構形式: 磚混結構
主體造價: 18-22萬
開間: 13.14米
進深: 12.24米
占地面積: 134.73平方米
建筑面積: 276.34平方米



一 層: 客廳、臥室(附衛生間)、臥室、棋牌室、廚房、餐廳、衛生間
二 層: 起居室(附露臺)、臥室(附衛生間)、臥室(附書房)、臥室、衛生間
外觀造型帶簡單的中式風,低調中帶有古典的韻味,雖然不是很豪華的別墅,但是此款別墅絕對很值得考慮,簡潔古典的外觀造型,超高的性價比,并且帶露臺和院子,真的很受歡迎了!


編號: DC0053
層數: 二層
結構形式: 磚混結構
主體造價: 18-24萬
開間: 11.6米
進深: 13.5米
占地面積: 119.14平方米
建筑面積: 215.74平方米



一 層: 客廳、2臥室、廚房、餐廳、農具房、衛生間、庭院
二 層: 起居室(附陽臺)、2臥室、衛生間、露臺
三 層: 露臺
本戶型采用前主后副方式,以一個小院子把生活和起居分開(前有客廳、臥室;后有餐廳、廚房、農具間),平面功能分區明確,布局緊湊,平屋頂設計方便晾曬,采光通風良好,平頂造型簡潔,美觀大方,磚混結構,投資較少,適合普通家庭建造。


編號: DC0162
層數: 三層
結構形式: 磚混結構
主體造價: 20-24萬
開間: 9米
進深: 15米
占地面積: 135平方米
建筑面積: 300平方米



一 層: 院子、麻將室、堂屋、客廳、廚房兼餐廳、衛生間、車庫
二 層: 臥室(附書房,露臺)、臥室(附陽臺)、3臥室、衛生間
三 層: 臥室、桌球室、衛生間、露臺
一款平頂和坡頂相結合、并且帶院子的房子。休閑的麻將室設置在外面,可以邀請鄰居好友來,又很好的隔絕了主人家的隱私,又方便清掃。帶堂屋的設計也是這款房子很受歡迎的原因之一了!


編號: DC0241
層數: 三層
結構形式: 磚混結構
主體造價: 18-24萬
開間: 15.24米
進深: 9.72米
占地面積: 105.98平方米
建筑面積: 209.36平方米



一 層: 堂屋、2臥室、廚房、餐廳、衛生間
二 層: 客廳(附陽臺)、臥室(附陽臺)、臥室、衛生間、屋頂曬臺
三 層: 屋頂曬臺
這是一款頗具中式特色的簡約小別墅,戶型布局周正又很符合大多數人的生活習慣,廚房餐廳設置在一側,遠離了油煙,樓梯單獨隔開來,隱私性很好!



.jpg)
本文由別墅圖紙超市編輯發布,如需了解更多,可登錄網站主頁http://m.wxtmjd.cn/,或者撥打我們的免費電話400-8080-889在線咨詢。
>>>>推薦閱讀:6款最火農村小別墅,原來他們都有這個特點(內含彩色平面圖)
>>>>推薦閱讀:7款開間12米的二層農村自建房,看了都為它的實用性點贊!
>>>>推薦閱讀:30余款最新設計:造型大方又體面,都是適合老百姓建的好房子!











