三層框架結構農村別墅建房案例實拍,好不好你說了算!
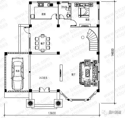
這款三層框架結構農村別墅設計圖紙,開間進深分別是13.6米和14.6米;占地面積156.09平方米、建筑面積393.15平方米;一樓客廳采用中空設計,讓中空的客廳提升了整個房子的高度感,這樣的設計讓空間大了很多。二樓3個臥室里面有2個帶有書房和陽臺,這種超大空間設計,簡直不要太棒!另外三樓還有活動廳等,休閑娛樂都方便。今天小編還特意把它的建房案例實拍整理了出來,實拍的房子在外觀上做了些顏色的調整,這款圖紙到底好不好由你說了算!
編號: DC0226
層數: 三層
結構形式: 框架結構
主體造價: 36-42萬
開間: 13.6米
進深: 14.6米
占地面積: 156.09平方米
建筑面積: 393.15平方米


一 層:入口玄關、客廳(中空)、臥室、廚房、餐廳、衛生間、車庫
二 層:主臥(附書房,衛生間,陽臺)、臥室(附書房,陽臺)、臥室、衛生間
三 層:活動廳(附露臺)、主臥(附衛生間,2露臺)、臥室(附書房,陽臺)、臥室、衛生間
圖紙預覽:


建房實拍案例

.jpg)
本文由別墅圖紙超市編輯發布,如需了解更多,可登錄網站主頁http://m.wxtmjd.cn/,或者撥打我們的免費電話400-8080-889在線咨詢。
>>>>推薦閱讀:農村三層磚混結構別墅,造型大方深受歡迎!
>>>>推薦閱讀:新中式帶堂屋三層農村別墅,好看實用,返鄉建房非它莫屬!
>>>>推薦閱讀:別不信,30萬就能在農村建個三層的簡歐別墅,造型布局沒得挑!











