經濟型二層帶車庫農村別墅建房過程,布局合理易建造!
現在城市快節奏的生活,讓人更加渴望回到淳樸、自然的農村,故鄉的藍天、青山、黃土都是在城市生活的農村人最懷念的。以前農村發展慢,為了生計不得不背井離鄉去城市奮斗,現在隨著國家對農村的重視和新農村的建設,也越來越多的人愿意回到農村建個小別墅。今天和小編一起來看看這款實用又經濟的農村別墅的建造吧,雖然只有兩層,但是布局合理。希望符合你對農村別墅的建造需求。
.jpg)
先來看看建成后的外觀,房子為兩層的小別墅,藍色的瓦+紅色的外墻磚,整體看起來簡單、大方。左邊帶一個車庫,在農村,建個房子,然后配上一個車庫,生活方便又安逸。



看完房子的建成外觀后,再來看看整體房子的布局:

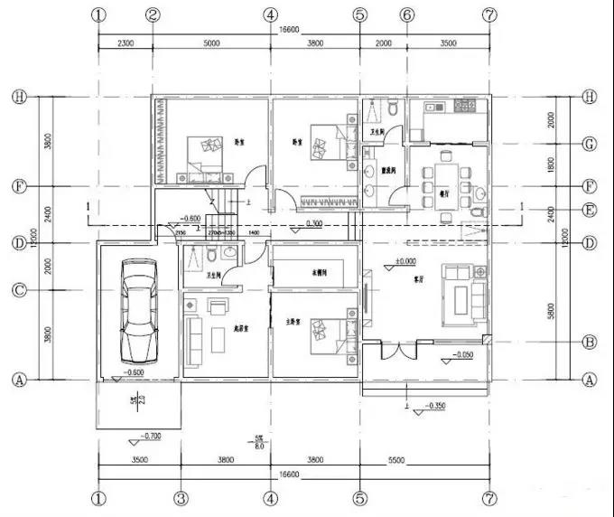
▲一層布局

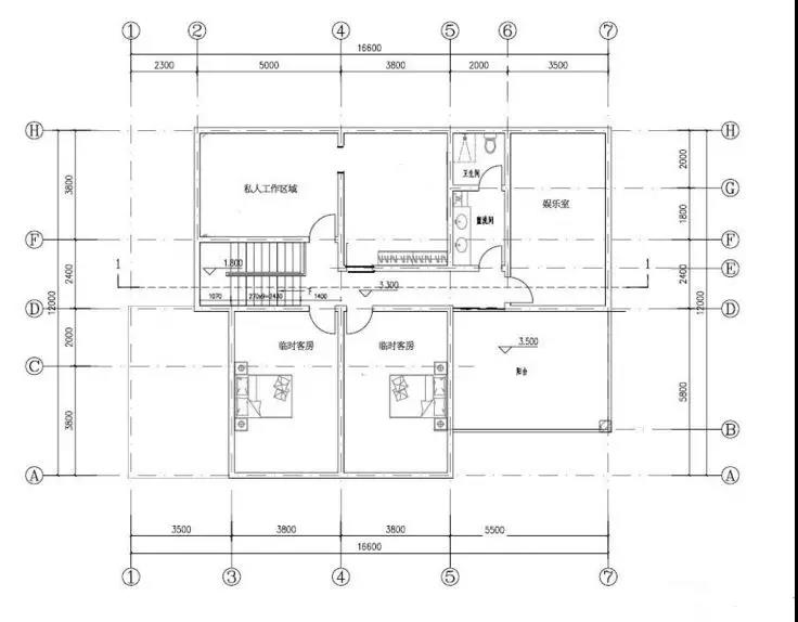
▲二層布局

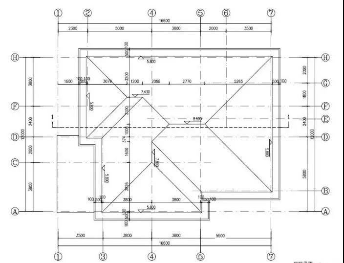
▲屋頂平面
來看看整個房子的建造過程:



▲打地基



▲主體建成


▲貼外墻磚


▲建成效果
在城里買房,隨隨便便都要上百萬,咱們農村人,省吃儉用一輩子也不一定攢的了這么多錢,所以還是回老家蓋棟房子實在。住著舒服也自在!
.jpg)
本文由別墅圖紙超市編輯發布,如需了解更多,可登錄網站主頁http://m.wxtmjd.cn/,或者撥打我們的免費電話400-8080-889在線咨詢。
>>>>推薦閱讀:【分享】網友28萬建一層農村別墅,帶架空層,人人看了都說值!
>>>>推薦閱讀:【案例】上市老總花70萬回村建起農村別墅,種花養魚愜意生活!
>>>>推薦閱讀:【干貨】農村磚混結構別墅建造時,主體施工最容易犯的3大錯誤!











