5款經典案例,第1套100%還原效果圖,第3套造價才25萬!
想回鄉建房的朋友,看到很多很漂亮的別墅效果圖,想建又不敢建,既擔心施工隊建不出這個效果,又覺得如果找個普普通通的造型來建,心里又不甘心。今天小編帶來5套農村小別墅效果圖和實拍圖的對比給大家參考,再也不怕找不到好戶型自建房了!
編號: DC0179
層數: 三層
結構形式: 框架結構
主體造價: 36-42萬
開間: 14.34米
進深: 14.045米
占地面積: 154.33平方米
建筑面積: 332.28平方米


一 層: 客廳(中空)、臥室(附衛生間)、臥室、棋牌室、廚房、餐廳、衛生間
二 層: 起居室、臥室(附衣帽間,衛生間)、2臥室、衛生間
三 層: 家庭影院(附露臺)、臥室、洗衣房、露臺
實拍案例

此款案例實拍圖和效果圖一模一樣,高度還原,磚紅色和淺黃色的外墻搭配,亮麗又鮮艷,房子更顯明麗、雅致。別致的外觀造型,寬闊的窗戶設計,房子室內采光充足。白色的羅馬柱和窗套將房子的線條裝飾的十分鮮明。
編號: DC0002
層數: 二層
結構形式: 磚混結構
主體造價: 24-28萬
開間: 14.34米
進深: 11.34米
占地面積: 157.59平方米
建筑面積: 290.71平方米


一 層: 門廳、客廳、2臥室、廚房、餐廳、衛生間、車庫
二 層: 主臥室(附衛生間,陽臺)、臥室(附陽臺)、臥室(附書房)、臥室、棋牌室、衛生間
實拍案例

外墻采用裸色的涂料,既不浮夸又顯時尚,低調的配色典雅精致,藍色的屋頂給房子填上了一抹亮色,很好的點綴了整套房子。
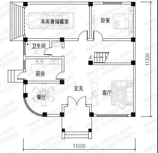
編號: DC0067
層數: 三層
結構形式: 框架結構
主體造價: 25-32萬
開間: 11米
進深: 11.3米
占地面積: 120.85平方米
建筑面積: 307.63平方米


一 層: 客廳、臥室、廚房、餐廳、衛生間、車庫或儲藏室
二 層: 客廳、臥室(附衛生間)、2臥室、書房(附陽臺)、衛生間、陽臺
三 層: 2臥室(附衛生間)、露臺
實拍案例

說出來可能不信,此套別墅主體造價才花了25萬。整套房子精致又浪漫,一層墻體裝飾富有特色,黑色的窗戶和白色的窗套相互映襯,房子的二三層的護欄采用的純黑色。房子的每一部分各有特色,但整體又特別和諧!
編號: DC0221
層數: 三層
結構形式: 磚混結構
主體造價: 22-28萬
開間: 9.96米
進深: 12.96米
占地面積: 111.68平方米
建筑面積: 305.6平方米


一 層: 客廳、2臥室、廚房、餐廳、衛生間
二 層: 客廳、3臥室、書房、衛生間、陽臺
三 層: 3臥室、書房、衛生間、露臺
實拍案例

這款外觀非常漂亮,主體外觀完美的復制除了效果圖的樣子,十分的美觀大氣,建在農村賞心悅目。
編號: DC0305
層數: 三層
結構形式: 框架結構
主體造價: 45-50萬
開間: 10.946米
進深: 15.9米
占地面積: 155.35平方米
建筑面積: 480.95平方米


一 層: 門廳、客廳(中空)、臥室(附衛生間)、臥室、棋牌室、廚房、餐廳、衛生間
二 層: 主臥(附書房,衣帽間,衛生間,2陽臺,露臺)、2臥室、儲存間、衛生間
三 層: 健身房(附露臺)、臥室(附衛生間,露臺)、2臥室、書房、衛生間、露臺、涼亭
實拍案例


八角亭是整套房子的特色和亮點,將房子歐式感完美的凸顯。藍色的玻璃更貼近大自然的色彩,素色的墻面與它相結合那堪稱是絕配,整套房子造型時尚,建在農村堪稱經典。
.jpg)
本文由別墅圖紙超市編輯發布,如需了解更多,可登錄網站主頁http://m.wxtmjd.cn/,或者撥打我們的免費電話400-8080-889在線咨詢。
>>>>推薦閱讀:【案例】4套外觀精致布局妙的別墅,農村建房這樣建才實在!
>>>>推薦閱讀:網友回鄉32萬建好農村三層別墅,有房有田的生活不要太羨慕!
>>>>推薦閱讀:12款占地不足百平農村別墅,有二層的,有三層的,經濟又實用!











