6套實用的別墅戶型一定要看,第4套含9個臥室,好圖紙建好房!
現在房子應該是每個家庭都關心的話題,無論是在城市買房還是在農村建房都是家庭的大事,而隨著城市房價的飛漲,回農村建房的人越來越多,農村自建房也走進了千家萬戶。什么樣的房子才是受大眾喜愛的呢,無外乎,戶型布局設計合理、外觀設計時尚、實用造價又不高的房子。那么這幾款小別墅一定要看看!
編號: DC0085
層數: 二層
結構形式: 磚混結構
主體造價: 22-26萬
開間: 10.8米
進深: 10.7米
占地面積: 116.4平方米
建筑面積: 273.78平方米
一 層: 客廳(中空)、臥室(附衛生間)、娛樂間、廚房、餐廳、衛生間
二 層: 起居室(附陽臺)、臥室(附衛生間)、3臥室、衛生間
編號: DC0313
層數: 二層
結構形式: 磚混結構
主體造價: 25-28萬
開間: 13.2米
進深: 10.2米
占地面積: 131.74平方米
建筑面積: 302.72平方米
一 層: 客廳、臥室(附衛生間)、臥室、廚房、餐廳、衛生間
二 層: 起居室、臥室(附書房,衛生間)、2臥室、衛生間、露臺
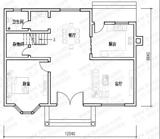
編號: DC0239
層數: 二層
結構形式: 磚混結構
主體造價: 18-24萬
開間: 12.04米
進深: 8.84米
占地面積: 103.4平方米
建筑面積: 206.79平方米

一 層: 客廳、臥室、廚房、餐廳、雜物間、衛生間
二 層: 休息廳、小客廳(附陽臺)、臥室(附陽臺)、2臥室、衛生間
編號: DC0363
層數: 三層
結構形式: 磚混結構
主體造價: 30-35萬
開間: 12.3米
進深: 12.9米
占地面積: 164.28平方米
建筑面積: 468.69平方米
一 層: 門廳、客廳、臥室(附衛生間)、臥室、活動室、廚房、餐廳、衛生間
二 層: 起居室、臥室(附書房,衣帽間,衛生間,露臺)、臥室(附衣帽間,陽臺)、臥室(附陽臺)、臥室、衛生間
三 層: 健身廳、臥室(附陽臺)、2臥室、衛生間、陽臺、露臺
編號: DC0380
層數: 三層
結構形式: 框架結構
主體造價: 40-50萬
開間: 12.2米
進深: 12.8米
占地面積: 150.95平方米
建筑面積: 372.17平方米
一 層: 堂屋、客廳(中空)、臥室(附衛生間)、臥室(附衣帽間)、廚房、餐廳、衛生間
二 層: 起居廳(附陽臺)、臥室(附衣帽間,衛生間)、臥室、衛生間、露臺
三 層: 起居廳、臥室(附露臺)、臥室、衛生間、露臺
編號: DC0343
層數: 三層
結構形式: 框架結構
主體造價: 40-45萬
開間: 12米
進深: 14.1米
占地面積: 146.27平方米
建筑面積: 444.19平方米
一 層: 客廳、臥室、廚房、餐廳、衛生間
二 層: 客廳(附陽臺)、活動廳、3臥室、衛生間
.jpg)
本文由別墅圖紙超市編輯發布,如需了解更多,可登錄網站主頁http://m.wxtmjd.cn/,或者撥打我們的免費電話400-8080-889在線咨詢。
>>>>推薦閱讀:15套三層復式別墅,4套帶旋轉樓梯,6套造價30萬左右!
>>>>推薦閱讀:8款漂亮實用三層別墅,大氣亮眼不懼任何別墅對比,農村人最愛!
>>>>推薦閱讀:8款二層帶庭院農村別墅,有院子車庫大露臺才是完美愜意人生!











