面寬12米農村建房,13款經典實用戶型,辛苦打拼要建好房子!
面寬12米的農村別墅戶型很多,也都很受歡迎,要說最受歡迎,還要數這13款,特意挑選出來給大家欣賞。房子是建給別人看的,自己住的,所以不僅要有一個出色的外觀,還有有個合理而又生活方便的室內布局。百年基業要建好,建的好了一輩子一棟就足夠。
三層歐式小別墅設計

建成實拍

編號: DC0276
結構形式: 框架結構
開間: 12米 進深: 9.3米
占地面積: 97.58平方米
建筑面積: 275.41平方米
主體造價: 25-30萬
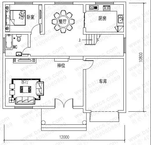
首層戶型:

一 層:堂屋、客廳、臥室、廚房、餐廳、儲藏室、衛生間
二 層:起居室、娛樂室、臥室(附陽臺)、臥室、衛生間、露臺
三 層:3臥室、衛生間、露臺
農村二層自建房設計


編號: DC0239
結構形式: 磚混結構
開間: 12.04米 進深: 8.84米
占地面積: 103.4平方米
建筑面積: 206.79平方米
主體造價: 18-24萬
首層戶型:

一 層:客廳、臥室、廚房、餐廳、雜物間、衛生間
二 層:休息廳、小客廳(附陽臺)、臥室(附陽臺)、2臥室、衛生間
農村二層小別墅

編號: DC0355
結構形式: 磚混結構
開間: 12米 進深: 11.6米
占地面積: 135.56平方米
建筑面積: 300.98平方米
主體造價: 25-30萬


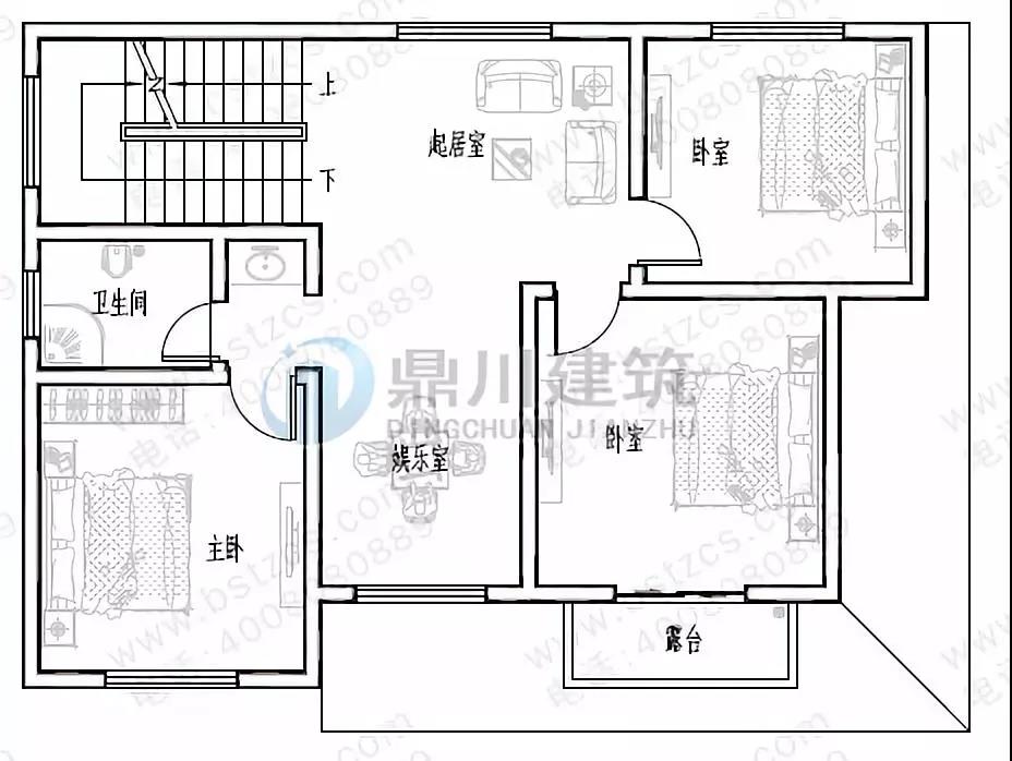
一 層:門廳、客廳、臥室(附衛生間)、廚房、餐廳、衛生間
二 層:起居室、棋牌室(附露臺)、臥室(附衛生間,陽臺)、臥室(附陽臺)、臥室、衛生間
大氣三層中式風格別墅

編號: DC0367
結構形式: 磚混結構
開間: 12米 進深: 13.92米
占地面積: 160.85平方米
建筑面積: 467.26平方米
主體造價: 40-45萬
首層戶型:

二層戶型:

三層戶型:

一 層:門廳、客廳、臥室(附衛生間)、臥室、廚房、餐廳、衛生間
二 層:起居室、娛樂室(附陽臺)、臥室(附衛生間)、3臥室、衛生間
三 層:起居室、臥室、書房、陽光房、健身房(附露臺)、衛生間、雜物間、露臺
歐式三層旋轉樓梯別墅

編號: DC0380
結構形式: 框架結構
開間: 12.2米 進深: 12.8米
占地面積: 150.95平方米
建筑面積: 364.41平方米
主體造價: 40-50萬



一 層:堂屋、客廳(中空)、臥室(附衛生間)、臥室(附衣帽間)、廚房、餐廳、衛生間
二 層:起居廳(附陽臺)、臥室(附衣帽間,衛生間)、臥室、衛生間、露臺
三 層:起居廳、臥室(附露臺)、臥室、衛生間、露臺
簡單實用的二層小別墅

編號: DC0282
結構形式: 磚混結構
開間: 12米 進深: 8米
占地面積: 100.86平方米
建筑面積: 227.77平方米
主體造價: 16-20萬
首層戶型:

一 層:堂屋、客廳、臥室、廚房、餐廳、衛生間
二 層:客廳(附陽臺)、臥室(附陽臺)、臥室、兒童房、書房、衛生間
新農村二層自建別墅

編號: DC0022
結構形式: 磚混結構
開間: 12米 進深: 10.8米
占地面積: 130.23平方米
建筑面積: 260.46平方米
主體造價: 19-24萬
首層戶型:

一 層:客廳、臥室、廚房、餐廳、衛生間、車庫
二 層:客廳(附陽臺)、主臥(附衛生間)、3臥室、棋牌室、衛生間
農村二層帶露臺經濟型小別墅

編號: DC0379
結構形式: 磚混結構
開間: 12米 進深: 9米
占地面積: 117.98平方米
建筑面積: 225.34平方米
主體造價: 18-26萬


一 層:堂屋、客廳、臥室、廚房、餐廳、衛生間
二 層:起居廳、臥室(附陽臺)、2臥室、衛生間、書房、露臺
農村三層復式樓別墅

編號: DC0343
結構形式: 框架結構
開間: 12米 進深: 14.1米
占地面積: 146.27平方米
建筑面積: 444.19平方米
主體造價: 40-45萬
首層戶型:

二層戶型:

三層戶型:

一 層:門廳、客廳(中空)、臥室(附衛生間)、臥室、廚房、餐廳、觀景平臺、衛生間
二 層:起居室、臥室(附衛生間)、臥室(附書房,陽臺)、臥室(附露臺)、衛生間
三 層:健身廳、臥室(附衛生間)、臥室(附書房,露臺)、臥室、衛生間、露臺
三層新農居自建別墅


編號: DC0013
結構形式: 磚混結構
開間: 12米 進深: 14.7米
占地面積: 134.97平方米
建筑面積: 449.28平方米
主體造價: 27-34萬
首層戶型:

一 層:大堂、客廳、臥室(附衛生間)、娛樂房、廚房、餐廳、衛生間;
二 層:起居室(附露臺)、臥室(附衛生間,露臺)、臥室(附露臺)、臥室、書房、衛生間
三 層:活動室(附露臺)、2臥室、書房、衛生間、陽臺
三層帶露臺小戶型別墅

編號: DC0365
結構形式: 磚混結構
開間: 12.3米 進深: 9米
占地面積: 115.87平方米
建筑面積: 300.19平方米
主體造價: 24-28萬
首層戶型:

二層戶型:

三層戶型:

一 層:走廊、門廳、客廳、臥室、廚房、餐廳、衛生間
二 層:起居室、娛樂室、臥室(附露臺)、2臥室、衛生間
三 層:健身房、臥室、衛生間、露臺
農村二層帶露臺小別墅

編號: DC0349
結構形式: 磚混結構
開間: 12.3米 進深: 11.4米
占地面積: 136.61平方米
建筑面積: 324.52平方米
主體造價: 25-30萬
首層戶型:

二層戶型:

一 層:客廳、臥室(附衛生間)、廚房、餐廳、衛生間
二 層:起居室、臥室(附衛生間,露臺)、3臥室、衛生間
二層帶露臺農村別墅

編號: DC0287
結構形式: 框架結構
開間: 12.3米 進深: 11.1米
占地面積: 130平方米
建筑面積: 295.19平方米
主體造價: 25-30萬
首層戶型:

一 層:走廊、堂屋、客廳、2臥室、廚房、餐廳、衛生間、儲藏室
二 層:客廳(附露臺)、臥室(附書房,露臺)、臥室(附露臺)、臥室、衛生間
建房子從外觀到布局,有人喜歡將房子建的氣派,有人偏愛簡單的戶型;有人喜歡在宅基地上單獨建一個小廚房,有人覺得建在一棟房子里面才更溫暖;不管怎么說,我只想給你推薦這13款別墅戶型,面寬均12米的農村別墅。
.jpg)
本文由別墅圖紙超市編輯發布,如需了解更多,可登錄網站主頁http://m.wxtmjd.cn/,或者撥打我們的免費電話400-8080-889在線咨詢。
>>>>推薦閱讀:30余款最新設計:造型大方又體面,都是適合老百姓建的好房子!
>>>>推薦閱讀:精選8款造價25萬左右農村自建別墅,花最少的錢建最好的房子!
>>>>推薦閱讀:10款簡潔大方經濟型三層自建別墅,第1款造價20萬,第6款最漂亮!











