這才叫享福!網友分享兄弟姐妹眾力給老母親農村自建房過程!
中國人都信奉養兒防老,兒孫多福氣多,事實上可能并不完全正確,但是確實也有很多父母在享受著兒孫繞膝、幾代和諧相處的幸福生活。今天來做建房分享的這位房主,他們兄弟姐妹4個的行為,就可以說給了老母親很好的一份安慰和幸福!一起來看房主的自述:
農村老家的房子快要倒塌了,有兩間房的瓦屋面已經掉到了地塌掉了上,慘不忍睹。農村老房子的產權是我媽媽的,我們兄弟姐妹4個的戶口都不在這個村了,但目前媽媽與我住在城里,為了保留這塊宅基地,也為了老媽有套房子安度晚年,我們4兄弟姐妹決定一人出4萬共16萬,在原地基上重新建一層半的紅磚墻瓦屋面的自建房。
.jpg)
母親現在和我住在一起,兄弟姐妹給了錢,剩下的事情我負責完成,為了給母親一個舒適的居住環境,我在上網查找了很多資料,發現了一張比較適合的效果圖
.jpg)
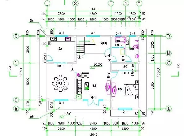
設計前前后后花了我一年多的時間,先是在網絡上找圖,又自己請正規設計院的人根據我的需求給我繪的圖,該方案為兩層框架結構,樓板采用現澆,屋頂采用坡屋面。第一層126平米,第二層61.6平米
.jpg)
圈梁上面鋪了一層塑料薄膜,是一個簡易的防潮層,整個基礎室內填平后,再鋪滿
.jpg)
朋友納悶說:地梁上面鋪薄膜,雖然可以起防潮作用,但是墻體和地梁就分離了啊,怎么保證強度呢?
.jpg)
地梁只受到上面紅磚的重力作用,不承受水平方向的剪切力,如果側面受力就叫框架結構了,不知我的理解對不對啊?
.jpg)
樓梯與衛生間是共用一個空間
.jpg)
地基座東朝西,東面有一排長長的小山,本村人口基本上都沿這一排小山而居,所以房屋正當西曬,改不了,其實在北半球的人都想有坐北朝南,南北通透的房子,但現實情況往往達不到。近處西邊是一個斜坡,斜坡下面有一條鄉村水泥公路,斜坡上面是我家的前坪,進屋道路兼鄰居家的道路,馬上也要修成水泥路了。總的來說,雖然門前沒有大的水路,從風水上來說,還是不錯的格局
.jpg)
一般只有我媽一個人住,逢年過節全家人會從城里趕到老家住上一兩天,所以初步計劃建成兩間臥室一廚一衛一個大客廳的形式,面積在130平米左右,一層樓,第二層初定2米高,再蓋上瓦
.jpg)
第二層定2米是因為畢竟在農村2間臥房遠遠不夠,又沒有雜屋間,雖然沒有農具了,但放點別的東西還是有點擁擠,所以在二樓有2米的空間,放雜物,春秋冬季臨時住人也沒有什么問題
.jpg)
第一層130平,第二層61平,包括拆除舊房,一層蓋空心板,共花去15萬左右,人工費3萬元左右,主要就是材料占大頭了,房屋的梁全部是120的木材,63根,加上椽條、方條花費約2萬元,琉璃瓦6000元,最后一個大的花費就是門窗了,一共有6窗,7門,已經預訂了,大約需要3萬,主要是不銹鋼大門,一般造價在5000元左右,所以,在農村建個一層樓加上蓋瓦的房子,不含內外裝修,總費用在15萬元左右。
.jpg)
本文由別墅圖紙超市編輯發布,如需了解更多,可登錄網站主頁http://m.wxtmjd.cn/,或者撥打我們的免費電話400-8080-889在線咨詢。
>>>>推薦閱讀:復式三層帶車庫簡歐小別墅建造實拍,這么火是有原因的!
>>>>推薦閱讀:造價18萬二層帶陽臺小別墅,磚混結構,占地不到100平!
>>>>推薦閱讀:回村建這樣一套復式三層帶車庫別墅,舒服的你都不舍離家!











