農村建房首選這10套小別墅,第1、2套戶型最顯大氣!
在別墅的設計與造型中,要論大氣,復式的設計毫無疑問是最佳的,因為客廳樓上與樓下架空相通,除了增加空間的寬闊感,還能增加室采光和通風。再加上時尚大方的旋轉樓梯,整棟房子不管從外觀還是室內空間來看,氣場都會提升不少。今天小編就分享幾款三層小別墅,復式客廳+旋轉樓梯,農村建體面豪華!
編號: DC0380
層數: 三層
結構形式: 框架結構
主體造價: 40-50萬
開間: 12.2米
進深: 12.8米
占地面積: 150.95平方米
建筑面積: 364.41平方米

室內布局



一 層: 堂屋、客廳(中空)、臥室(附衛生間)、臥室(附衣帽間)、廚房、餐廳、衛生間
二 層: 起居廳(附陽臺)、臥室(附衣帽間,衛生間)、臥室、衛生間、露臺
三 層: 起居廳、臥室(附露臺)、臥室、衛生間、露臺
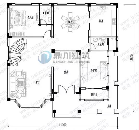
編號: DC0353
層數: 三層
結構形式: 框架結構
主體造價: 40-45萬
開間: 14米
進深: 13.8米
占地面積: 196.66平方米
建筑面積: 434.81平方米

室內布局



一 層: 走廊、堂屋、客廳(中空)、會客室(附內陽臺)、臥室(附衛生間)、廚房、餐廳、衛生間
二 層: 小客廳(附陽臺)、臥室(附衛生間,露臺)、臥室(附書房)、臥室、衛生間
三 層: 活動室、臥室(附衛生間)、臥室(附書房)、衛生間、陽臺、露臺
編號: DC0338
層數: 三層
結構形式: 磚混結構
主體造價: 38-42萬
開間: 12.9米
進深: 12米
占地面積: 160.83平方米
建筑面積: 477.39平方米

室內布局



一 層: 門廳、客廳(中空)、臥室(附衛生間)、臥室、棋牌室、廚房、餐廳、衛生間
二 層: 主臥(附書房,衣帽間,衛生間,陽臺,露臺)、臥室(附書房)、臥室、衛生間
三 層: 健身房(附儲藏間)、臥室(附露臺)、臥室(附書房)、臥室、衛生間、露臺
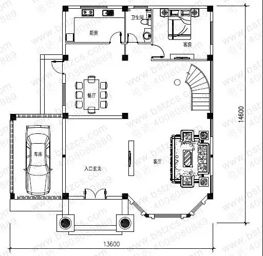
編號: DC0226
層數: 三層
結構形式: 框架結構
主體造價: 36-42萬
開間: 13.6米
進深: 14.6米
占地面積: 156.09平方米
建筑面積: 393.15平方米

室內布局

一 層: 入口玄關、客廳(中空)、臥室、廚房、餐廳、衛生間、車庫
二 層: 主臥(附書房,衛生間,陽臺)、臥室(附書房,陽臺)、臥室、衛生間
三 層: 活動廳(附露臺)、主臥(附衛生間,2露臺)、臥室(附書房,陽臺)、臥室、衛 生間
編號: DC0217
層數: 三層
結構形式: 框架結構
主體造價: 35-40萬
開間: 11.94米
進深: 13.64米
占地面積: 150.77平方米
建筑面積: 398.05平方米

室內布局

一 層: 客廳、休閑廳(中空)、臥室、廚房、餐廳、儲藏室、衛生間
二 層: 主臥(附衣帽間,衛生間)、2臥室、衛生間
三 層: 活動室、2臥室、書房、衛生間、露臺
編號: DC0216
層數: 三層
結構形式: 框架結構
主體造價: 35-40萬
開間: 12.9米
進深: 9.8米
占地面積: 124.19平方米
建筑面積: 337.42平方米

室內布局

一 層: 門廳、客廳(中空)、2臥室、廚房、餐廳、衛生間
二 層: 起居室、2臥室、棋牌室、衛生間
三 層: 主臥(附書房,衣帽間,衛生間,陽臺)、臥室、洗衣房、衛生間、露臺
編號: DC0208
層數: 三層
結構形式: 框架結構
主體造價: 30-34萬
開間: 10.1米
進深: 14.6米
占地面積: 136平方米
建筑面積: 359平方米

室內布局

一 層: 入口玄關、客廳、餐廳、廚房、客房、衛生間
二 層: 臥室、臥室(附陽臺)、臥室(附書房,衛生間,陽臺)、衛生間
三 層: 活動廳(附露臺)、臥室、臥室(附露臺)、臥室(附書房,衛生間,陽臺)、衛生間
編號: DC0179
層數: 三層
結構形式: 框架結構
主體造價: 36-42萬
開間: 14.34米
進深: 14.045米
占地面積: 154.33平方米
建筑面積: 332.28平方米

室內布局

一 層: 客廳(中空)、臥室(附衛生間)、臥室、棋牌室、廚房、餐廳、衛生間
二 層: 起居室、臥室(附衣帽間,衛生間)、2臥室、衛生間
三 層: 家庭影院(附露臺)、臥室、洗衣房、露臺
編號: DC0001
層數: 三層
結構形式: 框架結構
主體造價: 34-40萬
開間: 13.3米
進深: 14.6米
占地面積: 147.7平方米
建筑面積: 366.4平方米

室內布局

一 層: 入口玄關、客廳、餐廳、廚房、客房、衛生間、車庫
二 層: 臥室、臥室(附陽臺)、臥室(附書房,衛生間,陽臺)、衛生間
三 層: 活動廳(附露臺)、臥室、臥室(附露臺)、臥室(附書房,衛生間,陽臺)、衛生間
編號: DC0318
層數: 三層
結構形式: 框架結構
主體造價: 45-50萬
開間: 16.2米
進深: 10.6米
占地面積: 165.79平方米
建筑面積: 412.61平方米

室內布局

一 層: 堂屋、客廳(中空)、臥室、廚房、餐廳、衛生間、儲藏室、車庫
二 層: 客廳、臥室(附露臺)、3臥室、衛生間
三 層: 客廳、2臥室、娛樂室、衛生間、露臺
.jpg)
本文由別墅圖紙超市編輯發布,如需了解更多,可登錄網站主頁http://m.wxtmjd.cn/,或者撥打我們的免費電話400-8080-889在線咨詢。
>>>>推薦閱讀:不做房奴!30款農村別墅建成實拍,城里人都羨慕,讓你倍有面兒!
>>>>推薦閱讀:精選20款2018最新案例,大方時尚適合農村,家家戶戶都能建!
>>>>推薦閱讀:28款高顏值農村別墅,氣派時尚,農村房子這樣建才對得起宅基地!











