造價22萬的9款鄉村別墅,每一棟都精心設計,經典別致!
今天給大家推薦這9款造價22萬的鄉村別墅,戶型造型別致,風格不同,滿足不同人群的需要,同時他們又非常有設計感,每一棟都是精心設計的藝術品,讓人為之動心。無論挑哪一棟蓋起來,都是村里最美的!
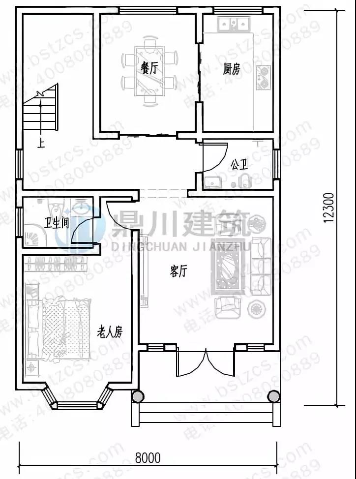
二層帶露臺小戶型別墅

編號: DC0366
開間: 8米 進深: 12.3米
占地面積: 100.91平方米
建筑面積: 211.08平方米
主體造價: 18-22萬
首層戶型:

二層戶型:

一 層:客廳、臥室(附衛生間)、廚房、餐廳、衛生間
二 層:客廳(附露臺)、臥室(附衛生間)、臥室、衛生間
二層農村自建房



編號: DC0115
結構形式: 磚混結構
開間: 15.84米 進深: 9.44米
占地面積: 134.8平方米
建筑面積: 225.6平方米
主體造價: 18-22萬
首層戶型:

一 層:客廳、臥室、活動房(或臥室)、廚房、餐廳、雜物間、衛生間
二 層:4臥室、衛生間、露臺
農村二層小戶型別墅

編號: DC0386
結構形式: 磚混結構
開間: 11米 進深: 10.4米
占地面積: 111.39平方米
建筑面積: 244.59平方米
主體造價: 22-30萬


一 層:門廳、客廳、2臥室、廚房、餐廳、儲藏間、衛生間
二 層:休息廳、書房(附陽臺)、4臥室、衛生間
實用經濟型一層小別墅

編號: DC0371
結構形式: 磚混結構
開間: 14米 進深: 11米
占地面積: 158.6平方米
建筑面積: 188.6平方米
主體造價: 18-22萬

一 層:門廳、客廳、臥室(附衛生間)、3臥室、廚房、餐廳、衛生間
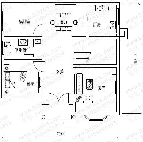
二層別墅全套施工圖

編號: DC0009
結構形式: 磚混結構
開間: 10.2米 進深: 9.7米
占地面積: 96.6平方米
建筑面積: 193.2平方米
主體造價: 18-22萬
首層戶型:

一 層:玄關、客廳、臥室、棋牌室、廚房、餐廳、衛生間
二 層:小客廳、臥室(附陽臺)、3臥室、衛生間
農村二層實用小別墅


編號: DC0376
結構形式: 磚混結構
開間: 10.2米 進深: 9.9米
占地面積: 107.01平方米
建筑面積: 244.83平方米
主體造價: 20-25萬


一 層:門廳、客廳、2臥室、廚房、餐廳、衛生間
二 層:起居室、臥室(附書房)、臥室(附露臺)、2臥室、衛生間
二層帶露臺經濟型小別墅

編號: DC0381
結構形式: 磚混結構
開間: 11.1米 進深: 10.9米
占地面積: 116.44平方米
建筑面積: 223.9平方米
主體造價: 18-26萬


一 層:門廳、客廳、2臥室、廚房、餐廳、儲藏間、衛生間
二 層:起居廳、臥室(附書房)、2臥室、衛生間、露臺
二層帶露臺小別墅

編號: DC0383
結構形式: 磚混結構
開間: 9米 進深: 9.9米
占地面積: 90平方米
建筑面積: 202.5平方米
主體造價: 18-25萬


一 層:客廳、臥室、廚房、餐廳、衛生間
二 層:起居廳、2臥室、書房、衛生間、露臺
二層鄉村別墅

編號: DC0012
結構形式: 磚混結構
開間: 12.6米 進深: 10.1米
占地面積: 111.35平方米
建筑面積: 253.1平方米
主體造價: 18-22萬
首層戶型:

一 層:堂屋、客廳、臥室、廚房、餐廳、衛生間
二 層:客廳(附陽臺)、棋牌室、臥室(附陽臺)、2臥室、衛生間
在外辛辛苦苦的工作好多年,為的是有一天,能夠賺了錢,回到屬于自己的小鄉村里,修建一棟實打實的好房子,跟自己的妻子兒女,過上幸福美滿的生活。所以選好戶型很重要!
.jpg)
本文由別墅圖紙超市編輯發布,如需了解更多,可登錄網站主頁http://m.wxtmjd.cn/,或者撥打我們的免費電話400-8080-889在線咨詢。
>>>>推薦閱讀:16款定制設計款農村別墅,花大價錢設計的圖紙到底值不值?
>>>>推薦閱讀:7款廚房帶后門的農村別墅,適合農村的生活習慣,值得收藏!
>>>>推薦閱讀:11.6×13.5米農村二層帶露臺別墅,農具房設計不要太實用!











