【建房實例】自建地中海風格別墅,超大花圃帶三露臺,38萬值不值?
隨著時代的發展和生活水平的提高,現在農村建房的生活品味都大大的提高了,村里的房子也不再是那種一棟棟的紅磚豆腐塊式的建筑風格,隨處可見各種歐式新中式的自建別墅,不管是哪個國家的建筑形式,或者是哪種別具一格的風格,只要外形夠漂亮,內部布局合理就好。
今天給大家分享一套在各種風格中脫穎而出地中海風格的別墅設計,超大花圃帶三個露臺,另加一個小地窖。
效果圖

編號: DC0287
層數: 二層
結構形式: 框架結構
主體造價: 25-30萬
開間: 12.3米 進深: 11.1米
占地面積: 130平方米
建筑面積: 295.19平方米
這是一款帶有濃郁地中海風格的別墅設計,不落俗套的設計令人第一眼就印象深刻。仿古文化石和淺色系外墻的搭配給房屋增加了幾分厚重感,首層的連廊、門樓、落地窗、二層的露臺都能感受到設計師對房屋設計的極致追求。
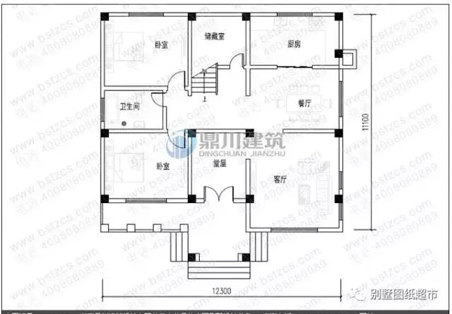
平面戶型:

一層設有走廊、堂屋、客廳、2臥室、廚房、餐廳、衛生間、儲藏室。空間合理安排,沒有絲毫浪費,在結構上十分工整,拋去繁瑣的裝飾,讓人覺得心曠神怡。
二層有客廳(附露臺)、臥室(附書房,露臺)、臥室(附露臺)、臥室、衛生間。臥室和客廳都帶有露臺,露臺的設計非常日常,空間也大,不管干什的都可以。而且在農村生活避免不了要曬農作物,剛好三個露臺也足夠了,平時不曬的時候,放張桌子,椅子或是一個秋千很舒適的就可以度過一個下午。
圖紙購買地址:http://m.wxtmjd.cn/goods-287.html
建房實例

▲部分地基圖

▲一層建好了

▲建好之后的毛胚主體

這時候外墻已經刷了一層了,從這個角度看過去,門前的院子還挺大的。

業主還圍了花圃,種了綠植。可以想象,等房子、院子都做好后,絕對很漂亮。

這是最后外墻基本做好之后的效果,看起來看很不錯吧。鼎川一直在用建房實例證明,每一款圖紙的建房實拍圖只會比效果圖更美!
建到這一步,業主總計花了38萬,他還自己加了一個小地窖,你覺得值不值?建的怎么樣?
.jpg)
本文由別墅圖紙超市編輯發布,如需了解更多,可登錄網站主頁http://m.wxtmjd.cn/,或者撥打我們的免費電話400-8080-889在線咨詢。
>>>>推薦閱讀:十套經典美觀農村別墅(效果圖+建房案例),良心推薦!
>>>>推薦閱讀:10款農村別墅施工案例,每一款都讓人驚艷
>>>>推薦閱讀:120平的三層農村別墅,蓋起了2款不一樣的小別墅,你更喜歡哪款











