這款農村自建房經濟實用又好看
農村的房子有沒有既經濟又時尚好看的呢?當然!在能建房的時候趕緊建房,在能建得起房的時候抓緊建房,一時的辛苦,受益一輩子。而且如今的物價水平逐年攀升,所以在農村自建房這種事情不能拖。依照如今農民的經濟水平來看,二三十萬還是可以拿出來的。下面就介紹一個二層的小別墅,主體造價20萬左右。適合農村一般家庭建,最主要經濟又好看!

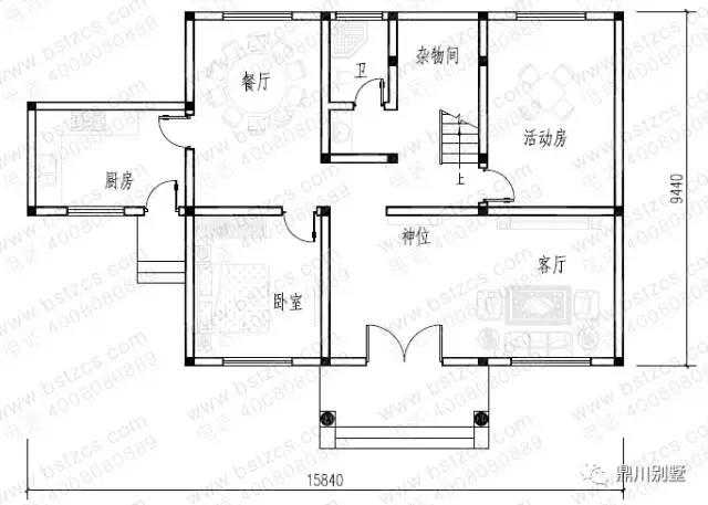
房屋信息
層數: 二層
結構形式: 磚混結構
主體造價: 18-22萬
開間: 15.84米
進深: 9.44米
占地面積: 134.8平方米
建筑面積: 225.6平方米

一 層:客廳、臥室、活動房(或臥室)、廚房、餐廳、雜物間、衛生間
二 層:4臥室、衛生間、露臺
建房案例



此款自建房在外型上就勝過很多農村的房子,房子外形和效果圖基本一致,很好的詮釋了什么叫做經濟實用的房子,大氣的門斗和羅馬柱將整個房子裝飾的很大方。橙色的山花艷麗而精致,很吸引眼球......
.jpg)
本文由別墅圖紙超市編輯發布,如需了解更多,可登錄網站主頁http://m.wxtmjd.cn/,或者撥打我們的免費電話400-8080-889在線咨詢。
>>>>推薦閱讀:農村自建房廚房這樣裝修,不但好用還好看!
>>>>推薦閱讀:農村自建房設計圖設計聯排型與方正型的優劣對比!
>>>>推薦閱讀:自建房的鋼筋別急著買,先看完這四個分辨鋼筋優劣的技巧吧











