不到30萬,新農村經典時尚三層別墅建起來
在中國大力發展新農村的政策鼓勵和支持下,我們的農村變化是日新月異,很多的鄉村都因各自的特點被評為了優秀鄉鎮,因此很多地區都在有了各自地區的新農村建房特點。那我們今天就來看一款造價不到30萬就能建起來的新農村經典時尚三層別墅設計效果圖及施工案例。這套新農村經典時尚三層別墅主體造價22-26萬,開間11.5米,進深10.5米,占地面積121.03平方米,建筑面積312.31平方米,圖紙編號:DC0028。

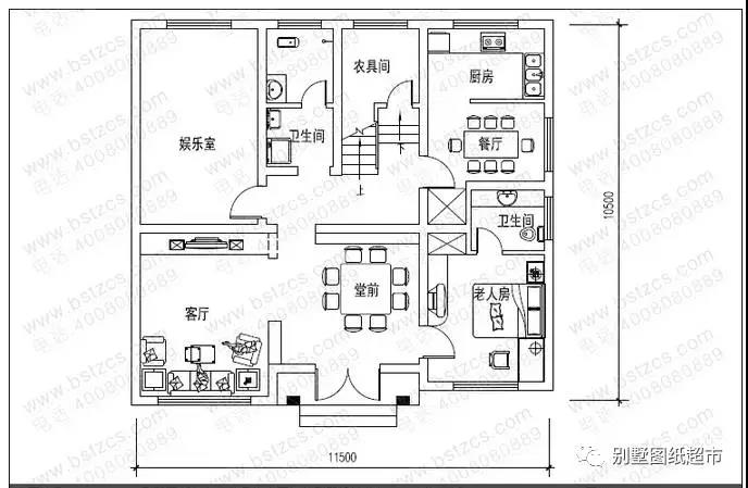
首層戶型:

一 層:堂屋、客廳、老人房(附衛生間)、娛樂室、廚房、餐廳、農具間、衛生間
二 層:客廳、2臥室(附陽臺)、2臥室、2衛生間
三 層:2臥室(附陽臺)、臥室、衛生間、露臺
鼎川建筑建成實拍


這套新農村經典時尚三層別墅施工案例,外墻材料采用的是文化石,因為文化石的外部裝飾風格更符合新農村的風格特點。這款別墅設計,二樓露臺是一大亮點,讓房子多了一個休閑納涼的好去處,同時也為整體的效果增添了一份美感。同時布局緊湊合理,有多個房間設計,是很多建房朋友的居家之選!
.jpg)
本文由別墅圖紙超市編輯發布,如需了解更多,可登錄網站主頁http://m.wxtmjd.cn/,或者撥打我們的免費電話400-8080-889在線咨詢。
>>>>推薦閱讀:城里百萬當房奴VS農村三十萬蓋別墅!你選哪個?
>>>>推薦閱讀:30萬農村自建三層帶車庫別墅,經濟實惠又實用
>>>>推薦閱讀:自建三層簡歐風格別墅,造價不過30萬卻能讓別墅經典又耐看











