7款雙拼三層自建別墅,農村兄弟建房首選!
農村自建房最重要的是要考慮自身的實際需求,才能建造出最適合自己的好房子。一般房子建個二三層就夠用了,現在的農村三層房屋設計也越來越普及了,各種風格的造型目不暇接,但也有例外,人丁興旺的家庭顯然就不適用了,如果家里宅基地又只有一塊的,兄弟兩個房子建一起就會顯得有點擁擠,所以有很多兄弟會選擇做雙拼,實用的同時也能彰顯出兄弟情義。今天就給大家分享7款雙拼三層自建別墅,霸氣高端上檔次,農村兄弟建房首選!
歐式三層雙拼別墅
此款三層雙拼別墅圖紙編號: DC0301,開間19米,進深11.1米,占地面積203.04平方米,建筑面積625.05平方米,主體造價在50萬以上。
.jpg)
首層戶型:
.jpg)
圖紙預覽:
.jpg)
一 層:客廳、臥室(附衛生間)、廚房、餐廳、儲藏室、衛生間
二 層:客廳、臥室(附衛生間,陽臺)、2臥室、衛生間
三 層:客廳、臥室、娛樂室、衛生間、露臺
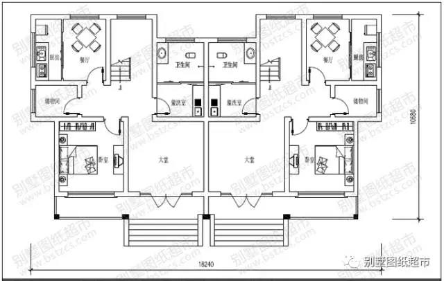
新農村三層雙拼別墅
此款新農村三層雙拼別墅圖紙編號: DC0183,開間18.24米,進深10.68米,占地面積220平方米,建筑面積508平方米,主體造價在32-38萬。
.jpg)
首層戶型:
.jpg)
圖紙預覽:
.jpg)
一 層:大堂、臥室、廚房、餐廳、儲物間、盥洗室、衛生間
二 層:客廳、臥室(附衛生間,陽臺)、臥室、盥洗室、衛生間
三 層:臥室、活動室、儲物室、盥洗室、衛生間、露臺
豪華三層復式雙拼別墅
此款三層雙拼別墅圖紙編號: DC0284,開間23.2米,進深12.1米,占地面積274.14平方米,建筑面積732.07平方米,主體造價在50萬以上。
.jpg)
首層戶型:
.jpg)
圖紙預覽:
.jpg)
一 層:客廳(中空)、老人房(附衛生間)、臥室、廚房、餐廳、衛生間
二 層:起居室、主臥(附衛生間,陽臺)、2臥室、書房、衛生間
三 層:健身房、主臥(附衛生間,陽臺)、臥室、衛生間、露臺
帶露臺三層雙拼別墅
此款帶露臺三層雙拼別墅圖紙編號: DC0201,開間16米,進深11米,占地面積165.95平方米,建筑面積460.7平方米,主體造價在36-42萬。
.jpg)
首層戶型:
.jpg)
圖紙預覽:
.jpg)
一 層:客廳、臥室、廚房、餐廳、衛生間
二 層:客廳(附陽臺)、2臥室、書房、衛生間
三 層:客廳、2臥室、衛生間、露臺
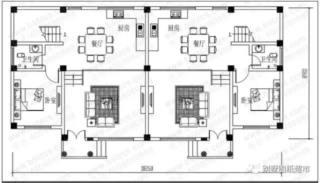
三層平屋頂雙拼別墅
此款三層平屋頂雙拼別墅圖紙編號: DC0063,開間18.26米,進深8.9米,占地面積162.5平方米,建筑面積460.74平方米,主體造價在42-50萬。
.jpg)
首層戶型:
.jpg)
圖紙預覽:
.jpg)
一 層:客廳、臥室、廚房、餐廳、衛生間
二 層:客廳(附陽臺)、2臥室、衛生間
三 層:臥室(附陽臺)、臥室、衛生間、露臺
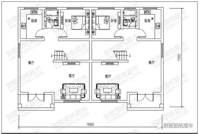
漂亮三層雙拼別墅
此款漂亮的三層雙拼別墅圖紙編號: DC0266,開間16米,進深11.7米,占地面積162.9平方米,建筑面積519.13平方米,主體造價在40-46萬。
.jpg)
首層戶型:
.jpg)
圖紙預覽:

一 層:客廳、臥室(附衣帽間)、廚房、餐廳、衛生間
二 層:客廳(附陽臺)、臥室(附衣帽間)、2臥室、衛生間
三 層:客廳(附露臺)、娛樂室、臥室、儲藏室、衛生間、露臺
大氣三層雙拼別墅
此款大氣三層雙拼別墅圖紙編號: DC0278,開間17米,進深10.8米,占地面積189.2平方米,建筑面積625.54平方米,主體造價在50萬以上。
.jpg)
首層戶型:
.jpg)
圖紙預覽

一 層:客廳、臥室、廚房、餐廳、儲藏室、衛生間
二 層:客廳(附陽臺)、臥室(附衣帽間)、臥室、衛生間
三 層:臥室(附陽臺)、臥室、儲藏室、衛生間
今天7套三層雙拼別墅,建筑線條鮮明,凹凸有致,外觀造型獨特,顏色穩重大氣,不同于一般的土俗氣質,呈現出一種高雅氣息,非常適合在農村建造。
.jpg)
本文由別墅圖紙超市編輯發布,如需了解更多,可登錄網站主頁http://m.wxtmjd.cn/,或者撥打我們的免費電話400-8080-889在線咨詢。
>>>>推薦閱讀:5套帶車庫二層農村別墅,不超過30萬,拿回家立馬蓋
>>>>推薦閱讀:送你十套精品戶型,花40萬在農村建個小別墅
>>>>推薦閱讀:十套經典美觀農村別墅(效果圖+建房案例),良心推薦!











