農村自建房三層貴,一層少,這款二層小戶型別墅設計剛剛好
雖說農村人的經濟水平是越來越高了,但是錢也不是說想怎么花就怎么花的。特別是自建房的話又要考慮美觀大方,又要經濟實惠,考慮到家庭成員的人口數,房間太多太少都不好。今天就為大家介紹一款農村自建二層帶露臺小戶型別墅設計圖紙。那句話是怎么說來著:農村自建房三層貴,一層少,這款二層小戶型別墅設計剛剛好!
.jpg)
圖紙屬性 編號: DC0366 層數: 二層 結構形式: 磚混結構 主體造價: 18-22萬
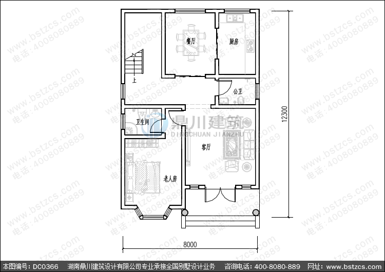
開間: 8米 進深: 12.3米 占地面積: 100.91平方米 建筑面積: 211.08平方米
圖紙內容
建 筑 圖:建筑設計總說明、一層平面圖、二層平面圖、閣樓平面圖、屋頂平面圖、正立面圖、背立面圖、左立面圖、右立面圖、1-1剖面圖、室內裝修表、樓梯大樣圖、門窗表、節點詳圖
結 構 圖:結構設計總說明、坡屋面構造大樣圖、基礎平面圖、二層結構平法施工圖、閣樓結構平法施工圖、屋頂結構平法施工圖、樓梯大樣圖、節點大樣圖
給排水圖:給排水設計說明、一層給排水平面圖、二層給排水平面圖、閣樓給排水平面圖、屋頂排水平面圖、衛生間給排水大樣圖、給排水系統圖、化糞池大樣圖
電 氣 圖:電氣設計說明及圖例、配電系統圖、一層照明平面圖、二層照明平面圖、閣樓照明平面圖、一層插座平面圖、二層插座平面圖、閣樓插座平面圖、防雷平面圖、接地平面圖、一層電訊平面圖、二層電訊平面圖
設計功能
一 層: 客廳、臥室(附衛生間)、廚房、餐廳、衛生間
二 層: 客廳(附露臺)、臥室(附衛生間)、臥室、衛生間
一層戶型:

二層戶型:

.jpg)
本文由別墅圖紙超市編輯發布,如需了解更多,可登錄網站主頁http://m.wxtmjd.cn/,或者撥打我們的免費電話400-8080-889在線咨詢。
>>>>推薦閱讀:2017年新農村二層自建房別墅設計圖
>>>>推薦閱讀:占地100㎡造價18-22萬,這樣的二層帶露臺別墅設計你要嗎?
>>>>推薦閱讀:35萬二層半農村別墅設計圖,戶型舒適又實用











