分享10套戶型正風水好的四層帶車庫露臺自建別墅圖紙給您
發達城市的周邊農村基本上家家戶戶都是自建別墅,且以2-3層別墅居多,這些別墅戶主大多是把預算都用在了裝修上。也有少部分人是喜歡高層別墅的,那樣既滿足了家里的居住需求,又能夠有更多的空間進行改造,使家人有更好的居住體驗。今天小編就給大家分享10款四層自建別墅,帶車庫露臺還有棋牌室之類等多功能娛樂房。

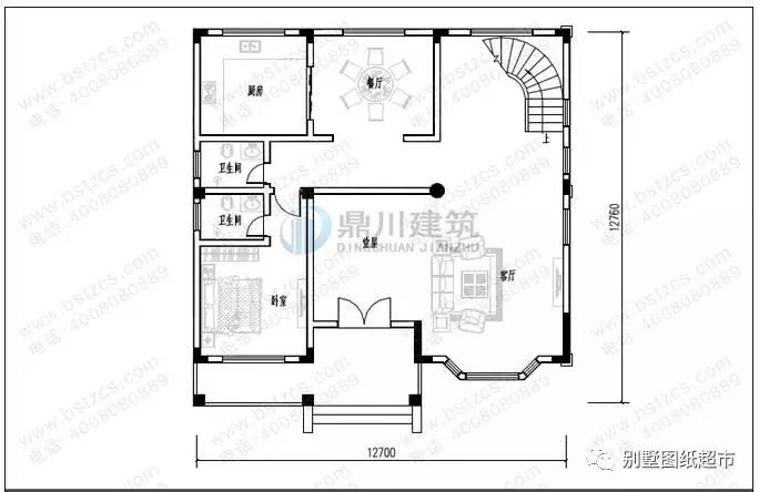
此款別墅編號: DC0364,結構形式為框架結構,開間12.7米,進深12.76米,占地面積164.8平方米,建筑面積578.08平方米,主體造價50萬以上。
首層戶型:

一 層:堂屋、客廳(中空)、臥室(附衛生間)、廚房、餐廳、衛生間
二 層:起居室、臥室(附衛生間,陽臺)、臥室(附陽臺)、臥室、衛生間
三 層:健身房(附陽臺,露臺)、臥室(附衛生間,陽臺)、臥室(附陽臺)、臥室、衛生間
四 層:臥室(附衛生間,陽臺)、臥室(附陽臺)、臥室、衛生間、露臺

此款別墅編號: DC0344,結構形式為框架結構,開間13.2米,進深15.1米,占地面積179.10平方米,建筑面積703.30平方米,主體造價50萬以上。
首層戶型:

一 層:門廳、客廳(中空)、臥室(附衛生間)、2臥室、廚房、餐廳、衛生間
二 層:起居室、休息區(附陽臺)、臥室(附衛生間)、臥室(附陽臺)、2臥室、衛生間
三 層:起居室、臥室(附書房,衣帽間,衛生間)、臥室(附衣帽間,內陽臺)、臥室(附陽臺)、2臥室、衛生間
四 層:健身廳、臥室(附衣帽間,內陽臺)、臥室(附露臺)、書房、衛生間、露臺

此款別墅編號: DC0339,結構形式為框架結構,開間12米,進深13.2米,占地面積151.83平方米,建筑面積632.50平方米,主體造價50萬以上。
首層戶型:

一 層:門廳、客廳、臥室(附衛生間)、廚房、餐廳、觀景臺、衛生間、車庫
二 層:起居室(附陽臺)、臥室(附衣帽間,衛生間,內陽臺)、臥室(附書房,衣帽間,內陽臺)、臥室、棋牌室、衛生間
三 層:臥室(附衣帽間,衛生間,內陽臺)、臥室(附書房,衣帽間,露臺)、臥室、家庭影院(附陽臺)、衛生間
四 層:臥室(附衛生間)、臥室(附衣帽間)、臥室、書房、健身廳(附露臺)、衛生間、露臺

此款別墅編號: DC0330, 結構形式為磚混結構,開間13.8米,進深12.6米,占地面積161.69平方米,建筑面積622.72平方米,主體造價50萬以上。
首層戶型:

一 層:客廳(中空)、臥室(附衛生間)、2臥室、廚房、餐廳、衛生間
二 層:起居室(附陽臺)、臥室(附書房,衣帽間,衛生間,陽臺)、臥室、棋牌室、衛生間
三 層:2臥室(附陽臺)、3臥室、書房、2衛生間
四 層:家庭影院、健身房、臥室、儲存間、衛生間、露臺

此款別墅編號: DC0323,結構形式為框架結構,開間11.1米,進深15.22米,占地面積160.55平方米,建筑面積639.84平方米,主體造價50萬以上。
首層戶型:

一 層:門廳、客廳(中空)、臥室(附衛生間)、臥室、棋牌室、廚房、餐廳、儲存間、衛生間
二 層:起居室(附陽臺)、臥室(附衣帽間,衛生間,陽臺)、臥室、書房、衛生間
三 層:臥室(附衣帽間,衛生間,露臺)、臥室(附陽臺)、臥室(附衣帽間)、2臥室、書房、衛生間
四 層:臥室(附衛生間)、臥室(附露臺)、家庭影院、儲存間、衛生間、露臺

此款別墅編號: DC0246,結構形式為框架結構,開間12米,進深11.7米,占地面積131.29平方米,建筑面積456.33平方米,主體造價40-45萬。
首層戶型:

一 層:玄關、客廳(中空)、臥室、廚房、餐廳、衛生間、車庫
二 層:客廳、臥室(附陽臺)、2臥室、書房、衛生間
三 層:客廳(附陽臺)、2臥室(附陽臺)、2臥室、書房、衛生間
四 層:客廳、臥室(附陽臺)、3臥室、衛生間、露臺

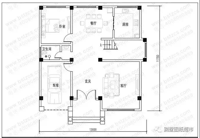
此款別墅編號: DC0238,結構形式為框架結構,開間12米,進深10.5米,占地面積125.74平方米,建筑面積375.46平方米,主體造價35-40萬。
首層戶型:

一 層:客廳(中空)、臥室、廚房、餐廳、衛生間、車庫
二 層:客廳、臥室(附陽臺)、2臥室、衛生間
三 層:客廳、2臥室、儲藏室、衛生間、陽臺、露臺
四 層:客廳、臥室、衛生間、陽臺

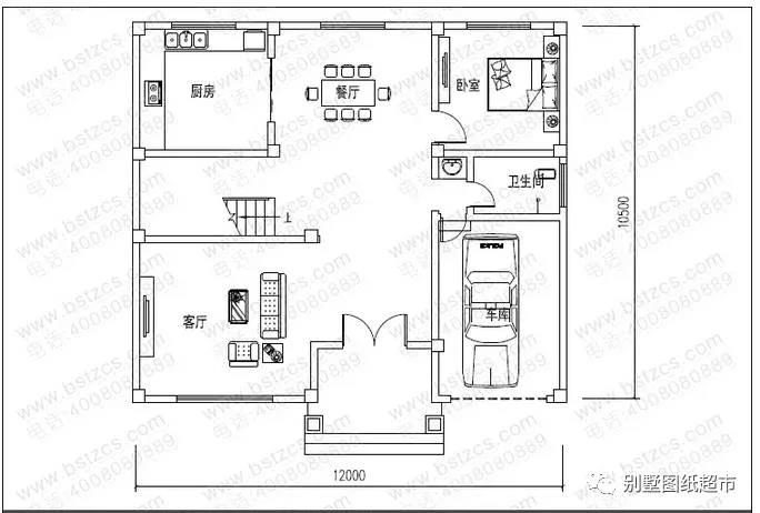
此款別墅編號: DC0234,結構形式為磚混結構,開間10米,進深10米,占地面積104.86平方米,建筑面積388.62平方米,主體造價28-35萬。
首層戶型:

一 層:客廳、茶廳、臥室、廚房、餐廳、衛生間
二 層:客廳(附陽臺)、臥室(附衛生間)、3臥室、衛生間
三 層:客廳、臥室(附陽臺)、臥室(附衛生間)、臥室、書房、衛生間
四 層:活動室、2臥室、衛生間、露臺

此款別墅編號: DC0075,結構形式為磚混結構,開間15.3米,進深9.6米,占地面積143.79平方米,建筑面積417.38平方米,主體造價32-38萬。
首層戶型:

一 層:大堂、客廳(中空)、臥室(附衛生間)、車庫(附工具房)、廚房、餐廳、衛生間
二 層:起居室(附陽臺)、茶廳、主臥(附書房,衛生間)、2臥室、衛生間
三 層:起居室(附陽臺)、臥室(附衛生間)、2臥室、衛生間、露臺
四 層:露臺

此款別墅編號: DC0018,結構形式為框架結構,開間11.1米,進深15.7米,占地面積158.52平方米,建筑面積543.98平方米,主體造價50萬以上。
首層戶型:

一 層:客廳(中空)、臥室(附衛生間)、棋牌室、廚房、餐廳、衛生間、車庫
二 層:起居室、臥室(附衛生間,陽臺)、2臥室、書房(附陽臺)、衛生間
三 層:影音室(附陽臺)、臥室(附衛生間)、2臥室、書房(附陽臺)、衛生間
四 層:臥室(附衛生間)、臥室、娛樂間(附露臺)、衛生間、露臺
.jpg)
本文由別墅圖紙超市編輯發布,如需了解更多,可登錄網站主頁http://m.wxtmjd.cn/,或者撥打我們的免費電話400-8080-889在線咨詢。
>>>>推薦閱讀:這5款超正的農村自建房案例,讓你的房子美一輩子
>>>>推薦閱讀:想建房的朋友們注意啦!11款三層歐式自建別墅設計圖供你選擇
>>>>推薦閱讀:解決了90%農村人蓋房難題的18套別墅設計,今天全部分享給你!











