帶車庫的二層農村房屋設計圖_別墅設計圖紙,新農村別墅,農村自建房設計
購圖前重要說明:
購買“圖紙超市”類目下的圖紙可贈送“贈品圖紙”類目下任意三套圖紙,贈品圖紙單獨出售為50元一套,100元三套,本套圖紙僅提供電子文件一份,可用于施工參考或學習資料,您可以下載后打印出圖,售后服務僅為圖紙答疑,不包任何修改,因為只要其中一張圖紙改變,其它圖紙相應均需修改,工作量較大,所以我們不包修改。如果您個性要求較多需按要求訂做設計,請查看 別墅設計業務流程,并聯系設計客服咨詢設計收費標準。
21211221詳細介紹
| 圖紙屬性 | |||
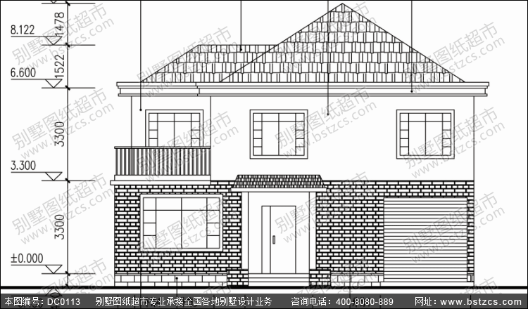
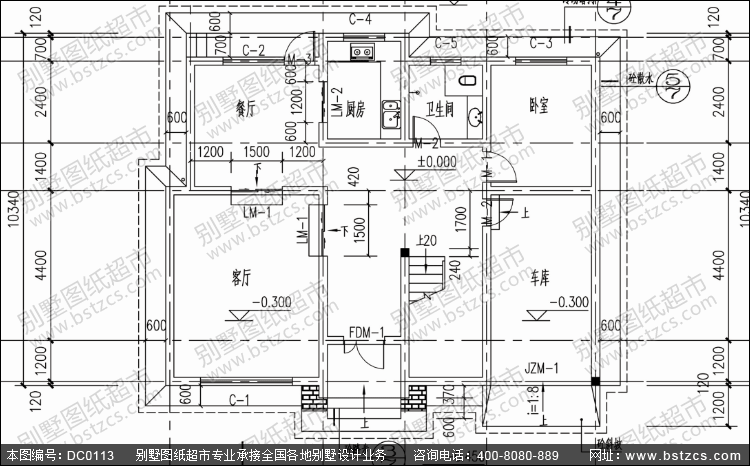
| 開間: 12.74米 | 進深: 10.34米 | 占地面積: 119平方米 | 建筑面積: 229.6平方米 |
| 圖紙內容 | ||||
| 建 筑 圖: | 一層平面圖、二層平面圖、屋頂平面圖、正立面圖、背立面圖、左立面圖、右立面圖、1-1剖面圖、樓梯詳圖、節點詳圖 | |||
| 結 構 圖: | 無 | |||
| 給排水圖: | 無 | |||
| 電 氣 圖: | 無 | |||
| 設計功能 | ||||
| 一 層: | 客廳、臥室、廚房、餐廳、衛生間、車庫 | |||
| 二 層: | 起居室、臥室(附衛生間)、2臥室、雜物間、衛生間、曬臺 | |||
特別提示
- 本站圖紙如果用于建造房屋,為保證建造安全、圖紙和實際地質情況相吻合,以及各地施工做法及水平的差異,避免因為直接使用圖紙造成的材料浪費或者返工,圖紙務必請專業人士驗證后,再進行使用!
- 贈品圖紙一般都只含有建筑施工圖,無結構施工圖和水電施工圖,只能用于施工參考或學習資料,如果要用于建房請另找設計師將圖紙進一步設計完整;
- 很多網站以光盤的形式出售圖紙,宣稱有6000多套甚至更多,請您務必慎重考慮,那些光盤里面大部分只有效果圖而沒有施工圖,有CAD圖紙的設計內容也是不完整的,只是方案圖而不是施工圖,缺少了節點圖、結構配筋圖、水電圖等等,如果您對建筑行業不了解,等收到光盤并付款后發現里面的圖紙不完整就于事無補了。選擇齊全的施工圖紙才能用于建房。
相關推薦
-
農村二層小別墅_別墅設計圖紙,農村房屋設計圖,農村自建房設計
¥980.00 查看
-
二層帶露臺及閣樓別墅設計圖紙施工圖_別墅設計圖紙,農村房屋設
¥258.00 查看
-
農村二層小別墅設計圖紙帶效果圖_別墅設計圖紙,農村房屋設計圖
¥980.00 查看





















