二層帶閣樓別墅設計_別墅設計圖紙,新農村別墅,農村自建房設計
購圖前重要說明:
購買“圖紙超市”類目下的圖紙可贈送“贈品圖紙”類目下任意三套圖紙,贈品圖紙單獨出售為50元一套,100元三套,本套圖紙僅提供電子文件一份,可用于施工參考或學習資料,您可以下載后打印出圖,售后服務僅為圖紙答疑,不包任何修改,因為只要其中一張圖紙改變,其它圖紙相應均需修改,工作量較大,所以我們不包修改。如果您個性要求較多需按要求訂做設計,請查看 別墅設計業務流程,并聯系設計客服咨詢設計收費標準。
21211221詳細介紹
| 圖紙屬性 | |||
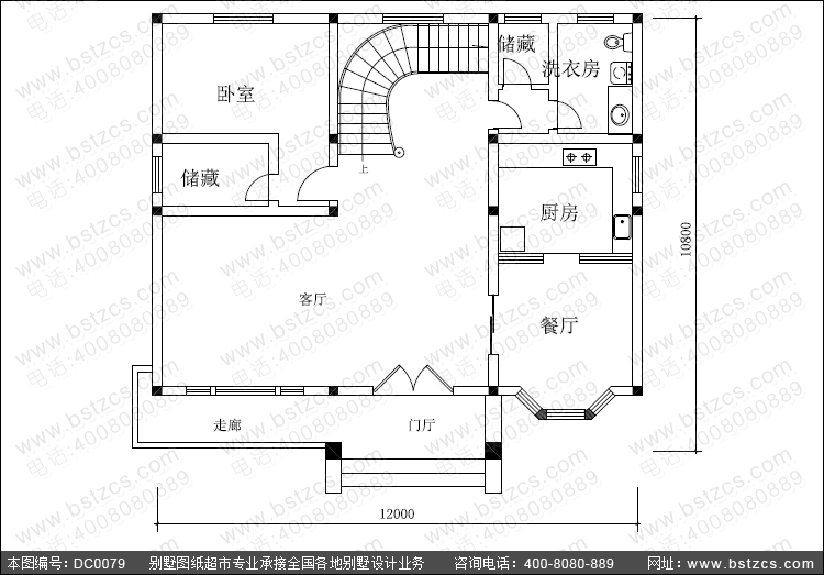
| 編號: DC0079 | 層數: 二層帶閣樓 | 結構形式: 磚混結構 | 主體造價: 24-28萬 |
| 開間: 12米 | 進深: 10.8米 | 占地面積:126.43平方米 | 建筑面積:312.77平方米 |
| 圖紙內容 | ||||
| 建 筑 圖: | 建筑設計說明、一層平面圖、二層平面圖 、閣樓平面圖、屋頂平面圖、正立面圖、背立面圖、右立面圖、1-1剖面圖、2-2剖面 圖、節點詳圖 | |||
| 結 構 圖: | 結構設計說明、基礎施工圖、基礎詳圖、 一層結構平面圖、二層結構平面圖、屋頂層結構平面圖、一層梁結構平面圖、二層梁 結構平面圖、屋頂層梁結構平面圖、樓梯結構圖、老虎窗詳圖、節點詳圖 | |||
| 給排水圖: | 給排水設計說明、一層給排水平面圖、二 層給排水平面圖、閣樓給排水平面圖、屋頂給排水平面圖、給排水系統圖 | |||
| 電 氣 圖: | 電氣設計說明、配電系統圖、弱電系統圖 、電位聯結做法及系統圖、一層弱電平面圖、二層弱電平面圖、閣樓層弱電平面圖、 一層插座平面圖、二層插座平面圖、閣樓層插座平面圖、一層照明平面圖、二層照明 平面圖、閣樓層照明平面圖 | |||
| 設計功能 | ||||
| 一 層: | 走廊、客廳、臥室(附儲藏間)、廚房、 餐廳、儲藏間、衛生間 | |||
| 二 層: | 主臥(附書房,衛生間)、臥室(附陽臺 )、臥室、走入式衣柜、衛生間 | |||
| 閣 樓: | 儲藏間 | |||
本套圖紙有施工圖39張,效果圖1張,包打印(效果圖為彩 圖,施工圖為A3大圖),快遞包郵,無電子版
效果圖:

首層戶型:

圖紙預覽:


![]()




特別提示
- 本站圖紙如果用于建造房屋,為保證建造安全、圖紙和實際地質情況相吻合,以及各地施工做法及水平的差異,避免因為直接使用圖紙造成的材料浪費或者返工,圖紙務必請專業人士驗證后,再進行使用!
- 贈品圖紙一般都只含有建筑施工圖,無結構施工圖和水電施工圖,只能用于施工參考或學習資料,如果要用于建房請另找設計師將圖紙進一步設計完整;
- 很多網站以光盤的形式出售圖紙,宣稱有6000多套甚至更多,請您務必慎重考慮,那些光盤里面大部分只有效果圖而沒有施工圖,有CAD圖紙的設計內容也是不完整的,只是方案圖而不是施工圖,缺少了節點圖、結構配筋圖、水電圖等等,如果您對建筑行業不了解,等收到光盤并付款后發現里面的圖紙不完整就于事無補了。選擇齊全的施工圖紙才能用于建房。
相關推薦
-
新農村二層帶閣樓自建房設計圖紙_別墅設計圖紙,農村房屋設計圖
¥300.00 查看
-
新農村二層帶陽臺小別墅施工圖及效果圖_別墅圖紙超市,農村房屋
¥980.00 查看
-
二層復式樓小別墅圖紙_別墅圖紙超市,農村自建房屋設計圖
¥980.00 查看
-
新農村實用二層小別墅設計圖紙_農村房屋設計圖紙,鼎川別墅圖紙
¥980.00 查看














