6款經典雙拼別墅設計圖,兄弟建房有這些就夠了
為什么國家一放開二胎政策就有了那么多人要生二胎,說明還是兄弟姐妹多一個的好啊!農村就自不必說了,都講的是一個也是帶,二個三個也是帶,要不是政策不允許,真巴不得越多越好呢!為什么,還是因為有兄弟姐妹的話,關系和睦著相親相愛的相互扶持,能省下不少的操心事啊。就像自建房一樣的,兄弟一起建個雙拼別墅,不但可以以較少的花費充分利用宅基地還能增近兄弟之間的親近感,讓父母安心旁人羨慕。下面這6款雙拼別墅設計圖是雙拼別墅里面的經典款式,不僅外觀好看,而且戶型合理,兄弟建房有這些就足夠了。
第一款:編號:DC0360
.jpg)
層數:二層
結構形式:磚混結構
主體造價:43-48萬
開間:16米
進深:13.2米
占地面積:212.8平方米
建筑面積:483.89平方米
一層:客廳、臥室(附衛生間)、廚房、餐廳、衛生間
二層:起居室、臥室(附衛生間)、臥室(附陽臺)、臥室、衛生間
一層布局
.jpg)
二層布局
.jpg)
第二款:編號:DC0301
.jpg)
層數:三層
結構形式:框架結構
主體造價:50萬以上
開間:19米
進深:11.1米
占地面積:203.04平方米
建筑面積:625.05平方米
一層:客廳、臥室(附衛生間)、廚房、餐廳、儲藏室、衛生間
二層:客廳、臥室(附衛生間,陽臺)、2臥室、衛生間
三層:客廳、臥室、娛樂室、衛生間、露臺
一層布局
.jpg)
第三款:編號:DC0284
.jpg)
層數:三層
結構形式:框架結構
主體造價:50萬以上
開間:23.2米
進深:12.1米
占地面積:274.14平方米
建筑面積:732.07平方米
一層:客廳(中空)、老人房(附衛生間)、臥室、廚房、餐廳、衛生間
二層:起居室、主臥(附衛生間,陽臺)、2臥室、書房、衛生間
三層:健身房、主臥(附衛生間,陽臺)、臥室、衛生間、露臺
一層布局
.jpg)
第四款:編號:DC0278
.jpg)
層數:三層
結構形式:框架結構
主體造價:50萬以上
開間:17米
進深:10.8米
占地面積:189.2平方米
建筑面積:625.54平方米
一層:客廳、臥室、廚房、餐廳、儲藏室、衛生間
二層:客廳(附陽臺)、臥室(附衣帽間)、臥室、衛生間
三層:臥室(附陽臺)、臥室、儲藏室、衛生間
一層布局
.jpg)
第五款:編號:DC0266
.jpg)
層數:三層
結構形式:框架結構
主體造價:40-46萬
開間:16米
進深:11.7米
占地面積:162.9平方米
建筑面積:519.13平方米
一層:客廳、臥室(附衣帽間)、廚房、餐廳、衛生間
二層:客廳(附陽臺)、臥室(附衣帽間)、2臥室、衛生間
三層:客廳(附露臺)、娛樂室、臥室、儲藏室、衛生間、露臺
一層布局
.jpg)
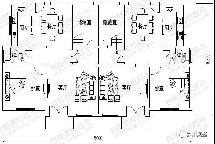
第六款:編號:DC0206
.jpg)
層數:三層
結構形式:磚混結構
主體造價:30-36萬
開間:18米
進深:10.8米
占地面積:191.4平方米
建筑面積:462.8平方米
一層:客廳、臥室、廚房、餐廳、儲藏室、衛生間
二層:臥室(附陽臺)、臥室(附衣帽間)、臥室、衛生間
三層:娛樂室、露臺
一層布局
.jpg)
.jpg)
本文由別墅圖紙超市編輯發布,如需了解更多,可登錄網站主頁http://m.wxtmjd.cn/,或者撥打我們的免費電話400-8080-889在線咨詢。
>>>>推薦閱讀:兄弟,一起建個這樣的二層帶陽臺雙拼別墅吧!
>>>>推薦閱讀:7款雙拼三層自建別墅,農村兄弟建房首選!
>>>>推薦閱讀:兄弟蓋雙拼別墅,單戶造價才34萬,還包外墻,經濟又實用











