8套簡歐小別墅,80、90后最愛的戶型,時尚簡約!
當代城市壓力大,空氣、環境都污染比較嚴重,城市的燈紅酒綠也很容易讓人迷失自我。很多80、90后的人寧愿一輩子呆在故鄉。享受家鄉的山山水水,鄉土人情。然后有個自己滿意的房子,一家人一輩子。想想都很美好!而且現如今農村發展迅速,網絡發達,農村的房子也越來越好看。農村的日子可以說很幸福了。在這里分享8款80、90后最喜歡的簡歐小別墅給大家,讓你們美好的鄉村生活有一個美好的開始!
編號: DC0277
層數: 三層
結構形式: 磚混結構
主體造價: 28-32萬
開間: 11米
進深: 11.6米
占地面積: 130.71平方米
建筑面積: 385.85平方米


一 層: 客廳、臥室、廚房、餐廳、衛生間、車庫
二 層: 客廳、娛樂廳、臥室(附陽臺)、2臥室、書房、衛生間
三 層: 娛樂廳、臥室(附陽臺)、2臥室、衛生間、露臺
編號: DC0245
層數: 三層
結構形式: 框架結構
主體造價: 34-40萬
開間: 12.2米
進深: 13.5米
占地面積: 146.12平方米
建筑面積: 405.58平方米


一 層: 客廳、臥室(附衛生間)、臥室、棋牌室、廚房、餐廳(附景觀陽臺)、衛生間
二 層: 起居室(附陽臺)、茶廳(附陽臺)、臥室(附陽臺)、臥室(附衛生間)、2臥室、書房、衛生間
三 層: 健身房(附露臺)、臥室(附衛生間,露臺)、2臥室、書房、衛生間
編號: DC0256
層數: 三層
結構形式: 磚混結構
主體造價: 22-26萬
開間: 14米
進深: 8米
占地面積: 115.12平方米
建筑面積: 296.57平方米


一 層: 客廳、臥室、廚房、餐廳、衛生間、車庫(兼儲藏室)
二 層: 客廳、休息區、臥室(附露臺)、3臥室、衛生間
三 層: 3臥室、衛生間、2露臺
編號: DC0248
層數: 三層
結構形式: 框架結構
主體造價: 45-50萬
開間: 15米
進深: 11.4米
占地面積: 151.84平方米
建筑面積: 383.9平方米


一 層: 玄關、客廳(中空)、臥室、廚房、餐廳、衛生間、車庫
二 層: 休息廳、臥室(附衛生間,陽臺)、臥室(附陽臺)、臥室、衛生間
三 層: 客廳(附露臺)、臥室(附衛生間,陽臺)、臥室(附陽臺)、臥室、衛生間、露臺
閣 樓: 涼亭、儲藏間
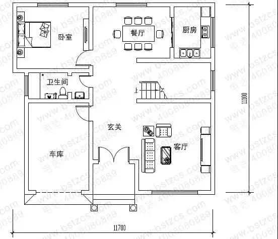
編號: DC0229
層數: 三層
結構形式: 磚混結構
主體造價: 24-28萬
開間: 11.7米
進深: 11.1米
占地面積: 125.93平方米
建筑面積: 303.96平方米


一 層: 客廳(中空)、臥室、廚房、餐廳、衛生間、車庫
二 層: 小客廳、臥室(附陽臺)、2臥室、衛生間
三 層: 小客廳、臥室(附陽臺)、2臥室、衛生間、露臺
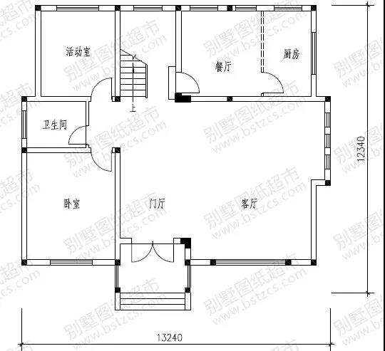
編號: DC0190
層數: 三層
結構形式: 磚混結構
主體造價: 26-32萬
開間: 13.24米
進深: 12.34米
占地面積: 147.09平方米
建筑面積: 350.63平方米


一 層: 門廳、客廳、臥室、活動室、廚房、餐廳、衛生間
二 層: 起居室(附露臺)、臥室(附書房,衛生間)、臥室(附衣柜間,衛生間)
三 層: 健身房、臥室(附衛生間)、臥室、衛生間、2露臺
編號: DC0312
層數: 三層
結構形式: 磚混結構
主體造價: 22-26萬
開間: 9.9米
進深: 9.6米
占地面積: 92.94平方米
建筑面積: 274.1平方米


一 層: 客廳、臥室、廚房、餐廳、衛生間
二 層: 休息區、臥室(附書房,衣帽間,陽臺)、臥室、儲存間、衛生間
三 層: 臥室(附書房,衣帽間,陽臺)、臥室(附露臺)、衛生間
編號: DC0251
層數: 三層
結構形式: 框架結構
主體造價: 25-30萬
開間: 12.8米
進深: 10.8米
占地面積: 118.34平方米
建筑面積: 301.42平方米


一 層: 客廳、臥室(附衣帽間)、臥室、廚房、餐廳、衛生間
二 層: 小客廳、臥室(附陽臺)、2臥室、衣帽間、書房、衛生間
三 層: 臥室(附衣帽間,書房,化妝間,衛生間,陽臺)、露臺
以上8款農村別墅外觀造型都屬于比較簡約的歐式,時尚又大氣,不管在什么時候都不會過時,想建房的朋友可以參考!
.jpg)
本文由別墅圖紙超市編輯發布,如需了解更多,可登錄網站主頁http://m.wxtmjd.cn/,或者撥打我們的免費電話400-8080-889在線咨詢。
>>>>推薦閱讀:精選10款帶煙囪設計自建別墅,鄉村風味最經典!
>>>>推薦閱讀:10款造價22萬新農村自建別墅,選中即可開工!
>>>>推薦閱讀:15款定制小別墅讓你愛上農村,第2套低調貴氣,第12套最豪華











