15套二、三層帶堂屋的農村別墅,農村建再好不過!
說到農村自建房和城市商品房功能布局上的區別,最明顯的地方就是有沒有堂屋這個區域了。其實堂屋在農村算是一個比較重要的區域,農村一般行吉兇大禮,辦紅白喜事都會在堂屋進行。在日常生活中,堂屋一般有兩個功能,一個是敬奉先人,一個是接待賓客。可想而知,堂屋對農村人的意義多么重大。今天小編就分享一下帶堂屋的農村房子給大家參考!
編號: DC0012

層數: 二層
結構形式: 磚混結構
主體造價: 18-22萬
開間: 12.6米
進深: 10.1米
占地面積: 111.35平方米
建筑面積: 253.1平方米
首層戶型:

一 層: 堂屋、客廳、臥室、廚房、餐廳、衛生間
二 層: 客廳(附陽臺)、棋牌室、臥室(附陽臺)、2臥室、衛生間
編號: DC0101

層數: 二層
結構形式: 磚混結構
主體造價: 18-22萬
開間: 13米
進深: 12.8米
占地面積: 172.65平方米
建筑面積: 250.95平方米
首層戶型:

一 層: 內院、堂屋、客廳、臥室(附衛生間)、2臥室、廚房、儲藏室、衛生間
二 層: 客廳、主臥(附衛生間,露臺)、3臥室、衛生間
編號: DC0102

層數: 二層帶閣樓
結構形式: 磚混結構
主體造價: 23-28萬
開間: 13米
進深: 10.6米
占地面積: 137.9平方米
建筑面積: 272.7平方米
首層戶型:

一 層: 堂屋、客廳、主臥(附衛生間)、臥室、廚房、餐廳、儲藏室、衛生間
二 層: 客廳(附陽臺)、主臥(附衛生間)、3臥室、衛生間
閣 樓: 儲藏間
編號: DC0283

層數: 二層
結構形式: 磚混結構
主體造價: 20-25萬
開間: 11米
進深: 9.6米
占地面積: 112.72平方米
建筑面積: 257.77平方米
首層戶型:

一 層: 堂屋、客廳、2臥室、廚房、餐廳、衛生間
二 層: 客廳(附陽臺)、臥室(附書房)、3臥室、衛生間
編號: DC0282

層數: 二層
結構形式: 磚混結構
主體造價: 16-20萬
開間: 12米
進深: 8米
占地面積: 100.86平方米
建筑面積: 227.77平方米
首層戶型:

一 層: 堂屋、客廳、臥室、廚房、餐廳、衛生間
二 層: 客廳(附陽臺)、臥室(附陽臺)、臥室、兒童房、書房、衛生間
編號: DC0311

層數: 二層
結構形式: 框架結構
主體造價: 30-36萬
開間: 14.1米
進深: 12.9米
占地面積: 151.39平方米
建筑面積: 357.24平方米
首層戶型:

一 層: 走廊、堂屋、客廳、臥室、廚房、餐廳、儲藏室、衛生間
二 層: 客廳(附陽臺)、娛樂室、臥室(附衛生間)、臥室、書房、衛生間
編號: DC0303

層數: 二層
結構形式: 磚混結構
主體造價: 35-40萬
開間: 16.2米
進深: 11.4米
占地面積: 191.36平方米
建筑面積: 458.79平方米
首層戶型:

一 層: 堂屋、客廳、臥室(附衣帽間,衛生間)、臥室、廚房、餐廳、衛生間、車庫
二 層: 客廳(附陽臺)、臥室(附衣帽間,衛生間)、4臥室、書房、衛生間
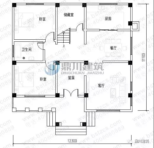
編號: DC0287

層數: 二層
結構形式: 框架結構
主體造價: 25-30萬
開間: 12.3米
進深: 11.1米
占地面積: 130平方米
建筑面積: 295.19平方米
首層戶型:

一 層: 走廊、堂屋、客廳、2臥室、廚房、餐廳、衛生間、儲藏室
二 層: 客廳(附露臺)、臥室(附書房,露臺)、臥室(附露臺)、臥室、衛生間
編號: DC0353

層數: 三層
結構形式: 框架結構
主體造價: 40-45萬
開間: 14米
進深: 13.8米
占地面積: 196.66平方米
建筑面積: 434.81平方米
一層戶型:

二層戶型:

三層戶型:

一 層:走廊、堂屋、客廳(中空)、會客室(附內陽臺)、臥室(附衛生間)、廚房、餐廳、衛生間
二 層:小客廳(附陽臺)、臥室(附衛生間,露臺)、臥室(附書房)、臥室、衛生間
三 層:活動室、臥室(附衛生間)、臥室(附書房)、衛生間、陽臺、露臺
編號: DC0318

層數: 三層
結構形式: 框架結構
主體造價: 45-50萬
開間: 16.2米
進深: 10.6米
占地面積: 165.79平方米
建筑面積: 412.61平方米
首層戶型:

一 層:堂屋、客廳(中空)、臥室、廚房、餐廳、衛生間、儲藏室、車庫
二 層:客廳、臥室(附露臺)、3臥室、衛生間
三 層:客廳、2臥室、娛樂室、衛生間、露臺
編號: DC0285

層數: 三層
結構形式: 框架結構
主體造價: 40-45萬
開間: 15.9米
進深: 10.5米
占地面積: 155.5平方米
建筑面積: 431.12平方米
首層戶型:

一 層: 堂屋、客廳、臥室(附衛生間)、廚房、餐廳、儲藏室、衛生間、車庫
二 層: 客廳(附陽臺)、臥室(附衛生間)、臥室(附陽臺)、臥室(附衣帽間)、臥室、書房(附陽臺)、衛生間
三 層: 客廳(附陽臺)、臥室、娛樂室、衛生間、露臺
編號: DC0276

層數: 三層
結構形式: 框架結構
主體造價: 25-30萬
開間: 12米
進深: 9.3米
占地面積: 97.58平方米
建筑面積: 275.41平方米
首層戶型:

一 層:堂屋、客廳、臥室、廚房、餐廳、儲藏室、衛生間
二 層:起居室、娛樂室、臥室(附陽臺)、臥室、衛生間、露臺
三 層:3臥室、衛生間、露臺
編號: DC0270

層數: 三層
結構形式: 框架結構
主體造價: 36-42萬
開間: 14.4米
進深: 13.574米
占地面積: 153.35平方米
建筑面積: 439.63平方米
首層戶型:

一 層:堂屋、客廳、娛樂室、臥室(附衛生間)、臥室、廚房(附陽臺)、餐廳、衛生間
二 層:客廳、娛樂室、臥室(附衛生間)、臥室(附陽臺)、2臥室、書房(附陽臺)、衛生間
三 層:客廳、娛樂室(附陽臺)、2臥室、衛生間、露臺
編號: DC0252

層數: 三層
結構形式: 磚混結構
主體造價: 25-30萬
開間: 13.4米
進深: 11.7米
占地面積: 132.18平方米
建筑面積: 361.36平方米
首層戶型:

一 層:堂屋、客廳、2臥室、廚房(兼餐廳)、衛生間
二 層:起居室(附陽臺)、臥室(附衛生間)、臥室(附陽臺)、2臥室、衛生間
三 層:臥室(附衛生間)、臥室(附露臺)、臥室、衛生間、露臺
編號: DC0028

層數: 三層
結構形式: 磚混結構
主體造價: 22-26萬
開間: 11.5米
進深: 10.5米
占地面積: 121.03平方米
建筑面積: 312.31平方米
首層戶型:

一 層: 堂屋、客廳、老人房(附衛生間)、娛樂室、廚房、餐廳、農具間、衛生間
二 層: 客廳、2臥室(附陽臺)、2臥室、2衛生間
三 層: 2臥室(附陽臺)、臥室、衛生間、露臺
堂屋其實算是一個對外開放性的區域,從以上小別墅的一層布局可以看出,有了堂屋,可以很好的保留房子其他區域的私密性,對于農村來說,清掃也比較簡單。以上15款二、三層帶堂屋的小別墅,你更喜歡哪款呢?
.jpg)
本文由別墅圖紙超市編輯發布,如需了解更多,可登錄網站主頁http://m.wxtmjd.cn/,或者撥打我們的免費電話400-8080-889在線咨詢。
>>>>推薦閱讀:7套農村新中式四合院,一套比一套美,有庭有院過美好生活!
>>>>推薦閱讀:10款簡潔大方經濟型三層自建別墅,第1款造價20萬,第6款最漂亮!
>>>>推薦閱讀:10款進深12米農村別墅,不可錯過的戶型,蓋一棟值了!











