農村建房別著急,這6款農村自建別墅設計,絕對驚艷你!
現在農村人自建房,都想蓋漂亮點,都想和別人有點不一樣,這樣才能展現出自己的品味和氣質。但是很多朋友都非常苦惱建房的樣式老土,農村師傅不懂怎么建房,宅基地不大等等問題困擾著大家,下面這6款房屋戶型設計圖屬于不同風格,造價也不盡相同,哪個最適合您家的宅基地呢?
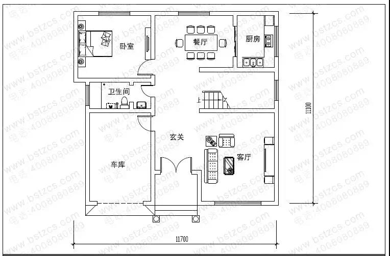
大氣實用的二層別墅
編號: DC0331
結構形式: 框架結構
開間: 16.2米 進深: 11.4米
占地面積: 177.43平方米
建筑面積: 424.29平方米
主體造價: 38-43萬
一層戶型:
二層戶型:
一 層:門廳、客廳(附觀景臺)、臥室(附衛生間)、2臥室、廚房、餐廳、衛生間
二 層:起居室(附觀景臺)、臥室(附書房,衛生間,陽臺)、臥室(附陽臺)、3臥室、衛生間
二層框架結構抗震小別墅
編號: DC0295
結構形式: 框架結構
開間: 13.7米 進深: 10.2米
占地面積: 131.03平方米
建筑面積: 291.61平方米
主體造價: 25-30萬
一層戶型:
圖紙預覽:
一 層:玄關、客廳、臥室、棋牌室、廚房、餐廳、衛生間
二 層:客廳、休息區(附陽臺)、臥室(附書房)、2臥室、衛生間
簡單時尚三層復式別墅
編號: DC0292
結構形式: 框架結構
開間: 12米 進深: 12米
占地面積: 135.42平方米
建筑面積: 366.13平方米
主體造價: 30-35萬
一層戶型:
圖紙預覽:
一 層:過廳、客廳(中空)、2臥室、廚房、餐廳、衛生間
二 層:客廳、2臥室(附陽臺)、2臥室、衛生間
三 層:客廳、臥室(附陽臺)、3臥室、衛生間、露臺
三層帶車庫歐式別墅
編號: DC0285
結構形式: 框架結構
開間: 15.9米 進深: 10.5米
占地面積: 155.5平方米
建筑面積: 431.12平方米
主體造價: 40-45萬
一層戶型:
圖紙預覽:
一 層:堂屋、客廳、臥室(附衛生間)、廚房、餐廳、儲藏室、衛生間、車庫
二 層:客廳(附陽臺)、臥室(附衛生間)、臥室(附陽臺)、臥室(附衣帽間)、臥室、書房(附陽臺)、衛生間
三 層:客廳(附陽臺)、臥室、娛樂室、衛生間、露臺
復式三層帶車庫簡歐小別墅
編號: DC0229
結構形式: 磚混結構
開間: 11.7米 進深: 11.1米
占地面積: 125.93平方米
建筑面積: 303.96平方米
主體造價: 24-28萬
一層戶型:
二層戶型:
一 層:客廳(中空)、臥室、廚房、餐廳、衛生間、車庫
二 層:小客廳、臥室(附陽臺)、2臥室、衛生間
三 層:小客廳、臥室(附陽臺)、2臥室、衛生間、露臺
三層大氣旋轉樓梯復式別墅
編號: DC0216
結構形式: 框架結構
開間: 12.9米 進深: 9.8米
占地面積: 124.19平方米
建筑面積: 337.42平方米
主體造價: 35-40萬
一層戶型:
圖紙預覽:



一 層:門廳、客廳(中空)、2臥室、廚房、餐廳、衛生間
二 層:起居室、2臥室、棋牌室、衛生間
三 層:主臥(附書房,衣帽間,衛生間,陽臺)、臥室、洗衣房、衛生間、露臺
.jpg)
本文由別墅圖紙超市編輯發布,如需了解更多,可登錄網站主頁http://m.wxtmjd.cn/,或者撥打我們的免費電話400-8080-889在線咨詢。
>>>>推薦閱讀:6套帶旋轉樓梯農村自建別墅,大氣有品位,看過的都說好
>>>>推薦閱讀:精選10款帶煙囪設計自建別墅,鄉村風味最經典!
>>>>推薦閱讀:20款經典雙拼別墅,各有亮點,兄弟建房選它們絕對錯不了!











