10套經典大方的農村別墅(效果圖+戶型圖+建房案例),良心推薦!
很多戶主在建房之前都想盡量看更多的建房實拍效果來為自家的房子做建房參考,畢竟建房是一輩子的大事,太隨意了可不行。于是小編今天就為大家帶來10套農村別墅戶型的分享,含效果圖+平面圖還有建房案例實拍,希望能給建房朋友做一個客觀的參考。
編號: DC0137
層數: 三層
結構形式: 框架結構
主體造價: 25-30萬
開間: 12米
進深: 9.3米
占地面積: 97.58平方米
建筑面積: 275.41平方米


平面圖

一 層:堂屋、客廳、臥室、廚房、餐廳、儲藏室、衛生間
二 層:起居室、娛樂室、臥室(附陽臺)、臥室、衛生間、露臺
三 層:3臥室、衛生間、露臺
建房案例實拍圖

編號: DC0250
層數: 二層
結構形式: 磚混結構
主體造價: 20-25萬
開間: 11.34米
進深: 13.31米
占地面積: 136.40平方米
建筑面積: 254.44平方米


平面圖


一 層:客廳、臥室(附衛生間)、臥室、儲藏室、廚房、餐廳、衛生間
二 層:休息區(附陽臺)、臥室(附衛生間)、2臥室、書房、衛生間
頂 層:露臺
建房案例實拍圖

編號: DC0062
層數: 二層
結構形式: 框架結構
主體造價: 25-30萬
開間: 16米
進深: 12米
占地面積: 156.5平方米
建筑面積: 239.4平方米

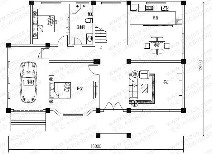
平面圖

一 層:客廳、2臥室、廚房、餐廳、衛生間、車庫
二 層:2臥室、衛生間
建房案例實拍圖



編號: DC0355
層數: 二層
結構形式: 磚混結構
主體造價: 25-30萬
開間: 12米
進深: 11.6米
占地面積: 135.56平方米
建筑面積: 300.98平方米

平面圖


一 層: 門廳、客廳、臥室(附衛生間)、廚房、餐廳、衛生間
二 層: 起居室、棋牌室(附露臺)、臥室(附衛生間,陽臺)、臥室(附陽臺)、臥室、衛生間
建房案例實拍圖

編號: DC0361
層數: 三層
結構形式: 磚混結構
主體造價: 30-35萬
開間: 11米
進深: 12米
占地面積: 138.34平方米
建筑面積: 351.69平方米




平面圖



一 層:門廳、客廳(中空)、臥室(附衛生間)、臥室、廚房、餐廳、衛生間
二 層:客廳(附露臺)、臥室(附衛生間,陽臺)、臥室(附書房)、臥室、衛生間
三 層:健身房、臥室(附衛生間)、臥室、衛生間、露臺
建房案例實拍圖

編號: DC0055
層數: 三層
結構形式: 磚混結構
主體造價: 40-45萬
開間: 15.6米
進深: 10.3米
占地面積:143.38平方米
建筑面積:435.4平方米


平面圖



一 層:堂屋、客廳、臥室(附衛生間)、廚房、餐廳、衛生間、車庫
二 層:起居室、臥室(附陽臺)、臥室(附衛生間)、2臥室、衛生間、陽臺
三 層:起居室、娛樂廳、臥室(附衛生間)、書房(附陽臺)、衛生間、露臺
建房案例實拍圖

編號: DC0159
層數: 二層
結構形式: 磚混結構
主體造價: 24-28萬
開間: 14.34米
進深: 11.34米
占地面積: 157.59平方米
建筑面積: 290.71平方米

一 層: 門廳、客廳、2臥室、廚房、餐廳、衛生間、車庫
二 層: 主臥室(附衛生間,陽臺)、臥室(附陽臺)、臥室(附書房)、臥室、棋牌室、衛生間
建房案例實拍圖


編號: DC0219
層數: 三層
結構形式: 框架結構
主體造價: 30-35萬
開間: 11.7米
進深: 12米
占地面積: 138.16平方米
建筑面積: 352.46平方米

平面圖

一 層:客廳、臥室(附衛生間)、臥室、廚房、餐廳、衛生間
二 層:客廳、臥室(附衛生間)、臥室、兒童房、棋牌室、衛生間、露臺
三 層:臥室(附書房)、臥室、衛生間、露臺
建房案例實拍圖

編號: DC0189
層數: 一層帶閣樓
結構形式: 磚混結構
主體造價: 16-20萬
開間: 14.04米
進深: 11.34米
占地面積: 144.36平方米
建筑面積: 210.69平方米

平面圖

一 層:客廳、臥室(附衛生間)、2臥室、廚房、餐廳、衛生間
閣 樓:臥室、雜物間
建房案例實拍圖

編號: DC0230
層數: 二層
結構形式: 磚混結構
主體造價: 22-27萬
開間: 11.1米
進深: 11.4米
占地面積: 123.09平方米
建筑面積: 207.43平方米

一 層:玄關、客廳、臥室、廚房、餐廳、儲藏室、衛生間、車庫
二 層:臥室(附衛生間)、臥室(附衣帽間)、臥室、衛生間、露臺
建房案例實拍圖

以上的別墅案例都是來自客戶的真實案例,有精致的一層,有氣派的歐式,更有時尚的現代戶型,這些小別墅都充滿著溫馨之感,適宜老百姓回農村自建。在古樸鄉村蓋一棟精巧別墅,就是最好的選擇。如果你也喜歡這些戶型,可以聯系我們咨詢圖紙哦~
.jpg)
本文由別墅圖紙超市編輯發布,如需了解更多,可登錄網站主頁http://m.wxtmjd.cn/,或者撥打我們的免費電話400-8080-889在線咨詢。
>>>>推薦閱讀:35款定制案例,風格多樣造型獨一無二,好設計才能建出好別墅!
>>>>推薦閱讀:15套二層、三層帶堂屋的農村別墅設計,農村建房有它們就夠了!
>>>>推薦閱讀:10款經典火爆的農村自建別墅,建成后的實物圖比效果圖還美!











