15套二層、三層帶堂屋的農村別墅設計,農村建房有它們就夠了!
在我們的工作中,經常遇到咨詢帶堂屋設計要求的。堂屋作為農村自建房的一個特色功能區域,承載了很多的作用,比如接待賓客,又比如行吉兇之禮,孝敬先人,舉辦紅白喜事等。足可見堂屋對農村人的重大意義。今天小編就給大家分享15套二層或三層帶堂屋的農村別墅設計,農村建房有它們就夠了!
編號: DC0012
層數: 二層
結構形式: 磚混結構
主體造價: 18-22萬
開間: 12.6米
進深: 10.1米
占地面積: 111.35平方米
建筑面積: 253.1平方米
首層戶型:
一 層: 堂屋、客廳、臥室、廚房、餐廳、衛生間
二 層: 客廳(附陽臺)、棋牌室、臥室(附陽臺)、2臥室、衛生間
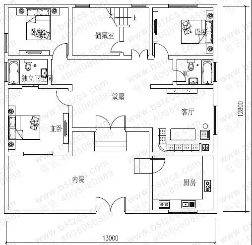
編號: DC0101
層數: 二層
結構形式: 磚混結構
主體造價: 18-22萬
開間: 13米
進深: 12.8米
占地面積: 172.65平方米
建筑面積: 250.95平方米
首層戶型:
一 層: 內院、堂屋、客廳、臥室(附衛生間)、2臥室、廚房、儲藏室、衛生間
二 層: 客廳、主臥(附衛生間,露臺)、3臥室、衛生間
編號: DC0102
層數: 二層帶閣樓
結構形式: 磚混結構
主體造價: 23-28萬
開間: 13米
進深: 10.6米
占地面積: 137.9平方米
建筑面積: 272.7平方米
首層戶型:
一 層: 堂屋、客廳、主臥(附衛生間)、臥室、廚房、餐廳、儲藏室、衛生間
二 層: 客廳(附陽臺)、主臥(附衛生間)、3臥室、衛生間
閣 樓: 儲藏間
編號: DC0283
層數: 二層
結構形式: 磚混結構
主體造價: 20-25萬
開間: 11米
進深: 9.6米
占地面積: 112.72平方米
建筑面積: 257.77平方米
首層戶型:
一 層: 堂屋、客廳、2臥室、廚房、餐廳、衛生間
二 層: 客廳(附陽臺)、臥室(附書房)、3臥室、衛生間
編號: DC0282
層數: 二層
結構形式: 磚混結構
主體造價: 16-20萬
開間: 12米
進深: 8米
占地面積: 100.86平方米
建筑面積: 227.77平方米
首層戶型:
一 層: 堂屋、客廳、臥室、廚房、餐廳、衛生間
二 層: 客廳(附陽臺)、臥室(附陽臺)、臥室、兒童房、書房、衛生間
編號: DC0311
層數: 二層
結構形式: 框架結構
主體造價: 30-36萬
開間: 14.1米
進深: 12.9米
占地面積: 151.39平方米
建筑面積: 357.24平方米
首層戶型:
一 層: 走廊、堂屋、客廳、臥室、廚房、餐廳、儲藏室、衛生間
二 層: 客廳(附陽臺)、娛樂室、臥室(附衛生間)、臥室、書房、衛生間
編號: DC0303
層數: 二層
結構形式: 磚混結構
主體造價: 35-40萬
開間: 16.2米
進深: 11.4米
占地面積: 191.36平方米
建筑面積: 458.79平方米
首層戶型:
一 層: 堂屋、客廳、臥室(附衣帽間,衛生間)、臥室、廚房、餐廳、衛生間、車庫
二 層: 客廳(附陽臺)、臥室(附衣帽間,衛生間)、4臥室、書房、衛生間
編號: DC0287
層數: 二層
結構形式: 框架結構
主體造價: 25-30萬
開間: 12.3米
進深: 11.1米
占地面積: 130平方米
建筑面積: 295.19平方米
首層戶型:
一 層: 走廊、堂屋、客廳、2臥室、廚房、餐廳、衛生間、儲藏室
二 層: 客廳(附露臺)、臥室(附書房,露臺)、臥室(附露臺)、臥室、衛生間
編號: DC0353
層數: 三層
結構形式: 框架結構
主體造價: 40-45萬
開間: 14米
進深: 13.8米
占地面積: 196.66平方米
建筑面積: 434.81平方米
一層戶型:
二層戶型:
三層戶型:
一 層:走廊、堂屋、客廳(中空)、會客室(附內陽臺)、臥室(附衛生間)、廚房、餐廳、衛生間
二 層:小客廳(附陽臺)、臥室(附衛生間,露臺)、臥室(附書房)、臥室、衛生間
三 層:活動室、臥室(附衛生間)、臥室(附書房)、衛生間、陽臺、露臺
編號: DC0318
層數: 三層
結構形式: 框架結構
主體造價: 45-50萬
開間: 16.2米
進深: 10.6米
占地面積: 165.79平方米
建筑面積: 412.61平方米
首層戶型:
一 層:堂屋、客廳(中空)、臥室、廚房、餐廳、衛生間、儲藏室、車庫
二 層:客廳、臥室(附露臺)、3臥室、衛生間
三 層:客廳、2臥室、娛樂室、衛生間、露臺
編號: DC0285
層數: 三層
結構形式: 框架結構
主體造價: 40-45萬
開間: 15.9米
進深: 10.5米
占地面積: 155.5平方米
建筑面積: 431.12平方米
首層戶型:
一 層: 堂屋、客廳、臥室(附衛生間)、廚房、餐廳、儲藏室、衛生間、車庫
二 層: 客廳(附陽臺)、臥室(附衛生間)、臥室(附陽臺)、臥室(附衣帽間)、臥室、書房(附陽臺)、衛生間
三 層: 客廳(附陽臺)、臥室、娛樂室、衛生間、露臺
編號: DC0276
層數: 三層
結構形式: 框架結構
主體造價: 25-30萬
開間: 12米
進深: 9.3米
占地面積: 97.58平方米
建筑面積: 275.41平方米
首層戶型:
一 層:堂屋、客廳、臥室、廚房、餐廳、儲藏室、衛生間
二 層:起居室、娛樂室、臥室(附陽臺)、臥室、衛生間、露臺
三 層:3臥室、衛生間、露臺
編號: DC0270
層數: 三層
結構形式: 框架結構
主體造價: 36-42萬
開間: 14.4米
進深: 13.574米
占地面積: 153.35平方米
建筑面積: 439.63平方米
首層戶型:
一 層:堂屋、客廳、娛樂室、臥室(附衛生間)、臥室、廚房(附陽臺)、餐廳、衛生間
二 層:客廳、娛樂室、臥室(附衛生間)、臥室(附陽臺)、2臥室、書房(附陽臺)、衛生間
三 層:客廳、娛樂室(附陽臺)、2臥室、衛生間、露臺
編號: DC0252
層數: 三層
結構形式: 磚混結構
主體造價: 25-30萬
開間: 13.4米
進深: 11.7米
占地面積: 132.18平方米
建筑面積: 361.36平方米
首層戶型:
一 層:堂屋、客廳、2臥室、廚房(兼餐廳)、衛生間
二 層:起居室(附陽臺)、臥室(附衛生間)、臥室(附陽臺)、2臥室、衛生間
三 層:臥室(附衛生間)、臥室(附露臺)、臥室、衛生間、露臺
編號: DC0028
層數: 三層
結構形式: 磚混結構
主體造價: 22-26萬
開間: 11.5米
進深: 10.5米
占地面積: 121.03平方米
建筑面積: 312.31平方米
首層戶型:
一 層: 堂屋、客廳、老人房(附衛生間)、娛樂室、廚房、餐廳、農具間、衛生間
二 層: 客廳、2臥室(附陽臺)、2臥室、2衛生間
三 層: 2臥室(附陽臺)、臥室、衛生間、露臺
.jpg)
本文由別墅圖紙超市編輯發布,如需了解更多,可登錄網站主頁http://m.wxtmjd.cn/,或者撥打我們的免費電話400-8080-889在線咨詢。
>>>>推薦閱讀:10款進深12米農村別墅,不可錯過的戶型,蓋一棟值了!
>>>>推薦閱讀:10款占地100平左右農村別墅,小宅地基建大氣別墅就這么簡單!
>>>>推薦閱讀:15款定制小別墅讓你愛上農村,第2套低調貴氣,第12套最豪華











