12套歐式自建別墅,任意一棟都精致大氣,農村生活一樣舒適有品味!
在寸土寸金的城市里,隨著農村自建房逐漸發展成熟,越來越多的人愿意回到農村,在農村建一棟洋房別墅真算不上什么新鮮事兒了。有山,有水,有花草和家,日出而作,日落而息,這才是我們理想中的生活。今天這12套歐式自建別墅,任意一棟都精致大氣,農村生活一樣過的舒適有品味,不比城里差!
歐式三層旋轉樓梯別墅

編號: DC0380
結構形式: 框架結構
開間: 12.2米 進深: 12.8米
占地面積: 150.95平方米
建筑面積: 364.41平方米
主體造價: 40-50萬



一 層:堂屋、客廳(中空)、臥室(附衛生間)、臥室(附衣帽間)、廚房、餐廳、衛生間
二 層:起居廳(附陽臺)、臥室(附衣帽間,衛生間)、臥室、衛生間、露臺
三 層:起居廳、臥室(附露臺)、臥室、衛生間、露臺
三層歐式自建別墅

編號: DC0055
結構形式: 磚混結構
開間: 15.6米 進深: 10.3米
占地面積:143.38平方米
建筑面積:435.4平方米
主體造價: 40-45萬



一 層:堂屋、客廳、臥室(附衛生間)、廚房、餐廳、衛生間、車庫
二 層:起居室、臥室(附陽臺)、臥室(附衛生間)、2臥室、衛生間、陽臺
三 層:起居室、娛樂廳、臥室(附衛生間)、書房(附陽臺)、衛生間、露臺
錯層歐式三層半別墅

編號: DC0080
結構形式: 框架結構
開間: 11.7米 進深: 12.9米
占地面積: 120.1平方米
建筑面積: 316.66平方米
主體造價: 40-50萬
首層戶型:

一 層:玄關、客廳、臥室、廚房、餐廳、2衛生間、車庫(附儲藏間)
二 層:臥室(附衛生間,陽臺)、臥室、衛生間
三 層:臥室(附更衣間,衛生間,陽臺)、臥室(附書房)、臥室、娛樂室(附露臺)、衛生間
四 層:多功能廳(附陽臺)、露臺
三層大氣旋轉樓梯復式別墅


編號: DC0216
結構形式: 框架結構
開間: 12.9米 進深: 9.8米
占地面積: 124.19平方米
建筑面積: 337.42平方米
主體造價: 35-40萬
首層戶型:

一 層:門廳、客廳(中空)、2臥室、廚房、餐廳、衛生間
二 層:起居室、2臥室、棋牌室、衛生間
三 層:主臥(附書房,衣帽間,衛生間,陽臺)、臥室、洗衣房、衛生間、露臺
二層歐式小別墅設計

編號: DC0299
結構形式: 框架結構
開間: 12.6米 進深: 13.318米
占地面積: 161.48平方米
建筑面積: 381.05平方米
主體造價: 30-36萬
首層戶型:

一 層:門廳、客廳、臥室(附衛生間)、臥室、廚房、餐廳、衛生間
二 層:起居室、臥室(附書房,露臺,衣帽間,衛生間)、2臥室、衛生間
二層復式帶車庫別墅設計

編號: DC0351
結構形式: 磚混結構
開間: 11.8米 進深: 11.1米
占地面積: 132.86平方米
建筑面積: 325.38平方米
主體造價: 25-30萬
首層戶型:

二層戶型:

一 層:玄關、客廳(中空)、臥室、廚房、餐廳、儲藏室、衛生間、車庫
二 層:客廳、棋牌室(附陽臺)、臥室(附衛生間)、2臥室、衛生間
漂亮豪華三層帶露臺歐式別墅


編號: DC0218
結構形式: 框架結構
開間: 11.8米 進深: 12.5米
占地面積: 134.94平方米
建筑面積: 360.63平方米
主體造價: 35-42萬
首層戶型:

一 層:客廳(中空)、臥室(附衛生間)、棋牌室、廚房、餐廳、衛生間
二 層:會客廳(附露臺)、多功能廳、臥室(附衛生間)、2臥室、衛生間
三 層:多功能廳、棋牌室、臥室(附衛生間)、2臥室、衛生間、露臺
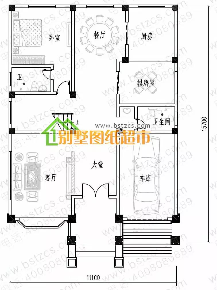
四層帶露臺框架結構大氣豪華別墅

編號: DC0018
結構形式: 框架結構
開間: 11.1米 進深: 15.7米
占地面積: 158.52平方米
建筑面積: 543.98平方米
主體造價: 50萬以上
首層戶型:

一 層:客廳(中空)、臥室(附衛生間)、棋牌室、廚房、餐廳、衛生間、車庫
二 層:起居室、臥室(附衛生間,陽臺)、2臥室、書房(附陽臺)、衛生間
三 層:影音室(附陽臺)、臥室(附衛生間)、2臥室、書房(附陽臺)、衛生間
四 層:臥室(附衛生間)、臥室、娛樂間(附露臺)、衛生間、露臺
復式三層自建別墅

編號: DC0332
結構形式: 框架結構
開間: 12米 進深: 12.8米
占地面積: 149.81平方米
建筑面積: 442.78平方米
主體造價: 40-45萬
首層戶型:

二層戶型:

三層戶型:

一 層:門廳、客廳(中空)、臥室(附衛生間)、臥室、廚房、餐廳、衛生間
二 層:起居室、休息區(附露臺)、臥室(附衛生間)、臥室(附露臺)、臥室、衛生間
三 層:健身廳、臥室(附書房,衛生間)、臥室(附露臺)、臥室、衛生間、露臺
大氣三層帶屋頂平臺歐式別墅

編號: DC0316
結構形式: 框架結構
開間: 14.7米 進深: 11.1米
占地面積: 154.95平方米
建筑面積: 487.39平方米
主體造價: 44-50萬
首層戶型:

一 層:門廳、客廳(中空)、臥室(附衛生間)、臥室、棋牌室、廚房、餐廳、衛生間
二 層:起居室、主臥(附書房,衣帽間,衛生間,陽臺)、2臥室、衛生間
三 層:健身廳、臥室(附陽臺)、臥室(附衣帽間)、2臥室、衛生間、陽臺
頂 層:露臺
漂亮三層復式別墅

編號: DC0217
結構形式: 框架結構
開間: 11.94米 進深: 13.64米
占地面積: 150.77平方米
建筑面積: 398.05平方米
主體造價: 35-40萬
首層戶型:

一 層:客廳、休閑廳(中空)、臥室、廚房、餐廳、儲藏室、衛生間
二 層:主臥(附衣帽間,衛生間)、2臥室、衛生間
三 層:活動室、2臥室、書房、衛生間、露臺
歐式四層豪華別墅

編號: DC0344
結構形式: 框架結構
開間: 13.2米 進深: 15.1米
占地面積: 179.10平方米
建筑面積: 703.30平方米
主體造價: 50萬以上
首層戶型:

二層戶型:

三層戶型:

四層戶型:

一 層:門廳、客廳(中空)、臥室(附衛生間)、2臥室、廚房、餐廳、衛生間
二 層:起居室、休息區(附陽臺)、臥室(附衛生間)、臥室(附陽臺)、2臥室、衛生間
三 層:起居室、臥室(附書房,衣帽間,衛生間)、臥室(附衣帽間,內陽臺)、臥室(附陽臺)、2臥室、衛生間
四 層:健身廳、臥室(附衣帽間,內陽臺)、臥室(附露臺)、書房、衛生間、露臺
問為什么大家都想回農村建房?其實也很簡單,城市再大再好總是沒有歸屬感,只有這生咱養咱的才是家鄉!
.jpg)
本文由別墅圖紙超市編輯發布,如需了解更多,可登錄網站主頁http://m.wxtmjd.cn/,或者撥打我們的免費電話400-8080-889在線咨詢。
>>>>推薦閱讀:精選10款帶煙囪設計自建別墅,鄉村風味最經典!
>>>>推薦閱讀:10款簡潔大方經濟型三層自建別墅,第1款造價20萬,第6款最漂亮!
>>>>推薦閱讀:22款定制風格的農村別墅,隨便建一套都驚艷!











