6款進深8米的農村別墅設計圖紙,真正的經濟又實用!
對于只獲批到小宅基地的朋友來講,能找到一款適合自家宅基地的戶型設計圖是件很難得的事情。畢竟進深只有8米的話,房子怎樣設計的比較好看又得費點心思了,其實對于這樣的朋友,你完全可以把房子設計的事交給專業的公司來做。今天,小編就為大家介紹我們公司的6款進深8米的農村別墅設計圖紙,真正的經濟又實用!
編號: DC0282
層數: 二層
結構形式: 磚混結構
主體造價: 16-20萬
開間: 12米
進深: 8米
占地面積: 100.86平方米
建筑面積: 227.77平方米
.jpg)
.jpg)
一 層: 堂屋、客廳、臥室、廚房、餐廳、衛生間
二 層: 客廳(附陽臺)、臥室(附陽臺)、臥室、兒童房、書房、衛生間
編號: DC0273
層數: 二層
結構形式: 磚混結構
主體造價: 16-20萬
開間: 10.5米
進深: 8米
占地面積: 88.5平方米
建筑面積: 204.82平方米
.jpg)
.jpg)
一 層: 客廳、臥室、廚房、餐廳、儲藏室、衛生間
二 層: 3臥室、書房(附陽臺)、衛生間
編號: DC0224
層數: 二層
結構形式: 磚混結構
主體造價: 16-20萬
開間: 10米
進深: 8米
占地面積: 79.29平方米
建筑面積: 152.55平方米
.jpg)
.jpg)
一 層: 玄關、客廳、臥室、廚房、餐廳、衛生間
二 層: 客廳、休閑廳、臥室(附陽臺)、2臥室、衛生間
閣 樓: 儲藏間
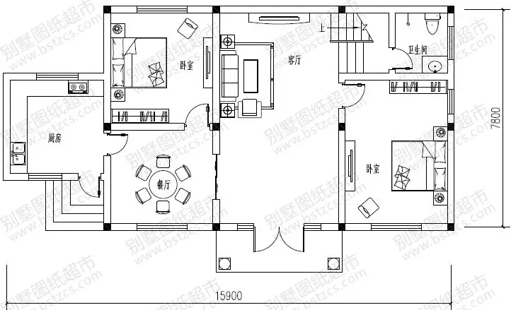
編號: DC0212
層數: 二層
結構形式: 磚混結構
主體造價: 16-20萬
開間: 15.9米
進深: 7.8米
占地面積: 114.65平方米
建筑面積: 201.43平方米
.jpg)
.jpg)
.jpg)
一 層: 客廳、2臥室、廚房、餐廳、衛生間
二 層: 客廳、臥室(附書房,衛生間)、臥室、衛生間、露臺
編號: DC0256
層數: 三層
結構形式: 磚混結構
主體造價: 22-26萬
開間: 14米
進深: 8米
占地面積: 115.12平方米
建筑面積: 296.57平方米
.jpg)
.jpg)
一 層: 客廳、臥室、廚房、餐廳、衛生間、車庫(兼儲藏室)
二 層: 客廳、休息區、臥室(附露臺)、3臥室、衛生間
三 層: 3臥室、衛生間、2露臺
編號: DC0196
層數: 三層
結構形式: 磚混結構
主體造價: 18-22萬
開間: 12.84米
進深: 8米
占地面積: 89.76平方米
建筑面積: 219.86平方米
.jpg)
.jpg)
一 層: 客廳、臥室、廚房、餐廳、衛生間
二 層: 主臥(附衣帽間,露臺)、臥室、書房、衛生間
三 層: 2臥室、衛生間、露臺
.jpg)
本文由別墅圖紙超市編輯發布,如需了解更多,可登錄網站主頁http://m.wxtmjd.cn/,或者撥打我們的免費電話400-8080-889在線咨詢。
>>>>推薦閱讀:回鄉建房可選的10套別墅設計,第5款被稱為最美雙拼!
>>>>推薦閱讀:6套實用的別墅戶型一定要看,第4套含9個臥室,好圖紙建好房!
>>>>推薦閱讀:6套高品質的別墅設計,圓您農村別墅夢,建成后人人都夸好!











