【分享】夫妻借錢回家自建三層別墅,45萬圓夢理想住宅!
對于土生土長的農村朋友來講,家鄉的誘惑是無窮盡的,不管在外工作多少年,都覺得還是自己的家鄉好,更何況是根本就沒打算去城里工作的朋友了。今天帶來建房分享的這對夫妻就是這樣的,他們兩人都在農村工作,農村出身農村成長,并且壓根就不打算去城里工作,所以打算在鄉下自建房。于是夫妻二人從籌備借錢開始,在鄉下建起了三層小別墅。
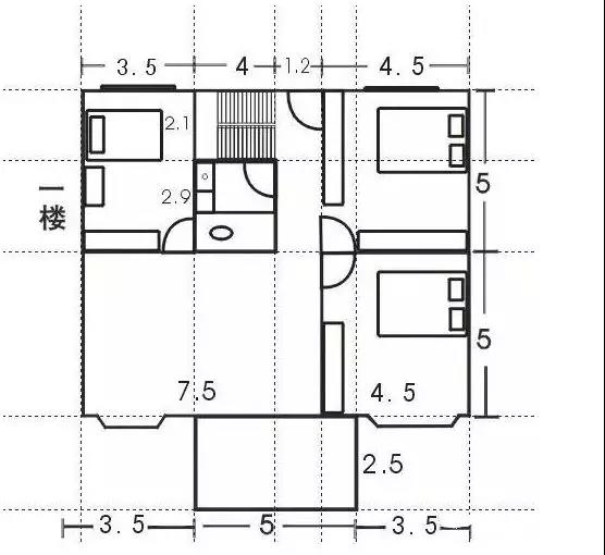
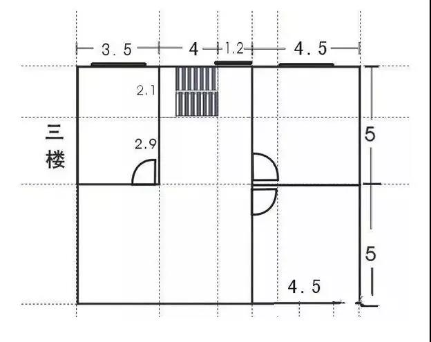
效果圖




先發個成品建成圖的照片吧。

再來幾張特寫。



下面就從動工開始吧,聽說這兩年土地特別緊張,我又是家里的獨子,我如果不在家里做房子,等我的父母百年之后我在村里就沒有土地了。


但是如果現在做了房子的話情況就不一樣了,聽說農村的房子也可以登記了。好吧,心動不如行動,說干就干吧!動工了,破土了,好緊張。

到了九月開學的時候終于做好了一層了,封頂后再做第二層。

接著就快了第三層開始了,封頂完工了。

這里要特別強調,這位樓主是手工達人,上面房子封頂就這樣,然后上面的瓦片,檐子都是自己做的。

下面我們來看看里面是怎么弄的。相信很多人都多少有點經歷,畢竟城里買房子也是要裝修的吧。
這是廚房,師傅正在打灶臺,還有櫥窗,這個人一天就可以完工,大概1000元,也就是說他1000元/天。這樣的廚房灶臺,很實用的。

這是樓梯下面做了個鞋柜,很實用,可以放很多東西,大贊一個。

這是衛生間,再次順便強調,兩層衛生間的吊頂都是自己吊的,可能不怎么平整,見諒!

這是孩子的房間,藍色的,他自己點的。

樓主的臥室,哈哈,看到墻上的美女沒?自己畫的,房主也是個有才的人。

前后兩間房就用這家伙隔開的,雙面壁櫥,大氣實用,贊一個。

半成品電視墻,也是自己設計的,好看嗎,等下再找找成片的。

樓上客廳的沙發,簡單大方。

最愛榻榻米,又是書房加書架。喜歡嗎?還有一個小小的桌子,對,也是自己親手做的。

這個應該好多人喜歡,麻將機,過年必備。

三樓陽臺隔熱

樓梯扶手

.jpg)
本文由別墅圖紙超市編輯發布,如需了解更多,可登錄網站主頁http://m.wxtmjd.cn/,或者撥打我們的免費電話400-8080-889在線咨詢。
>>>>推薦閱讀:帶雙露臺的二層別墅,5款案例讓你知道有多受歡迎!
>>>>推薦閱讀:面寬12米農村建房,13款經典實用戶型,辛苦打拼要建好房子!
>>>>推薦閱讀:建房:100萬在農村建帶庭院別墅,比起城市這里依山傍水真幸福!











