占地120平農村別墅怎么建?這12套別墅戶型,建過的都說好!
我們都知道農村自建房不能像以前那般隨意,想建就建的,需要走合理的途徑批到宅基地后再開建,如今宅基地不僅越來越難審批,而且規定面積不能超過120平,高度也有所限制,基本上最高也只能建三層,今天小編就給大家介紹12款占地面積在120平米左右的農村別墅,買回去建的人都說好!
農村二層帶露臺小別墅
.jpg)
編號: DC0212
結構形式: 磚混結構
主體造價: 16-20萬
開間: 15.9米 進深: 7.8米
占地面積: 114.65平方米
建筑面積: 201.43平方米
首層戶型:
.jpg)
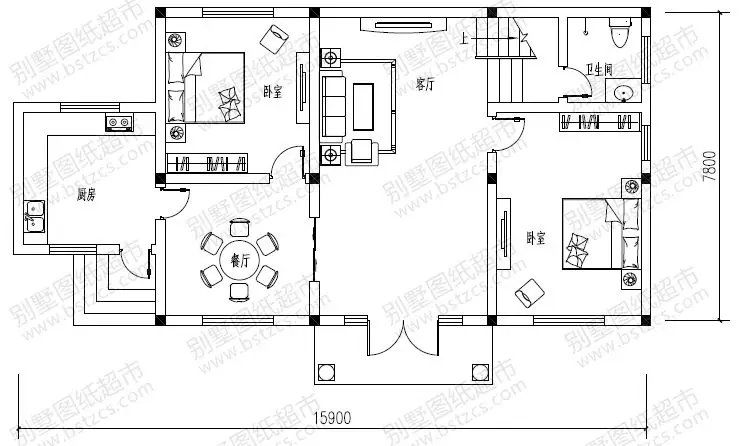
一 層:客廳、2臥室、廚房、餐廳、衛生間
二 層:客廳、臥室(附書房,衛生間)、臥室、衛生間、露臺
新農村三層帶陽臺別墅
.jpg)
編號: DC0019
結構形式: 磚混結構
主體造價: 22-28萬
開間: 14.2米 進深: 8.4米
占地面積: 116.48平方米
建筑面積: 308.78平方米
首層戶型:
.jpg)
一 層:客廳、臥室(附衣帽間)、廚房(附儲藏間)、餐廳、洗衣間、衛生間;
二 層:客廳(附陽臺)、臥室(附衣帽間)、2臥室、衛生間
三 層:客廳(附陽臺)、臥室(附衣帽間)、臥室、衛生間、露臺
三層帶車庫新農村房屋
.jpg)
.jpg)
編號: DC0157
結構形式: 磚混結構
主體造價: 22-26萬
開間: 11.04米 進深: 11.94米
占地面積: 116.7平方米
建筑面積: 325.01平方米
首層戶型:
.jpg)
一 層:走廊、客廳、臥室、廚房、餐廳、衛生間、車庫
二 層:客廳(附陽臺)、主臥(附衣帽間,衛生間)、2臥室、衛生間
三 層:客廳(附陽臺)、2臥室、衛生間、露臺
三層農村平頂別墅
.jpg)
編號: DC0125
結構形式: 框架結構
主體造價: 30-35萬
開間: 10.7米 進深: 12.6米
占地面積: 127.99平方米
建筑面積: 385.92平方米
首層戶型:
.jpg)
一 層:客廳、臥室(附衛生間)、娛樂室、廚房、餐廳、儲藏間、衛生間
二 層:客廳(附陽臺)、主臥(附衛生間)、2臥室、衛生間
三 層:家庭活動室、2臥室、衛生間、屋面露臺
復式三層帶車庫大氣別墅
.jpg)
編號: DC0205
結構形式: 框架結構
主體造價: 25-30萬
開間: 13.4米 進深: 10.2米
占地面積: 119平方米
建筑面積: 297.6平方米
首層戶型:
.jpg)
一 層:入口玄關、客廳、廚房、餐廳、衛生間、車庫
二 層:起居室、臥室(附陽臺)、臥室、書房、衛生間
三 層:起居室、主臥(附陽臺)、臥室(附陽臺)、書房、衛生間、露臺
漂亮實用三層簡歐小別墅
.jpg)
.jpg)
編號: DC0243
結構形式: 框架結構
主體造價: 25-32萬
開間: 11米 進深: 11.3米
占地面積: 120.85平方米
建筑面積: 307.63平方米
首層戶型:
.jpg)
一 層:客廳、臥室、廚房、餐廳、衛生間、車庫或儲藏室
二 層:客廳、臥室(附衛生間)、2臥室、書房(附陽臺)、衛生間、陽臺
三 層:2臥室(附衛生間)、露臺
二層帶閣樓大氣別墅
.jpg)
編號: DC0171
結構形式: 框架結構
主體造價: 22-26萬
開間: 12.44米 進深: 12.24米
占地面積: 124.54平方米
建筑面積: 255.36平方米
首層戶型:
.jpg)
一 層:玄關、客廳、臥室、廚房、餐廳、儲藏室、衛生間
二 層:家庭室(附陽臺)、臥室(附更衣間,衛生間)、2臥室、衛生間
閣 樓:儲藏間
二層帶閣樓別墅設計
.jpg)
編號: DC0079
結構形式: 磚混結構
主體造價: 24-28萬
開間: 12米 進深: 10.8米
占地面積:126.43平方米
建筑面積:312.77平方米
首層戶型:
.jpg)
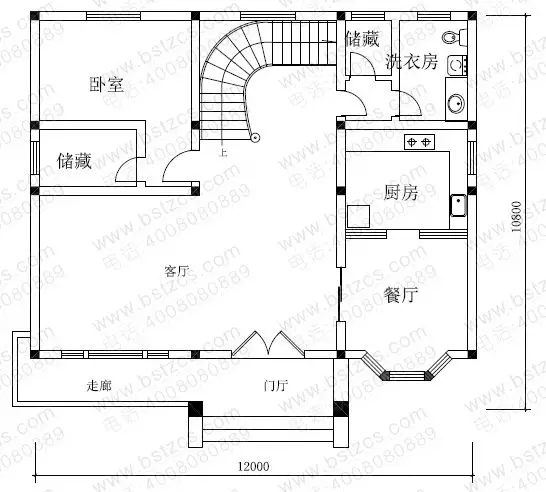
一 層:走廊、客廳、臥室(附儲藏間)、廚房、 餐廳、儲藏間、衛生間
二 層:主臥(附書房,衛生間)、臥室(附陽臺 )、臥室、走入式衣柜、衛生間
閣 樓:儲藏間
三層復式帶車庫農村別墅
.jpg)
編號: DC0076
結構形式: 磚混結構
主體造價: 24-28萬
開間: 11.7米 進深: 11.1米
占地面積: 125.93平方米
建筑面積: 303.96平方米
首層戶型:
.jpg)
一 層:客廳(中空)、臥室、廚房、餐廳、衛生間、車庫
二 層:小客廳、臥室(附陽臺)、2臥室、衛生間
三 層:小客廳、臥室(附陽臺)、2臥室、衛生間、露臺
三層帶大陽臺農村別墅
.jpg)
編號: DC0258
結構形式: 磚混結構
主體造價: 25-30萬
開間: 11米 進深: 11米
占地面積: 126.34平方米
建筑面積: 342.86平方米
首層戶型:
.jpg)
一 層:客廳、臥室、廚房、餐廳、洗衣房、衛生間
二 層:起居室、臥室(附陽臺)、臥室(附衛生間)、臥室、棋牌室(附陽臺)、衛生間
三 層:娛樂廳、臥室(附陽臺)、臥室、衛生間、露臺
帶車庫二層半農村別墅
.jpg)
.jpg)
編號: DC0172
結構形式: 磚混結構
主體造價: 22-27萬
開間: 11.74米 進深: 10.34米
占地面積: 117.85平方米
建筑面積: 307.92平方米
首層戶型:
.jpg)
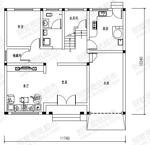
一 層:堂屋、客廳、臥室、廚房(兼餐廳)、儲藏間、農具間、衛生間、車庫
二 層:客廳、臥室(附陽臺)、2臥室(附共用衛生間)、臥室、儲藏間、衛生間
三 層:臥室(附陽臺)、2臥室、儲藏間、衛生間、露臺
新農村二層帶陽臺小別墅
.jpg)
編號: DC0242
結構形式: 磚混結構
主體造價: 18-24萬
開間: 11.1米 進深: 12米
占地面積: 123.05平方米
建筑面積: 246.1平方米
首層戶型:
.jpg)
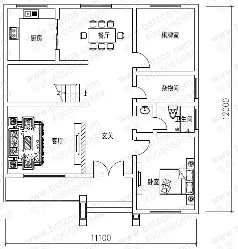
一 層:客廳、臥室、棋牌室(或臥室)、廚房、餐廳、雜物間、衛生間
二 層:小客廳、臥室(附衛生間)、2臥室、書房(或臥室)、衛生間、陽臺
上面這12款農村別墅是現在流行的戶型,造型簡約時尚,室內布局和功能滿足現代人們的需求,先看看再說,好戶型就是值得建造,房子可能是要住一輩子的。
.jpg)
本文由別墅圖紙超市編輯發布,如需了解更多,可登錄網站主頁http://m.wxtmjd.cn/,或者撥打我們的免費電話400-8080-889在線咨詢。
>>>>推薦閱讀:造價22萬的9款鄉村別墅,每一棟都精心設計,經典別致!
>>>>推薦閱讀:16款定制設計款農村別墅,花大價錢設計的圖紙到底值不值?
>>>>推薦閱讀:7款廚房帶后門的農村別墅,適合農村的生活習慣,值得收藏!











