10套占地130平農村別墅,二層三層都有,下半年建房不愁了!
現在農村建房很多地方都對宅基地有所要求,一般太大的宅基地都很難審核,小編通過了解得知有很多地方規定的宅基地大小差不多是130平米。
于是小編整理了10套占地130平米左右的的別墅圖紙給大家分享,2層、3層的都有,下半年回老家建房的戶型不愁了!
農村二層復式帶露臺別墅
.jpg)
.jpg)
編號: DC0250
結構形式: 磚混結構
主體造價: 20-25萬
開間: 11.34米 進深: 13.31米
占地面積: 136.40平方米
建筑面積: 254.44平方米
平面戶型:
.jpg)
.jpg)
.jpg)
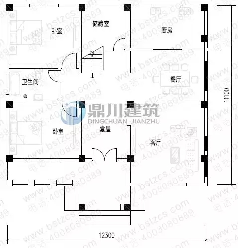
一 層:客廳、臥室(附衛生間)、臥室、儲藏室、廚房、餐廳、衛生間
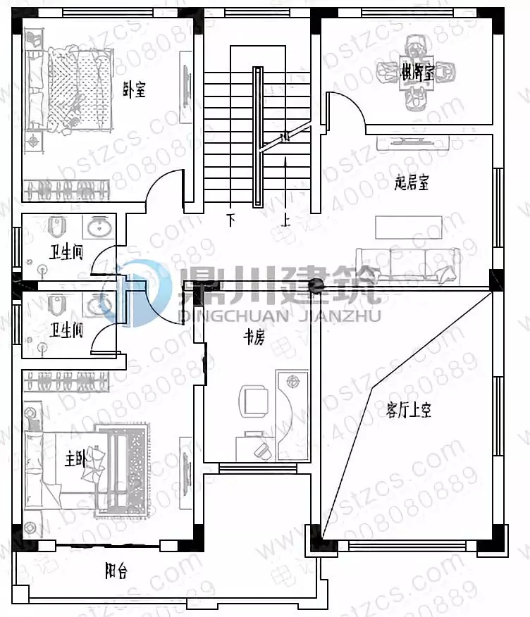
二 層:休息區(附陽臺)、臥室(附衛生間)、2臥室、書房、衛生間
頂 層:露臺
建成案例:
.jpg)
農村三層帶露臺小別墅
.jpg)
編號: DC0388
結構形式: 磚混結構
主體造價: 30-40萬
開間: 11.4米 進深: 11米
占地面積: 123.67平方米
建筑面積: 336.22平方米
平面戶型:
.jpg)
.jpg)
.jpg)
一 層:門廳、客廳、臥室(附衛生間)、娛樂室、儲藏室、廚房、餐廳、衛生間
二 層:起居廳、書房(附露臺)、臥室(附衛生間)、2臥室、衛生間
三 層:活動室、2臥室、衛生間、露臺
復式三層帶露臺簡歐小別墅
.jpg)
.jpg)
.jpg)
編號: DC0361
結構形式: 磚混結構
主體造價: 30-35萬
開間: 11米 進深: 12米
占地面積: 138.34平方米
建筑面積: 351.69平方米
平面戶型:
.jpg)
.jpg)
.jpg)
一 層:門廳、客廳(中空)、臥室(附衛生間)、臥室、廚房、餐廳、衛生間
二 層:客廳(附露臺)、臥室(附衛生間,陽臺)、臥室(附書房)、臥室、衛生間
三 層:健身房、臥室(附衛生間)、臥室、衛生間、露臺
二層復式帶車庫別墅
.jpg)
編號: DC0351
結構形式: 磚混結構
主體造價: 25-30萬
開間: 11.8米 進深: 11.1米
占地面積: 132.86平方米
建筑面積: 325.38平方米
首層戶型:
.jpg)
二層別墅:
.jpg)
一 層:玄關、客廳(中空)、臥室、廚房、餐廳、儲藏室、衛生間、車庫
二 層:客廳、棋牌室(附陽臺)、臥室(附衛生間)、2臥室、衛生間
大氣三層歐式別墅
.jpg)
編號: DC0329
結構形式: 框架結構
主體造價: 40-45萬
開間: 11.1米 進深: 12.3米
占地面積: 137.78平方米
建筑面積: 414.19平方米
首層戶型:
.jpg)
二層戶型:
.jpg)
三層戶型:
.jpg)
一 層:門廳、客廳(中空)、臥室(附衛生間)、臥室、廚房、餐廳、衛生間
二 層:起居室、臥室(附書房,衛生間,陽臺)、臥室、棋牌室、衛生間
三 層:健身廳、臥室(附衛生間,露臺)、臥室、書房、衛生間、露臺
農村二層帶露臺小別墅
.jpg)
編號: DC0322
結構形式: 磚混結構
主體造價: 22-26萬
開間: 12.336米 進深: 12.3米
占地面積: 136.41平方米
建筑面積: 281.67平方米
首層戶型:
.jpg)
一 層:門廳、客廳、臥室(附衛生間)、臥室(附內陽臺)、廚房、餐廳、衛生間
二 層:起居室、臥室(附書房,衣帽間,衛生間)、臥室(附內陽臺)、臥室(附露臺)、衛生間、露臺
二層框架結構抗震小別墅
.jpg)
.jpg)
編號: DC0295
結構形式: 框架結構
主體造價: 25-30萬
開間: 13.7米 進深: 10.2米
占地面積: 131.03平方米
建筑面積: 291.61平方米
首層戶型:
.jpg)
一 層:玄關、客廳、臥室、棋牌室、廚房、餐廳、衛生間
二 層:客廳、休息區(附陽臺)、臥室(附書房)、2臥室、衛生間
二層帶露臺農村別墅
.jpg)
編號: DC0287
結構形式: 框架結構
主體造價: 25-30萬
開間: 12.3米 進深: 11.1米
占地面積: 130平方米
建筑面積: 295.19平方米
首層戶型:
.jpg)
一 層:走廊、堂屋、客廳、2臥室、廚房、餐廳、衛生間、儲藏室
二 層:客廳(附露臺)、臥室(附書房,露臺)、臥室(附露臺)、臥室、衛生間
三層帶車庫徽派自建房
.jpg)
編號: DC0267
結構形式: 磚混結構
主體造價: 22-28萬
開間: 10.8米 進深: 12.6米
占地面積: 135.45平方米
建筑面積: 401.47平方米
首層戶型:
.jpg)
一 層:客廳、臥室、廚房、餐廳、衛生間、車庫
二 層:客廳、臥室(附露臺)、3臥室、書房、衛生間
三 層:客廳、3臥室、書房(附露臺)、衛生間、露臺
歐式三層復式帶露臺別墅
.jpg)
編號: DC0385
結構形式: 磚混結構
主體造價: 32-42萬
開間: 10.74米 進深: 13.14米
占地面積: 130.31平方米
建筑面積: 374.83平方米
平面戶型:
.jpg)
.jpg)
.jpg)
一 層:門廳、客廳(中空)、臥室(附衛生間)、臥室、廚房、餐廳、衛生間
二 層:起居廳、臥室(附衛生間)、臥室(附書房)、臥室、衛生間、露臺
三 層:休息廳、臥室(附衛生間)、臥室(附書房)、臥室、衛生間、露臺
下半年打算回老家蓋房子,但是不知道蓋個什么樣的房子好,一家人人口不是很多也不算少,兩到三層的別墅最合適,小編給大家推薦10款占地在130平左右的農村別墅,想建房的可以收藏一下。
.jpg)
本文由別墅圖紙超市編輯發布,如需了解更多,可登錄網站主頁http://m.wxtmjd.cn/,或者撥打我們的免費電話400-8080-889在線咨詢。
>>>>推薦閱讀:8款大氣簡歐型農村別墅,私人定制更有面子!
>>>>推薦閱讀:新款推薦:這5套圖紙美觀與實用并重,好圖紙就是要符合農村生活習慣!
>>>>推薦閱讀:15款建房案例:一款更比一款美,下半年農村建房就照著這樣建!











