時尚農村二層別墅設計效果圖與建房實拍對比,不管哪個都好看!
準備建房的朋友們,你們是不是最近多了很多思慮的事啊?特別是對于建房圖紙的選購,有沒有覺得很費神呢?擔心自己看上的圖紙最后不適用你家的宅基地,擔心圖紙的建成效果不好看,擔心這擔心那的,總是覺得心里放不下!其實大家可以不那么焦慮的,看看那些效果圖與建房實拍的對比就清楚啦,千言萬語不如現實能體現嘛!接下來小編就為大家帶來一款時尚農村二層別墅設計效果圖與建房實拍對比,相信你看完也會認同不管哪個都好看的。
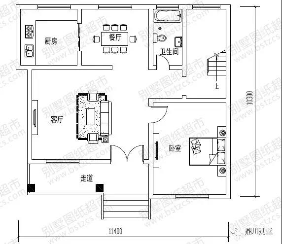
編號: DC0207
層數: 二層
結構形式: 磚混結構
主體造價: 18-22萬
開間: 11.4米
進深: 10.3米
占地面積: 105.95平方米
建筑面積: 210平方米


一 層:走廊、客廳、臥室、廚房、餐廳、衛生間
二 層:客廳(附陽臺)、臥室(附陽臺)、臥室(附書房)、臥室、衛生間
圖紙預覽:


建房實拍案例

.jpg)
本文由別墅圖紙超市編輯發布,如需了解更多,可登錄網站主頁http://m.wxtmjd.cn/,或者撥打我們的免費電話400-8080-889在線咨詢。
>>>>推薦閱讀:10款戶型嚴謹私密性強的農村別墅,布局必須給滿分!
>>>>推薦閱讀:10款占地100平左右農村別墅,小宅地基建大氣別墅就這么簡單!
>>>>推薦閱讀:12款占地不足百平的農村別墅,經濟實用,最高造價不過26萬!











