兄弟建房選雙拼別墅,這12款農村雙拼別墅,氣派有面子!
現在雙拼戶型在農村很流行,尤其是家里有兩兄弟的,宅基地只有一塊,為了公平只能蓋雙拼房子了,這種戶型兩戶拼在一起,獨棟兩門,互不影響,通常采用對稱設計,左右兩邊布局一樣,省空間又省成本,十分劃算,今天給大家分享這12款農村兄弟雙拼別墅氣派更有面子!
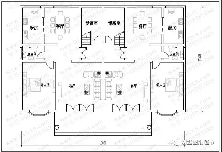
農村二層半帶露臺雙拼別墅

戶型基本信息
圖紙編號: DC0163
層數: 三層
結構形式: 磚混結構
開間: 18米 進深: 11.5米
占地面積: 214.14平方米
建筑面積: 531.58平方米
主體造價: 40-48萬
圖紙預覽:

圖紙預覽:

一 層:客廳、臥室、廚房、餐廳、儲藏室、衛生間
二 層:客廳(附陽臺)、2臥室、衛生間
三 層:2臥室、衛生間、露臺
農村二層半雙拼自建別墅

戶型基本信息
編號: DC0206
層數: 三層
結構形式: 磚混結構
開間: 18米 進深: 10.8米
占地面積: 191.4平方米
建筑面積: 462.8平方米
主體造價: 30-36萬
首層戶型:

圖紙預覽:

一 層:客廳、臥室、廚房、餐廳、儲藏室、衛生間
二 層:臥室(附陽臺)、臥室(附衣帽間)、臥室、衛生間
三 層:娛樂室、露臺
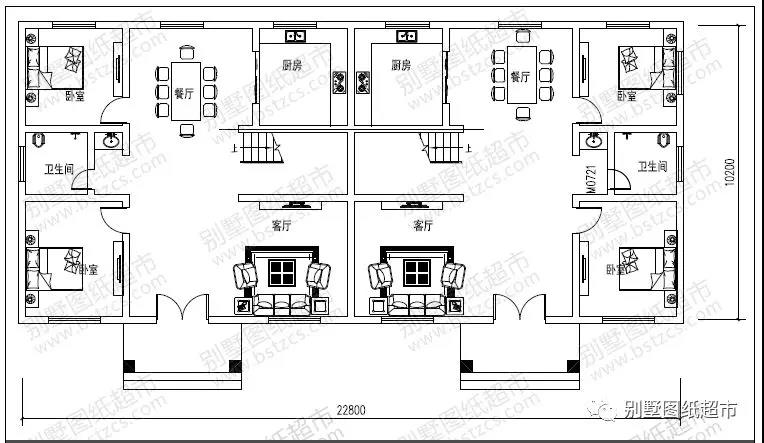
二層帶閣樓雙拼自建別墅

戶型基本信息
編號: DC0222
層數: 二層
結構形式: 磚混結構
開間: 22.8米 進深: 10.2米
占地面積: 239.66平方米
建筑面積: 599.15平方米
主體造價: 32-38萬
首層戶型:

圖紙預覽:

一 層:客廳、2臥室、廚房、餐廳、衛生間
二 層:客廳(附陽臺)、臥室(附陽臺)、3臥室、書房、衛生間
閣 樓:儲藏間
地中海風格二層雙拼別墅

戶型基本信息
編號: DC0240
層數: 二層
結構形式: 磚混結構
開間: 18.24米 進深: 11.44米
占地面積: 202.94平方米
建筑面積: 405.88平方米
主體造價: 36-42萬
首層預覽:

圖紙預覽:

一 層:客廳、臥室、廚房、餐廳、儲藏室、衛生間
二 層:客廳、臥室(附陽臺)、2臥室、書房、衛生間
豪華三層復式雙拼別墅

戶型基本信息
圖紙編號: DC0284
層數: 三層
結構形式: 框架結構
開間: 23.2米 進深: 12.1米
占地面積: 274.14平方米
建筑面積: 732.07平方米
主體造價: 50萬以上
首層戶型:

圖紙預覽:

一 層:客廳(中空)、老人房(附衛生間)、臥室、廚房、餐廳、衛生間
二 層:起居室、主臥(附衛生間,陽臺)、2臥室、書房、衛生間
三 層:健身房、主臥(附衛生間,陽臺)、臥室、衛生間、露臺
農村二層三拼別墅

三層復式三拼別墅

大氣三層雙拼別墅


農村二層帶小院雙拼別墅


豪華三層復式雙拼別墅

歐式三層雙拼別墅

二層復式三拼別墅

目前國家土地政策收緊,宅基地不好批了,很多家庭,兄弟兩人共享父母一塊宅基地,這時候建一棟兄弟雙拼戶型就是一個不錯的選擇了。
.jpg)
本文由別墅圖紙超市編輯發布,如需了解更多,可登錄網站主頁http://m.wxtmjd.cn/,或者撥打我們的免費電話400-8080-889在線咨詢。
>>>>推薦閱讀:12套歐式自建別墅,任意一棟都精致大氣,農村生活一樣舒適有品味!
>>>>推薦閱讀:10套經典大方的農村別墅(效果圖+戶型圖+建房案例),良心推薦!
>>>>推薦閱讀:15萬建個一層別墅,弄個庭院立馬高大上,5套戶型供你選擇!











